Apprendre – se divertir
Apprendre – se divertir

Salle de sport de Saint Philbert

49160 Saint Philbert du peuple - Maine et Loire - Pays de la Loire

BÂTIMENT / LOGEMENT

En 2016, nous avons été lauréat pour la conception et le suivi de réalisation de 2 salles de sport. La première est édifiée à Mouliherne et la seconde à Saint Philbert du Peuple. Si les plans fonctionnels des nouveaux ensembles reprennent les espaces volumétriques quadrilatères intérieurs, le traitement architectural affirme l'identité et la singularité du projet dans sa localité. Construit sur la base de volumes simples et épurés, les plans des 2 salles de sports ont été établi avec la même recherche d'unité, d'optimisation fonctionnelle et de pureté de l'enveloppe.

Catégorie Bâtiment / logement
Numéro de projet661
Adresse du projet Rue des jardins
49160 Saint Philbert du peuple
Date de candidature29/03/2018

Bâtiment / logement

Détail projet

Typologie de bâtiment : Neuf
Type de bâtiment : Sport
Année de livraison : 2017
Surface totale du bâtiment en m² : 1631
Coût total en € HT (hors foncier, hors VRD, hors honoraires) : 1112744.01
Lot bois n°1 concerné : Charpente bois
Coût du lot bois n°1 - € HT : 408700.00
Lot bois n°2 concerné : Menuiserie intérieure bois
Coût du lot bois n°2 - € HT : 33742.50

Structure bois du bâtiment

Structure verticale :

ProduitEssenceProvenances (lieu de croissance du bois)Traitements de préservationMarque et certification produit
Poteau poutreDouglasPays-de-la-LoireTraitement Classe 3b (autoclave)
Poteau poutreEuropeTraitement Classe 2 (trempage)

Structure horizontale :

ProduitEssenceProvenances (lieu de croissance du bois)Traitements de préservationMarque et certification produit
Plancher béton

Charpente :

ProduitEssenceProvenances (lieu de croissance du bois)Traitements de préservationMarque et certification produit
Charpente bois lamellé-colléDouglasPays-de-la-LoireTraitement Classe 3b (autoclave)
Charpente bois lamellé-colléÉpicéa communEuropeTraitement Classe 2 (trempage)

Revêtement bois extérieur

Revêtement bois ou dérivés :

ProduitEssenceProvenances (lieu de croissance du bois)Marque et certification produitFinitionTraitements de préservation
Lame bois massifDouglasPays-de-la-LoireSaturateurTraitement Classe 3b (autoclave)

Menuiserie intérieure et extérieure

Isolation des murs

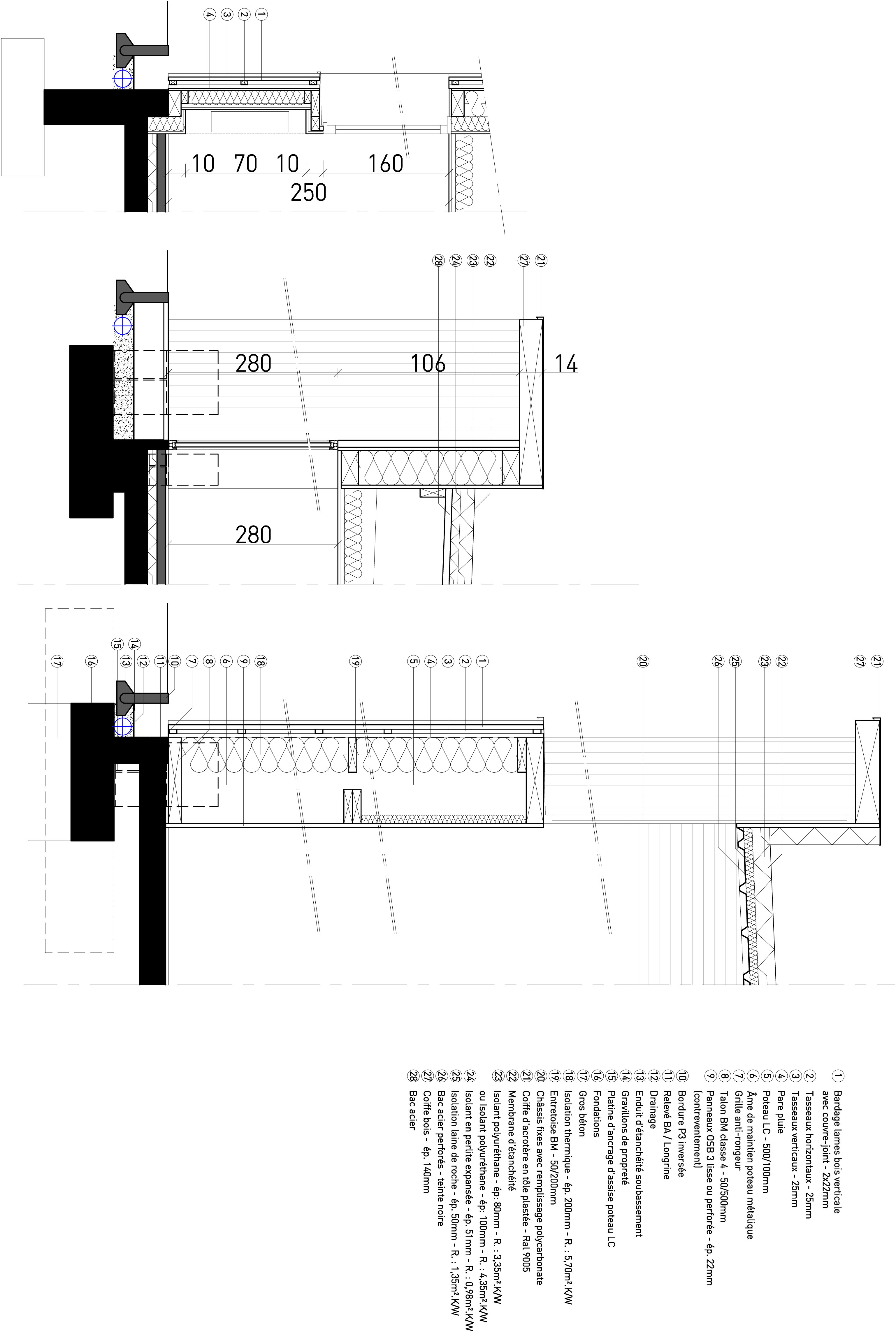
Epaisseur (mm) Isolation entre-montant des murs : 200

Isolation de la toiture

Epaisseur (mm) Isolation intérieure de la toiture : 50
Epaisseur (mm) Isolation extérieure de la toiture : 80

Approche environnementale : La volonté d'une harmonie dans le traitement de l'enveloppe malgré les différentes volumétries a conduit à l'utilisation d'un matériau unique. Inspiré par la présence d'anciens hangars agricoles en bois, l'utilisation d'un bardage en douglas vertical avec couvre-joints de teinte foncé, s'inscrit dans l'architecture locale. Ainsi le bâtiment se fond discrètement dans le paysage boisé.

Descriptif technique : Les principes constructifs communs aux 2 opérations ont permis de démontrer que le choix conceptuel de l'architecte pour un système de portiques "lamellé-collé" d'entraxe de 2,40m recoupé verticalement par des poteaux tous les 1,20m reprenant le principe d'ouvrage à ossature bois, s'avérait plus économique qu'un structure classique par fermes d'entraxe 6,00m, au vu également du respect de la réglementation RT 2012 et acoustique.

Chauffage au Bois : non
Données déclaratives

Acteurs du projet

Maître d'ouvrage (1)

Maître d'ouvrage - Services publics

Commune de Saint Philbert du Peuple (49)

Etudes et ingénieries (4)

Maître d'œuvre - Architecte mandataire

Atome Architectes (49)

Bureau d'études acoustique

Db Acoustic (49)

Bureau d'études structure bois

Even Structures (49)

Bureau d'études thermique

AB Ingénierie (49)

Entreprises des lots bois (2)

Charpentier

Construction Trillot Sas (49)

Menuisier

Atelier Bouesnard (49)




* : L'entreprise n'est plus active
Retour à la liste