Réhabiliter un logement
Réhabiliter un logement

Muguet Noir

33000 Bordeaux - Gironde - Nouvelle-Aquitaine

BÂTIMENT / LOGEMENT

MUGUET NOIR: [Ophiopogon planiscapus] Ce projet d’extension a pour objectif d’agrandir le séjour actuel de cette maison de ville située à Bordeaux. L’ambition est de profiter davantage de l’écrin de verdure offert par le jardin, mais aussi de bénéficier d’un espace qui peut complètement s’ouvrir sur l’extérieur et vers la piscine implantée dans la verdure. À l’intérieur de l’extension, est mise en œuvre un contre- plaqué de peuplier afin d’obtenir un univers chaleureux et convivial.

Catégorie Bâtiment / logement
Numéro de projet6521
Date de candidature23/11/2021

Bâtiment / logement

Détail projet

Typologie de bâtiment : Extension / surélévation,Rénovation / Réhabilitation
Type de bâtiment : Logement individuel inférieur 120 m²
Année de livraison : 2020
Surface totale du bâtiment en m² : 147
Dont extension / surélévation en m² : 20
Coût total en € HT (hors foncier, hors VRD, hors honoraires) : 70000
Lot bois n°1 concerné : Charpente bois
Volume lot bois n°1 - m³ : 5
Coût du lot bois n°1 - € HT : 3327
Lot bois n°2 concerné : ossature bois
Volume lot bois n°2 - m³ : 8
Coût du lot bois n°2 - € HT : 3201
Bois Français : non
Isolations biosourcées (préciser dans le descriptif technique) : non
Matériaux géosourcés (préciser dans le descriptif technique) : non
Finitions intéreures biosourcées ou géosourcées (préciser dans le descriptif technique) : oui

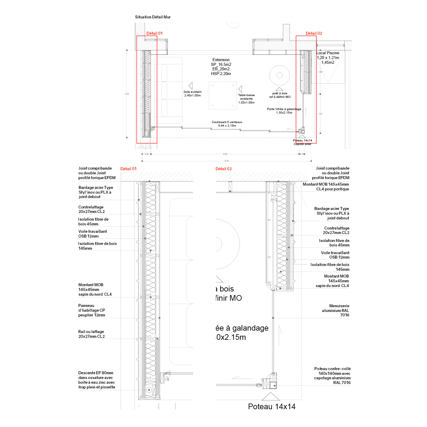
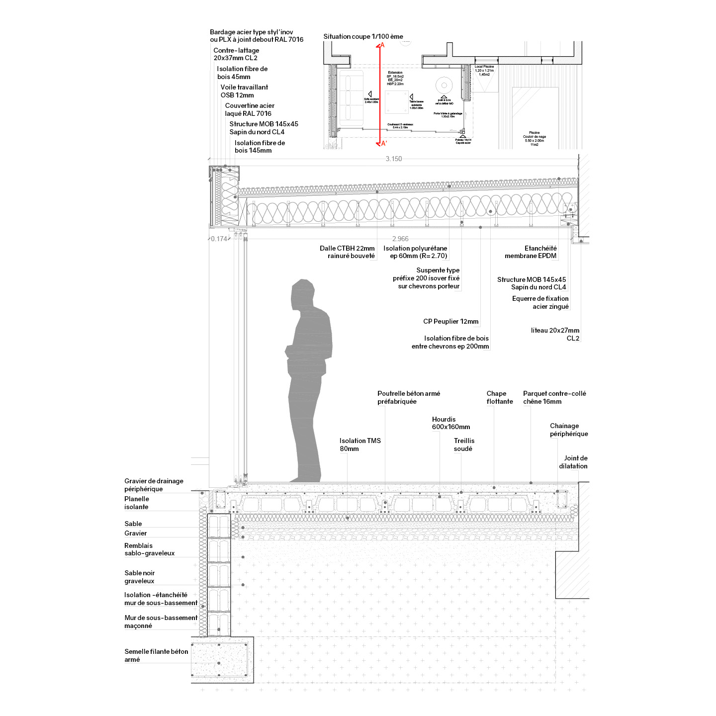
Structure bois du bâtiment

Structure verticale :

ProduitEssenceProvenances (lieu de croissance du bois)Traitements de préservationMarque et certification produit
Panneau ossature boisÉpicéa communEuropeTraitement Classe 4 (autoclave)

Structure horizontale :

ProduitEssenceProvenances (lieu de croissance du bois)Traitements de préservationMarque et certification produit
Plancher béton

Charpente :

ProduitEssenceProvenances (lieu de croissance du bois)Traitements de préservationMarque et certification produit
Caisson de toitureÉpicéa communEuropeTraitement Classe 4 (autoclave)

Revêtement bois extérieur

Autre revêtement métallique :

Produit
Acier
Acier

Menuiserie intérieure et extérieure

Isolation des murs

Isolation entre-montant des murs :

Produit
Fibre de bois (Panneaux)
Epaisseur (mm) Isolation entre-montant des murs : 140

Isolation extérieure des murs :

Produit
Fibre de bois (Panneaux)
Epaisseur (mm) Isolation extérieure des murs : 60

Isolation de la toiture

Epaisseur (mm) Isolation intérieure de la toiture : 200
Epaisseur (mm) Isolation entre-montant de la toiture : 200
Epaisseur (mm) Isolation extérieure de la toiture : 80

Approche environnementale : L’emploi du bois vient renforcer la notion « garden lodge » avec la mise en place d’un poêle à bois qui vient réchauffer l’espace. De même, dans l’espace d’entrée le choix d’un agencement en peuplier réalisé sur mesure viens faire écho, tout en modifiant l’ancien salon, maintenant transformé en bureau cloisonné par une verrière également conçue sur-mesure par le ferronnier d’art Luc Martin.

Descriptif technique : L’ensemble de ce mobilier signé ABT menuiserie permet de servir les fonctions du bureau mais aussi de meuble d’entrée pour se déchausser. Un soin tout particulier est apporté à l’assise, réalisée avec un tissu kvadrat ©, par le talentueux tapissier et designer Paul Emile Fort de 16m2 studio, qui se mari parfaitement avec la décoration soignée de nos clients.

Chauffage au Bois : oui
Appareil de chauffage au bois : Poële/insert
Données déclaratives

Acteurs du projet

Maître d'ouvrage (1)

Maître d'ouvrage - Particuliers

particulier (x)

Etudes et ingénieries (2)

Maître d'œuvre - Architecte mandataire

ACOSA ARCHITECTES (33)

Bureau d'études structure bois

BOIS CONCEPT M (B.C.M.) (33) *

Entreprises des lots bois (4)

Charpentier

BOIS CONCEPT M (B.C.M.) (33) *

Menuisier

ABT menuiserie - Tom Labrousse (33)
ABT menuiserie - Tom Labrousse (33)

Constructeur bois

BOIS CONCEPT M (B.C.M.) (33) *




* : L'entreprise n'est plus active
Retour à la liste