Apprendre – se divertir, Travailler – accueillirApprendre – se divertir, Travailler – accueillir
Apprendre – se divertir, Travailler – accueillir

Pôle enfance du Lampridic

44530 SAINT-GILDAS-DES-BOIS - Loire Atlantique - Pays de la Loire

BÂTIMENT / LOGEMENT

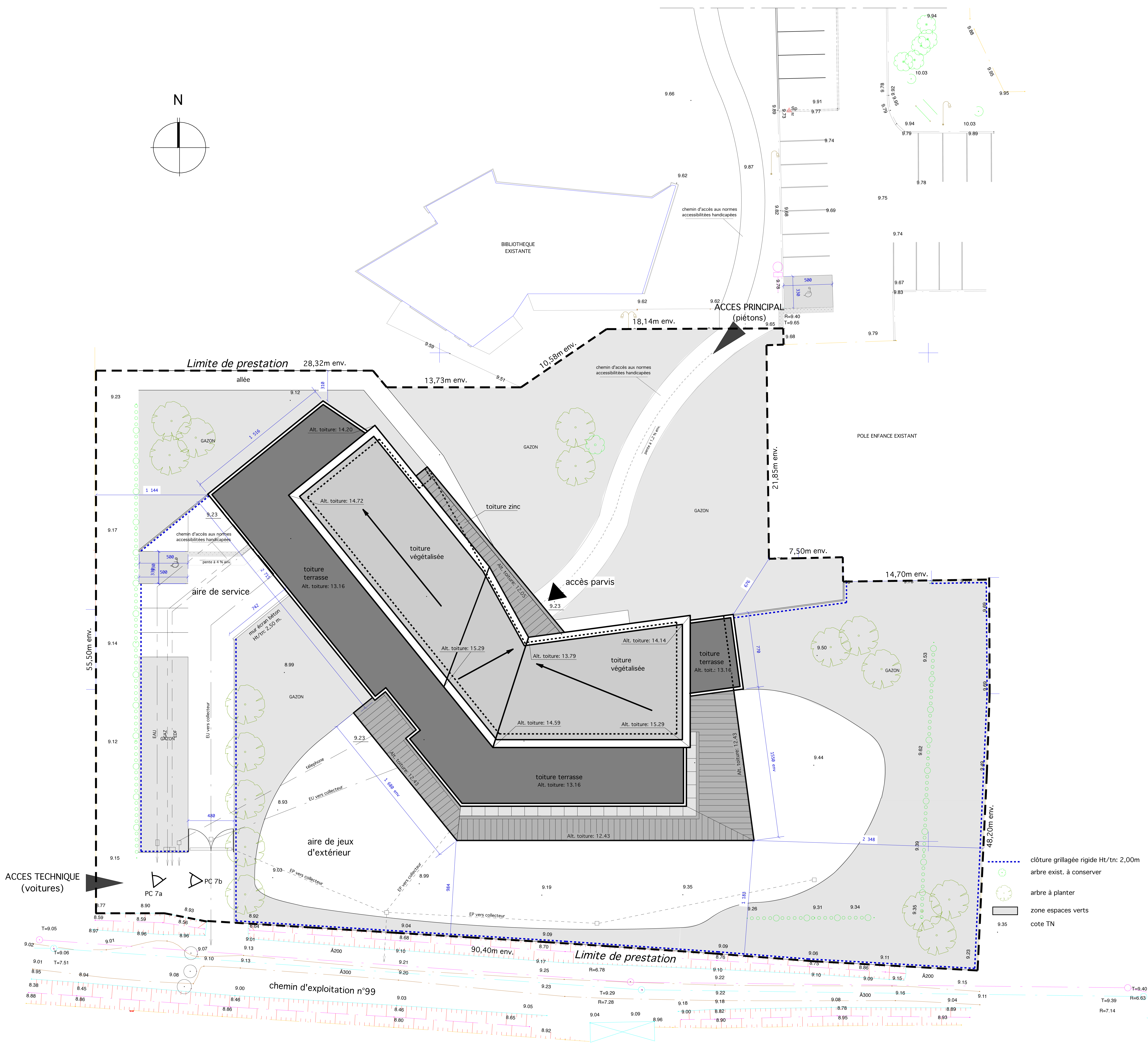
Ce projet de restaurant scolaire/ALSH s'inscrit dans un cadre verdoyant et arborescent. Il participe à la mise en scène d'un "campus de l'enfance", à proximité de la bibliothèque, de l'espace multi-accueil. Le bâtiment s'inscrit en douceur dans le site et propose des espaces extérieurs paysagés. Cette architecture de Parc aux toitures végétalisées légèrement infléchies, mise sur le choix de ses matériaux de façade (bois, panneau de Danpatherm, béton matricé) pour souligner sa volumétrie et offrir une luminosité maîtrisée et un confort thermique optimal.

Catégorie Bâtiment / logement
Numéro de projet651
Adresse du projet 17 Rue des Forges
44530 SAINT-GILDAS-DES-BOIS
Date de candidature29/03/2018

Bâtiment / logement

Détail projet

Typologie de bâtiment : Neuf
Type de bâtiment : Loisirs,Restauration
Année de livraison : 2017
Surface totale du bâtiment en m² : 881
Coût total en € HT (hors foncier, hors VRD, hors honoraires) : 1569000
Lot bois n°1 concerné : ossature bois
Lot bois n°2 concerné : Charpente bois

Structure bois du bâtiment

Structure verticale :

ProduitEssenceProvenances (lieu de croissance du bois)Traitements de préservationMarque et certification produit
Panneau ossature bois

Structure horizontale :

ProduitEssenceProvenances (lieu de croissance du bois)Traitements de préservationMarque et certification produit
Plancher béton

Charpente :

ProduitEssenceProvenances (lieu de croissance du bois)Traitements de préservationMarque et certification produit
Charpente bois lamellé-colléSapin pectiné

Revêtement bois extérieur

Revêtement bois ou dérivés :

ProduitEssenceProvenances (lieu de croissance du bois)Marque et certification produitFinitionTraitements de préservation
Lame bois lamellé-collé ou aboutéDouglasFrance

Menuiserie intérieure et extérieure

Isolation des murs

Isolation intérieure des murs :

Produit
Laine de verre
Epaisseur (mm) Isolation intérieure des murs : 145

Isolation entre-montant des murs :

Produit
Laine de verre
Epaisseur (mm) Isolation entre-montant des murs : 70

Isolation de la toiture

Descriptif technique : PEFC (Gestion forestière durable)

Chauffage au Bois : non
Données déclaratives

Acteurs du projet

Maître d'ouvrage (1)

Maître d'ouvrage - État ou collectivité (locale et territ)

COMMUNE DE SAINT GILDAS DES BOIS (44)

Etudes et ingénieries (5)

Maître d'œuvre - Architecte mandataire

Dcl Architectes - Urbanistes (49)

Bureau d'études acoustique

Gamba Accoustique (44)

Bureau d'études structure bois

Even Structures (49)

Bureau d'études environnement

Gefi Ingénierie (44)

Bureau d'études thermique

Gefi Ingénierie (44)

Entreprises des lots bois (1)

Charpentier

Les Escaliers Tour du Bois (49)




* : L'entreprise n'est plus active
Retour à la liste