Réhabiliter un logement

Le Hangar habité

35135 Chantepie - Ille et Vilaine - Bretagne

BÂTIMENT / LOGEMENT

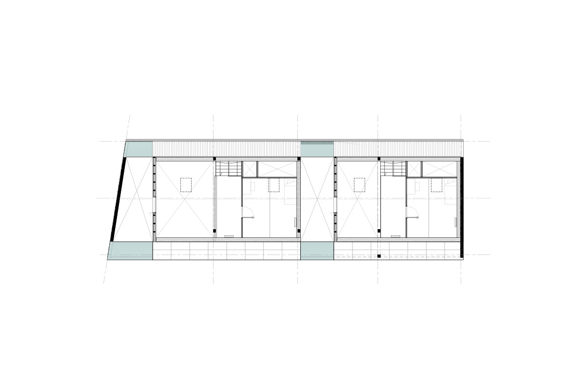
Hangar agricole construit au milieu des champs, il devient rapidement un hangar industriel au milieu d’une zone pavillonnaire. Au départ en retraite du propriétaire, celui-ci souhaite valoriser son ancien lieu de travail en le transformant en logements. La volumétrie et les fermes existantes en chêne sont conservées : elles constituent les traces de son passé industriel. Elles deviennent l’ossature de deux nouvelles maisons. La structure historique est mise en valeur et réemployée. Le projet joue de la contradiction et du rapport complexe entre le low et le high tech.

Catégorie Bâtiment / logement
Numéro de projet6447
Date de candidature15/03/2021

Bâtiment / logement

Détail projet

Typologie de bâtiment : Rénovation / Réhabilitation
Type de bâtiment : Logement individuel inférieur 120 m²
Année de livraison : mars 2021
Surface totale du bâtiment en m² : 191
Coût total en € HT (hors foncier, hors VRD, hors honoraires) : 415000
Coût du lot bois n°1 - € HT : 93864.89
Bois Français : oui
Isolations biosourcées (préciser dans le descriptif technique) : oui
Finitions intéreures biosourcées ou géosourcées (préciser dans le descriptif technique) : oui

Structure bois du bâtiment

Structure verticale :

ProduitEssenceProvenances (lieu de croissance du bois)Traitements de préservationMarque et certification produit
Panneau ossature boisPin maritimeAucuneAucun traitement

Structure horizontale :

ProduitEssenceProvenances (lieu de croissance du bois)Traitements de préservationMarque et certification produit
Panneau de bois massif (CLT collé ou CLT cloué)Épicéa communAucuneAucun traitement

Charpente :

ProduitEssenceProvenances (lieu de croissance du bois)Traitements de préservationMarque et certification produit
Charpente traditionnelleChêneBretagneAucun traitement

Revêtement bois extérieur

Revêtement bois ou dérivés :

ProduitEssenceProvenances (lieu de croissance du bois)Marque et certification produitFinitionTraitements de préservation
Lame bois massifChâtaignierBretagneSaturateurAucun traitement

Menuiserie intérieure et extérieure

Menuiserie extérieure :

ProduitEssenceProvenances (lieu de croissance du bois)Marque et certification produitFinition
Volet boisChâtaignierBretagneSaturateur

Isolation des murs

Epaisseur (mm) Isolation intérieure des murs : 100
Epaisseur (mm) Isolation entre-montant des murs : 120

Isolation de la toiture

Epaisseur (mm) Isolation entre-montant de la toiture : 200
Epaisseur (mm) Isolation extérieure de la toiture : 100

Approche environnementale : L’ensemble est conçu à partir de matériaux locaux et biosourcés (châtaignier breton en bardage), et recherche des performances énergétiques élevées : couverture photovoltaïque assurant la consommation électrique des deux maisons et ECS, récupération des eaux de pluie, récupération de l'air produit par les panneaux PV pour chauffer les jardins d'hiver.

Descriptif technique : Matériaux utilisés : Structures conservées : maçonnerie, charpente en chêne Structure : murs à ossature bois en pin, charpente en pin et chêne, solives et poutres en épicéa lamellés-collés Couverture : Panneaux photovoltaiques, couverture en polycarbonate et en bacs acier Bardage en châtaignier biosourcé local Aménagement intérieur : chape de béton, cuisine et escalier en 3 plis épicéa Performances environnementales : Production électrique (11kVA) grâce aux panneaux photovoltaiques, récupération de l’air chaud pour chauffer le jardin d’hiver, récupération des EP (2x300L), niveau RT 2012-50%

Performance du bâtiment (Cep en kWhep/m²/an) : 56
Chauffage au Bois : non
Données déclaratives

Acteurs du projet

Etudes et ingénieries (1)

Maître d'œuvre - Architecte mandataire

HADDOCK ARCHITECTURE (75)

Entreprises des lots bois (2)

Charpentier

CONSTRUCTIONS DE LA COTE D'EMERAUDE (CCE) (22)

Menuisier

Palam (75)

Fournisseurs du bois (1)

Scierie

RAHUELBOIS (35)




* : L'entreprise n'est plus active
Retour à la liste