Réhabiliter un équipement

Restructuration Clos et couvert des externats D et E du lycée Augustin Thierry

45000 BLOIS - Loiret - Centre-Val de Loire

BÂTIMENT / LOGEMENT

Le projet a pour ambition de continuer à écrire l’histoire de l’établissement en convoquant l’enjeu contemporain qu’est le développement durable et en formalisant les évolutions et nouveaux besoins de la cité scolaire. Il nous est apparu que Descartes et Curie agissent comme des « passeurs » positionnés entre ville et parc. Le traitement du pignon Nord du bâtiment Curie sera le totem, son bardage métallique blanc en appel, visible depuis l’avenue. Les façades Est et Ouest se parent de bois, complices avec le site exceptionnel qui les entoure.

Catégorie Bâtiment / logement
Numéro de projet6446
Adresse du projet 13 Avenue de Châteaudun
45000 BLOIS
Date de candidature15/03/2021

Bâtiment / logement

Détail projet

Typologie de bâtiment : Rénovation / Réhabilitation
Type de bâtiment : Enseignement ou éducation
Année de livraison : 2021
Surface totale du bâtiment en m² : 9615
Coût total en € HT (hors foncier, hors VRD, hors honoraires) : 7050000
Lot bois n°1 concerné : ossature bois
Coût du lot bois n°1 - € HT : 1790000
Bois Français : non
Isolations biosourcées (préciser dans le descriptif technique) : oui
Matériaux géosourcés (préciser dans le descriptif technique) : non
Finitions intéreures biosourcées ou géosourcées (préciser dans le descriptif technique) : non

Structure bois du bâtiment

Structure verticale :

ProduitEssenceProvenances (lieu de croissance du bois)Traitements de préservationMarque et certification produit
Panneau ossature boisSapin pectiné

Structure horizontale :

ProduitEssenceProvenances (lieu de croissance du bois)Traitements de préservationMarque et certification produit
Plancher béton

Charpente :

ProduitEssenceProvenances (lieu de croissance du bois)Traitements de préservationMarque et certification produit
Charpente non bois

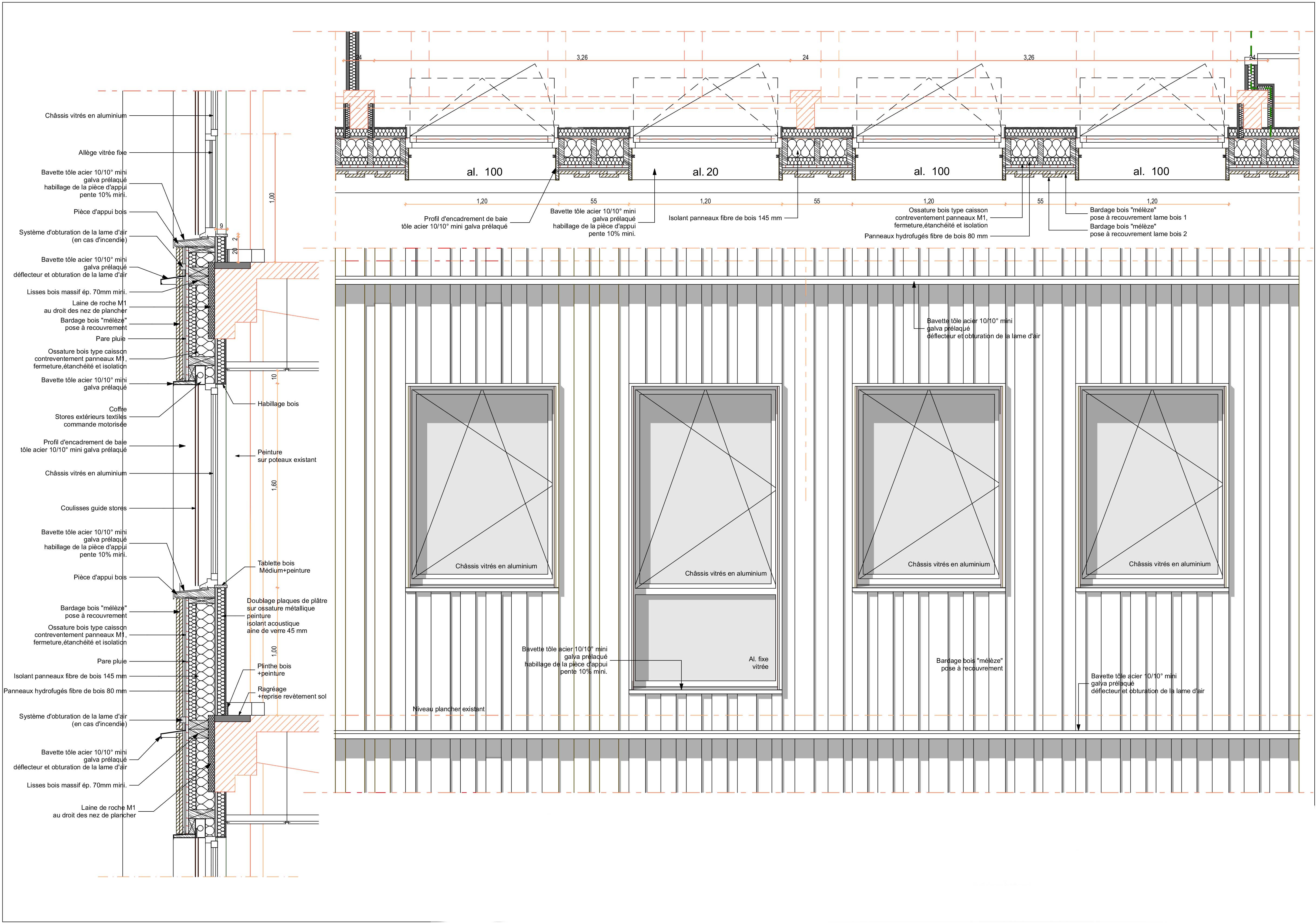
Revêtement bois extérieur

Revêtement bois ou dérivés :

ProduitEssenceProvenances (lieu de croissance du bois)Marque et certification produitFinitionTraitements de préservation
Lame bois massifMélèze

Menuiserie intérieure et extérieure

Isolation des murs

Epaisseur (mm) Isolation intérieure des murs : 100

Isolation entre-montant des murs :

Produit
Laine de bois souple
Fibre de bois (Panneaux)
Epaisseur (mm) Isolation entre-montant des murs : 220

Isolation de la toiture

Approche environnementale : Mur à ossature bois avec isolation en fibres de bois et bardage bois Projet soutenu par le FEDER

Performance du bâtiment (Cep en kWhep/m²/an) : 39.47
Chauffage au Bois : non
Données déclaratives

Acteurs du projet

Maître d'ouvrage (1)

Maître d'ouvrage - État ou collectivité (locale et territ)

Conseil Régional CENTRE VAL DE LOIRE (45)

Etudes et ingénieries (5)

Maître d'œuvre - Architecte mandataire

CREA'TURE (45)

Bureau d'études acoustique

GANTHA (86)

Bureau d'études structure bois

BET 3iA ingénierie (37)

Bureau d'études environnement

BEHI (33) *

Economiste

EIC & ASSOCIES (86)

Entreprises des lots bois (2)

Constructeur bois

ENTREPRISE MERLOT (86)
LACROIX MARIE (33)




* : L'entreprise n'est plus active
Retour à la liste