Réhabiliter un logement
Réhabiliter un logement

EXTENSION 4228

76420 BIHOREL - Seine Maritime - Normandie

BÂTIMENT / LOGEMENT

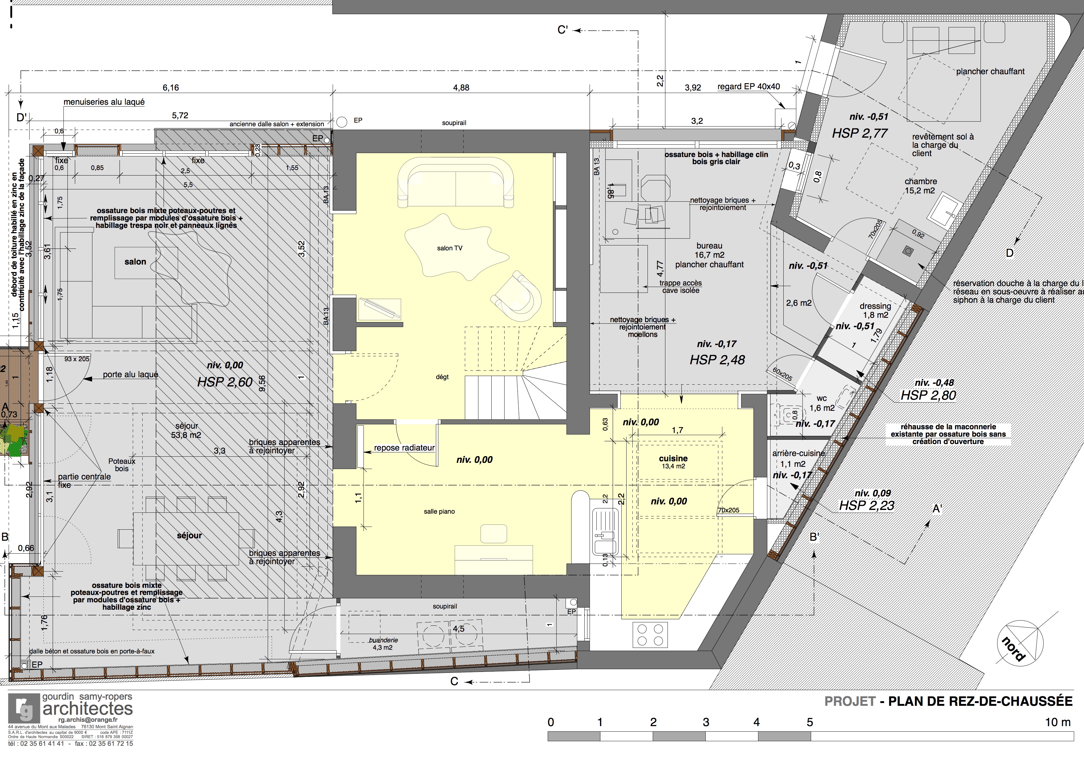
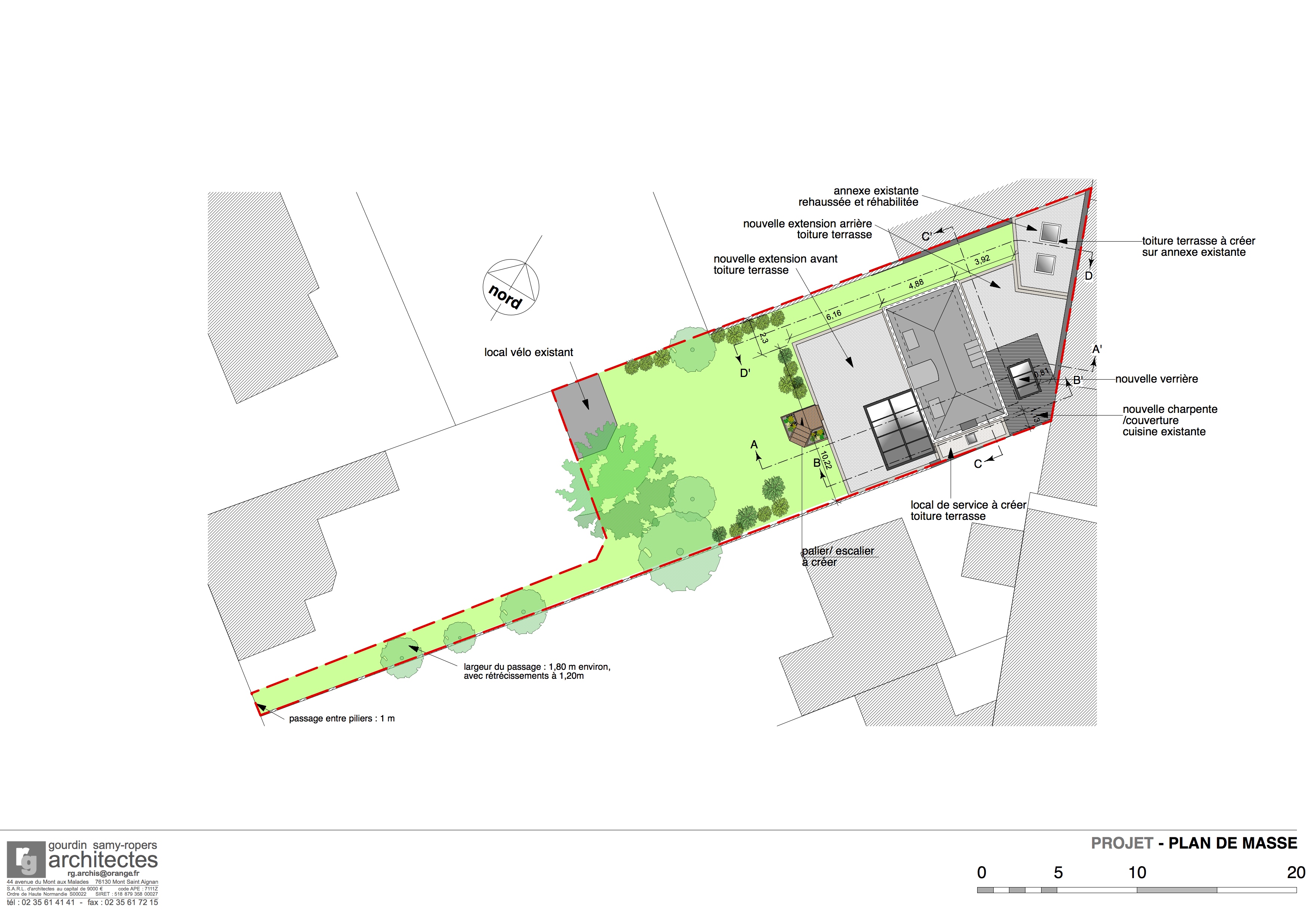
Il est prévu de réaliser une extension en ossature bois avec toiture terrasse, revêtement clin bois, panneaux stratifiés noirs et panneaux de bois lignés, menuiseries extérieures aluminium. La recherche des volumétries, résolument contemporaines avec des matériaux nobles, sobres et esthétiques, permet d’une part de valoriser la nouvelle extension mais également de l’intégrer parfaitement à l’existant en mettant en exergue la façade arrière qui ressort ainsi d’autant mieux que l’extension plus ou moins réussie des années 70 se trouve supprimée par le projet.

Catégorie Bâtiment / logement
Numéro de projet643
Date de candidature28/03/2018

Bâtiment / logement

Détail projet

Typologie de bâtiment : Extension / surélévation
Type de bâtiment : Logement individuel supérieur à 120 m²
Année de livraison : 2018
Surface totale du bâtiment en m² : 70.5
Coût total en € HT (hors foncier, hors VRD, hors honoraires) : 113100
Lot bois n°1 concerné : Charpente bois
Coût du lot bois n°1 - € HT : 20900
Lot bois n°2 concerné : Menuiserie intérieure bois
Coût du lot bois n°2 - € HT : 14100

Structure bois du bâtiment

Structure verticale :

ProduitEssenceProvenances (lieu de croissance du bois)Traitements de préservationMarque et certification produit
Panneau ossature boisSapin pectinéEuropeTraitement Classe 2 (trempage)

Structure horizontale :

ProduitEssenceProvenances (lieu de croissance du bois)Traitements de préservationMarque et certification produit
Solivage traditionnelSapin pectinéEuropeTraitement Classe 2 (trempage)

Charpente :

ProduitEssenceProvenances (lieu de croissance du bois)Traitements de préservationMarque et certification produit
Charpente traditionnelleSapin pectinéEuropeTraitement Classe 2 (trempage)

Revêtement bois extérieur

Autre revêtement métallique :

Produit
Zinc

Menuiserie intérieure et extérieure

Isolation des murs

Isolation de la toiture

Chauffage au Bois : non
Données déclaratives

Acteurs du projet

Etudes et ingénieries (1)

Maître d'œuvre - Architecte mandataire

SARL GOURDIN SAMY-ROPERS Architectes (76)

Entreprises des lots bois (2)

Charpentier

ETS CHRISTIAN PREVOST (76)

Menuisier

ETS CHRISTIAN PREVOST (76)




* : L'entreprise n'est plus active
Retour à la liste