Travailler – accueillir
Travailler – accueillir

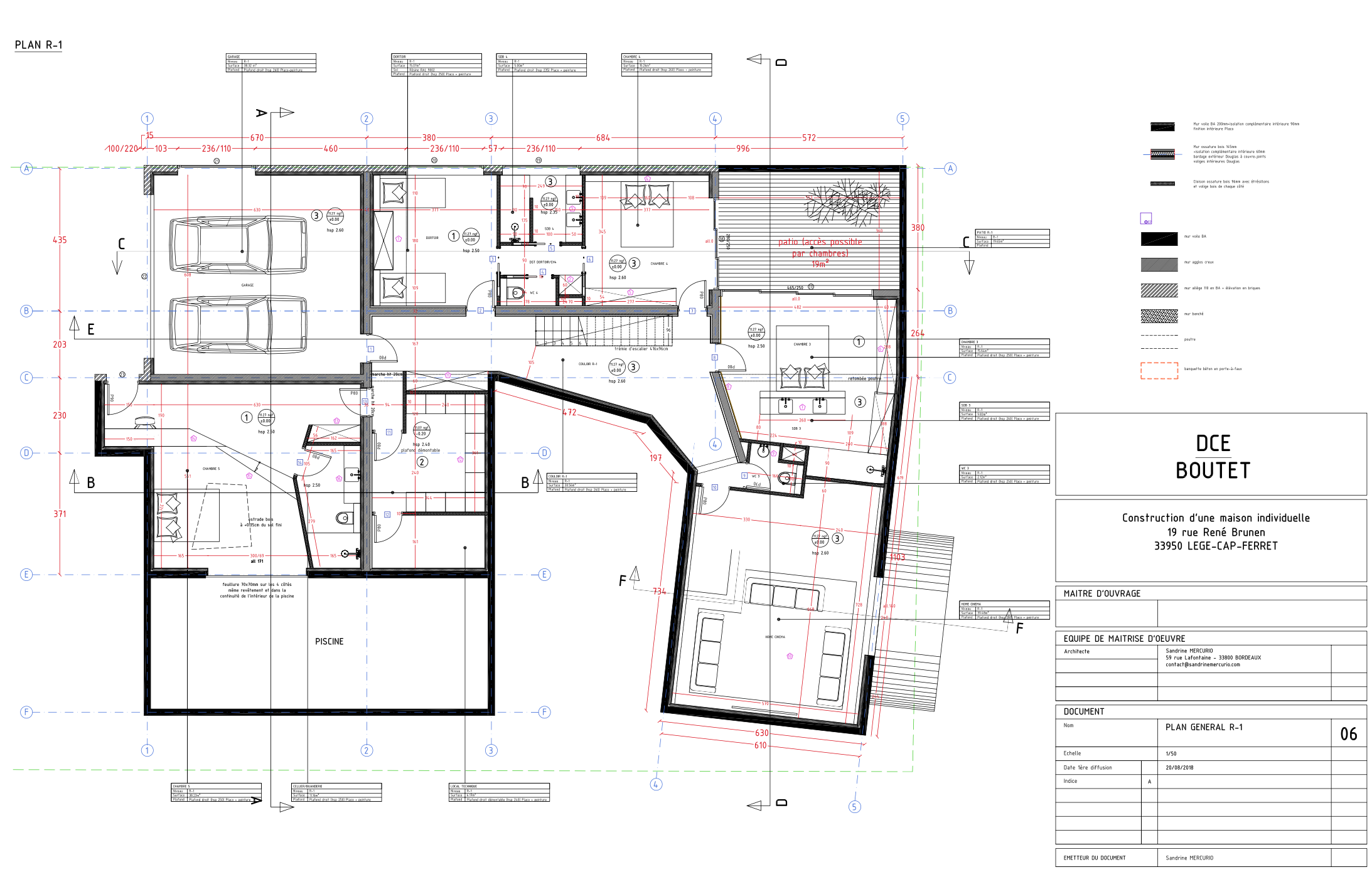
VILLA ORIGAMI

33950 Cap Ferret - Gironde - Nouvelle-Aquitaine

BÂTIMENT / LOGEMENT

Conception et réalisation d'une maison en bois au style "ORIGAMI" d'environ 400 m2. Projet initialement imaginé en structure métal et bois pour cause de ça complexité technique sur les ensembles structurelle qui était très fin pour un rendu épuré et architectural, en charge sur les axes de menuiseries en pignons. Le projet s'assimile a une réalisation type maison PASSIVE. La construction se réalise sur deux niveaux, RDC en béton et une surélévation en bois, recouverte de bardage zinc. Ornementé de 4 pergolas brise soleil en Douglas. Le budget hors foncier et d'environ 3 millions d'euros.

Catégorie Bâtiment / logement
Numéro de projet6434
Adresse du projet 19 rue René Brunen
33950 Cap Ferret
Date de candidature15/03/2021

Bâtiment / logement

Détail projet

Typologie de bâtiment : Neuf
Type de bâtiment : Logements de vacances ou de loisirs
Année de livraison : 2020
Surface totale du bâtiment en m² : 400
Dont extension / surélévation en m² : 181
Coût total en € HT (hors foncier, hors VRD, hors honoraires) : 3000000
Volume lot bois n°1 - m³ : 65
Coût du lot bois n°1 - € HT : 211000
Bois Français : oui
Isolations biosourcées (préciser dans le descriptif technique) : oui
Finitions intéreures biosourcées ou géosourcées (préciser dans le descriptif technique) : non

Structure bois du bâtiment

Structure verticale :

ProduitEssenceProvenances (lieu de croissance du bois)Traitements de préservationMarque et certification produit
Panneau de bois massif (CLT collé ou CLT cloué)Pin maritimeAutresTraitement Classe 2 (trempage)

Structure horizontale :

ProduitEssenceProvenances (lieu de croissance du bois)Traitements de préservationMarque et certification produit
Solivage traditionnelPin maritimeAutresTraitement Classe 2 (trempage)

Charpente :

ProduitEssenceProvenances (lieu de croissance du bois)Traitements de préservationMarque et certification produit
Charpente traditionnellePin sylvestreAutresTraitement Classe 2 (trempage)

Revêtement bois extérieur

Autre revêtement métallique :

Produit
Zinc

Menuiserie intérieure et extérieure

Isolation des murs

Isolation intérieure des murs :

Produit
Fibre de bois (Panneaux)
Epaisseur (mm) Isolation intérieure des murs : 90
Epaisseur (mm) Isolation entre-montant des murs : 120

Isolation extérieure des murs :

Produit
Fibre de bois (Panneaux)
Epaisseur (mm) Isolation extérieure des murs : 80

Isolation de la toiture

Epaisseur (mm) Isolation intérieure de la toiture : 90
Epaisseur (mm) Isolation entre-montant de la toiture : 220
Epaisseur (mm) Isolation extérieure de la toiture : 30

Approche environnementale : Maison inspirée des normes passives, l'utilisation de matériaux bio-sourcées et structure bois. Panneaux de fibre de bois pour l'isolation Bois Douglas FRANCAIS pour les pergolas CLT de chez EGOIN, pin maritime espagnol à moins de 400 km

Descriptif technique : La solution de structure CLT de chez "EGOIN" Bilbao, nord de l'Espagne, proposé par GENERAL WOODICS, à été retenue sur cette villa. Les solutions proposées de contreventements, et de reprise des charges de la charpente (17 pentes) en charge sur les ouvertures de menuiserie offre une créativité architecturale technique inédite et propose l'utilisation de bois structurel et des matériaux bio-sourcées. Ce projet regroupe diverses complexités dont les pergolas lamellé-collé style filante en clair-voie et auto portée donnant un effet "lévitation" réussi ! PEFC (Gestion forestière durable) FSC (Gestion forestière responsable)

Chauffage au Bois : oui
Appareil de chauffage au bois : Poële/insert
Données déclaratives

Acteurs du projet

Etudes et ingénieries (2)

Bureau d'études structure bois

GENERAL WOODICS (33)
HBD CLT (33) *

Entreprises des lots bois (2)

Charpentier

GENERAL WOODICS (33)

Constructeur bois

GENERAL WOODICS (33)

Fournisseurs du bois (2)

Scierie

COSYLVA (23)

Industriel

EGOIN (ES)




* : L'entreprise n'est plus active
Retour à la liste