Habiter une maison
Habiter une maison

Maison L

67600 EBERSHEIM - Bas Rhin - Grand Est

BÂTIMENT / LOGEMENT

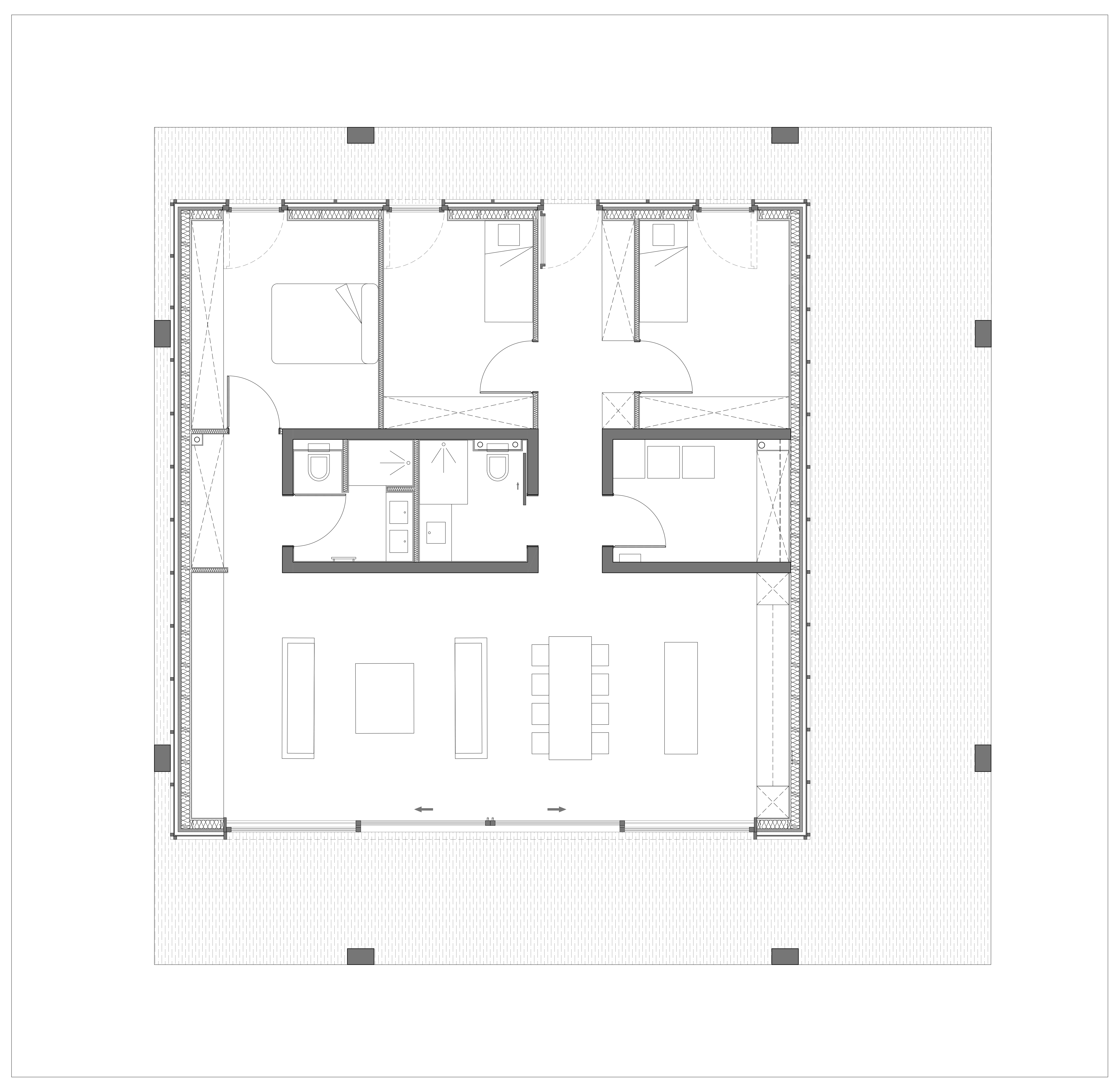
La vaste structure en béton soutenue par 8 porteurs périphériques et 2 noyaux centraux réinterprète l’esthétique et l’ingéniosité structurelle messienne, dans une variation minérale, baroque et champêtre, à l’image d’Ebersheim. Un volume en bois se glisse sous cette canopée quasi archaïque et apporte une matérialité chaleureuse et contextuelle sur ce terrain entre champs et vergers. Les larges baies coulissantes en bois permettent d'effacer aux beaux jours la limite intérieur-extérieur et de profiter de l'orientation et des vues vers le sud-ouest et le Haut-Koenigsbourg veillant au loin.

Catégorie Bâtiment / logement
Numéro de projet6403
Date de candidature15/03/2021

Bâtiment / logement

Détail projet

Typologie de bâtiment : Neuf
Type de bâtiment : Logement individuel supérieur à 120 m²
Année de livraison : 2020
Surface totale du bâtiment en m² : 135
Coût total en € HT (hors foncier, hors VRD, hors honoraires) : 240000
Volume lot bois n°1 - m³ : 6.25
Coût du lot bois n°1 - € HT : 24242
Volume lot bois n°2 - m³ : 0.7
Coût du lot bois n°2 - € HT : 18250
Bois Français : oui
Isolations biosourcées (préciser dans le descriptif technique) : oui
Finitions intéreures biosourcées ou géosourcées (préciser dans le descriptif technique) : non

Structure bois du bâtiment

Structure verticale :

ProduitEssenceProvenances (lieu de croissance du bois)Traitements de préservationMarque et certification produit
Panneau ossature boisÉpicéa communGrand-EstJe n'ai pas l'information

Structure horizontale :

ProduitEssenceProvenances (lieu de croissance du bois)Traitements de préservationMarque et certification produit
Plancher bétonTempéréAucuneAucun traitement

Charpente :

ProduitEssenceProvenances (lieu de croissance du bois)Traitements de préservationMarque et certification produit
Non préciséTempéréAucuneAucun traitement

Revêtement bois extérieur

Revêtement bois ou dérivés :

ProduitEssenceProvenances (lieu de croissance du bois)Marque et certification produitFinitionTraitements de préservation
Panneau bois massif contrecolléMélèzeEuropeAucune finitionAucun traitement

Menuiserie intérieure et extérieure

Menuiserie extérieure :

ProduitEssenceProvenances (lieu de croissance du bois)Marque et certification produitFinition
Menuiserie boisMélèzeEuropeHuile

Isolation des murs

Isolation entre-montant des murs :

Produit
Laine de bois souple
Epaisseur (mm) Isolation entre-montant des murs : 160

Isolation extérieure des murs :

Produit
Fibre de bois (Panneaux)
Epaisseur (mm) Isolation extérieure des murs : 60

Isolation de la toiture

Epaisseur (mm) Isolation extérieure de la toiture : 320

Approche environnementale : Entièrement réalisée en béton bas carbone, la structure principale est laissée brute et à l'épreuve du temps. Le plancher chauffant intégré dans la dalle poutrelles-hourdis permet d'apporter une inertie à l'édifice. Toutes les parois périphériques sont réalisées en murs ossatures bois avec isolants biosourcés et bardage bois. Les apports solaires sont optimisés par la grande baie vitrée côté verger. Les vastes débords de toiture permettent une protection solaire passive, complétée par des stores à enroulements pour un confort complet en toutes saisons. La toiture est végétalisée.

Descriptif technique : Les murs ossatures bois sont utilisés ici de manière non structurelle, pour délimiter l'habitation sous cette canopée minérale. Composés de montants en épicéa vosgien, d'isolants bio-sourcés (laine de bois souple entre montants et fibres de bois en extérieur) et d'un bardage en bois de mélèze non traité, leur traitement extérieur avec des encadrements en tasseaux mélèze rappelle les modénatures des séchoirs à tabac locaux. Un isolant en fibres de bois est installé en toiture-terrasse permettant un déphasage important en été. La toiture est végétalisée de manière intensive. PEFC (Gestion forestière durable) FSC (Gestion forestière responsable) CTB A Traitement des bois en oeuvre

Chauffage au Bois : non
Données déclaratives

Acteurs du projet

Maître d'ouvrage (1)

Maître d'ouvrage - Particuliers

particulier (x)

Etudes et ingénieries (3)

Maître d'œuvre - Architecte mandataire

AL PEPE architectes (67)

Bureau d'études structure bois

CAPEM Ingenierie (67)

Bureau d'études thermique

Keeplanet (67)

Entreprises des lots bois (2)

Charpentier

GIROLD Constructions Bois (67)

Menuisier

HUNSINGER SAS (67)




* : L'entreprise n'est plus active
Retour à la liste