Réhabiliter un logement
Réhabiliter un logement

REDONNE-MOI TON TOIT

75019 Paris - Paris - Ile de France

BÂTIMENT / LOGEMENT

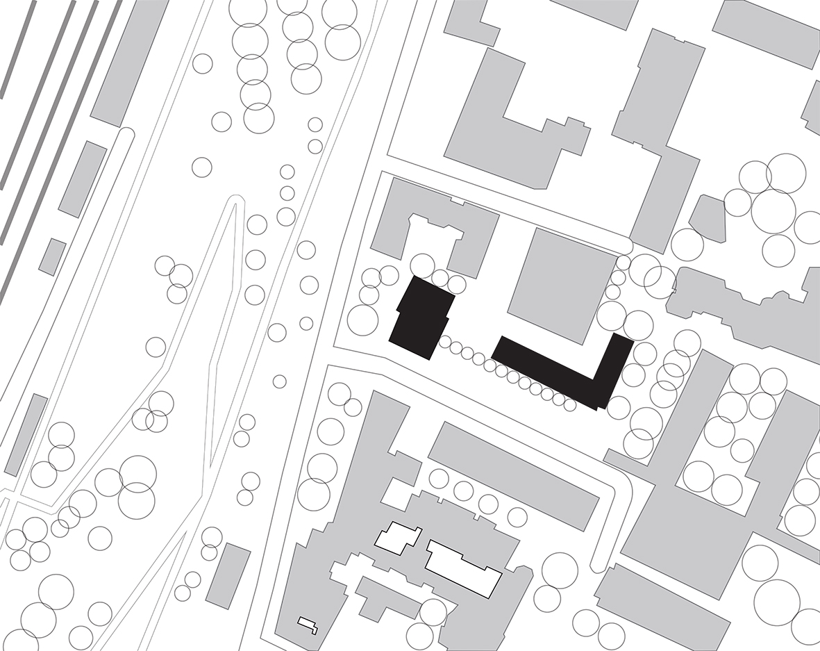
C’est rue d’Aubervilliers, dans le 19e arrondissement à Paris, que ce projet à la fois de réhabilitation et de densification se dresse. L’amélioration du confort énergétique des logements, de l’accessibilité aux personnes à mobilité réduite et de la sécurisation ainsi que la reconfiguration des espaces verts extérieurs sont les enjeux de notre intervention sur l’existant. Quant à la densification, par la création de 22 nouveaux logements, elle intègre un travail architectural dans un tissu dense, dialoguant avec les jardins d’Éole en face et avec le lieu culturel le 104.

Catégorie Bâtiment / logement
Numéro de projet6326
Date de candidature12/03/2021

Bâtiment / logement

Détail projet

Typologie de bâtiment : Extension / surélévation,Rénovation / Réhabilitation
Type de bâtiment : Logement collectif
Année de livraison : 2020
Surface totale du bâtiment en m² : 7034
Coût total en € HT (hors foncier, hors VRD, hors honoraires) : 6
Bois Français : non
Isolations biosourcées (préciser dans le descriptif technique) : non
Finitions intéreures biosourcées ou géosourcées (préciser dans le descriptif technique) : non

Structure bois du bâtiment

Structure verticale :

ProduitEssenceProvenances (lieu de croissance du bois)Traitements de préservationMarque et certification produit
Panneau ossature bois

Structure horizontale :

ProduitEssenceProvenances (lieu de croissance du bois)Traitements de préservationMarque et certification produit
Dalle bois

Charpente :

ProduitEssenceProvenances (lieu de croissance du bois)Traitements de préservationMarque et certification produit
Charpente traditionnelle

Revêtement bois extérieur

Menuiserie intérieure et extérieure

Isolation des murs

Isolation de la toiture

Approche environnementale : Les travaux « Plan Climat »: réhabilitation par la mise en œuvre d’une isolation thermique par l’extérieur avec vêture, remplacement des menuiseries extérieures, isolations thermiques et phoniques.

Descriptif technique : Ce projet consiste en la réhabilitation de 74 logements, dans le cadre du Plan Climat de la Ville de Paris et la création de 22 logements par surélévation. L’ensemble est organisé en deux bâtiments construits en 1978, l’un en R+8 (50 logements) et l’autre en R+3 (24 logements) , situés en face des jardins d’Éole. Bâtiment Energie Environnemen

Chauffage au Bois : non
Données déclaratives

Acteurs du projet

Maître d'ouvrage (1)

Maître d'ouvrage - Bailleur social public

ERIGERE (75)

Etudes et ingénieries (5)

Maître d'œuvre - Architecte mandataire

NOMADE ARCHITECTES (75)

Bureau d'études acoustique

AIDA (75)

Bureau d'études thermique

FACEA (93)

Economiste

FACEA (93)

Autre intervenant de la construction - bureau de contrôle, AMO, BIM...

QUALICONSULT (94)

Entreprises des lots bois (3)

Charpentier

GTM Bâtiment (92)

Menuisier

GTM Bâtiment (92)

Constructeur bois

GTM Bâtiment (92)




* : L'entreprise n'est plus active
Retour à la liste