Habiter ensemble
Habiter ensemble

Logements Le Bourg

93100 Montreuil - Seine Saint Denis - Ile de France

BÂTIMENT / LOGEMENT

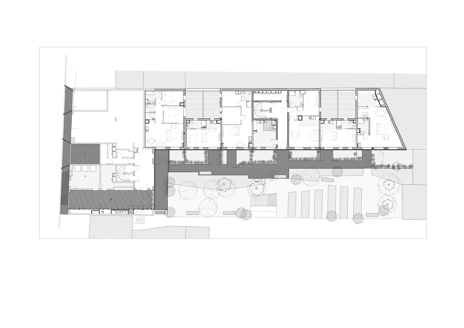
Le bâtiment emprunte à la rue qui l’accueille (Lebour) son inspiration « faubourg ». Lovés autour d’un jardin remarquable et protégé, les logements se fondent dans le tissu montreuillois. L’épannelage subtil et l’emploi de matériaux naturels contribuent à la douceur du lieu. La construction en ossature bois assure le confort thermique et accentue le bien être. L’habitat revêt les caractéristiques qui font la qualité d’un lieu de vie : des grandes baies pour la lumière naturelle, des espaces extérieurs privatifs et grand jardin en commun.

Catégorie Bâtiment / logement
Numéro de projet632
Adresse du projet 31/33 Rue Lebour
93100 Montreuil
Date de candidature28/03/2018

Bâtiment / logement

Détail projet

Typologie de bâtiment : Neuf
Type de bâtiment : Logement collectif
Année de livraison : 2017
Surface totale du bâtiment en m² : 1952
Coût total en € HT (hors foncier, hors VRD, hors honoraires) : 4150000
Lot bois n°1 concerné : Autre lot bois
Volume lot bois n°1 - m³ : 805
Coût du lot bois n°1 - € HT : 1340000
Lot bois n°2 concerné : Aucun
Bois Français : non

Structure bois du bâtiment

Structure verticale :

ProduitEssenceProvenances (lieu de croissance du bois)Traitements de préservationMarque et certification produit
Panneau de bois massif (CLT collé ou CLT cloué)
Panneau ossature boisFrance

Structure horizontale :

ProduitEssenceProvenances (lieu de croissance du bois)Traitements de préservationMarque et certification produit
Solivage traditionnel

Charpente :

ProduitEssenceProvenances (lieu de croissance du bois)Traitements de préservationMarque et certification produit
Charpente traditionnelle

Revêtement bois extérieur

Revêtement bois ou dérivés :

ProduitEssenceProvenances (lieu de croissance du bois)Marque et certification produitFinitionTraitements de préservation
Lame bois massifMélèze

Autre revêtement métallique :

Produit
Zinc

Menuiserie intérieure et extérieure

Menuiserie extérieure :

ProduitEssenceProvenances (lieu de croissance du bois)Marque et certification produitFinition
Menuiserie bois

Isolation des murs

Isolation intérieure des murs :

Produit
Laine de verre
Epaisseur (mm) Isolation intérieure des murs : 60

Isolation entre-montant des murs :

Produit
Laine de verre
Epaisseur (mm) Isolation entre-montant des murs : 200

Isolation de la toiture

Epaisseur (mm) Isolation intérieure de la toiture : 60
Epaisseur (mm) Isolation entre-montant de la toiture : 200

Approche environnementale : Le projet est construit autour d'un jardin protégé dont les arbres existants ont été conservés. Un jardin partagé a été installé en cœur d'îlot, permettant ainsi de sensibiliser les plus jeunes au caractère fragile et riche de la nature tout en offrant aux plus grands une opportunité de cultiver leur propre potager. L'utilisation du bois pour ce projet s'accorde donc parfaitement avec le site et permet de répondre aux questions contemporaines de durabilité.

Descriptif technique : Ce projet fait intervenir une réelle mixité de technique de mise en oeuvre du bois. En effet, la structure est mixte poutre métallique et caisson à ossature bois de résineux épicéa. Les charpentes bois sont traditionnelles. Les noyaux, les murs de circulation ainsi que les toitures terrasse sont en CLT de chez KLH. Les escaliers sont en béton. Les planchers des duplex sont quant à eux en contrecollé de feuillus. Les parements métalliques de façade et toiture à joints debouts sont en zinc. Les bardages bois sont en Mélèze.

Chauffage au Bois : non
Données déclaratives

Acteurs du projet

Maître d'ouvrage (1)

Maître d'ouvrage - Promoteurs immobiliers privés

REI HABITAT (93)

Etudes et ingénieries (1)

Maître d'œuvre - Architecte mandataire

Archi5 (93)

Entreprises des lots bois (1)

Constructeur bois

ECOLOGGIA (88)




* : L'entreprise n'est plus active
Retour à la liste