Travailler – accueillir
Travailler – accueillir

Bureaux d'expertise comptable

24200 SARLAT LA CANEDA - Dordogne - Nouvelle-Aquitaine

BÂTIMENT / LOGEMENT

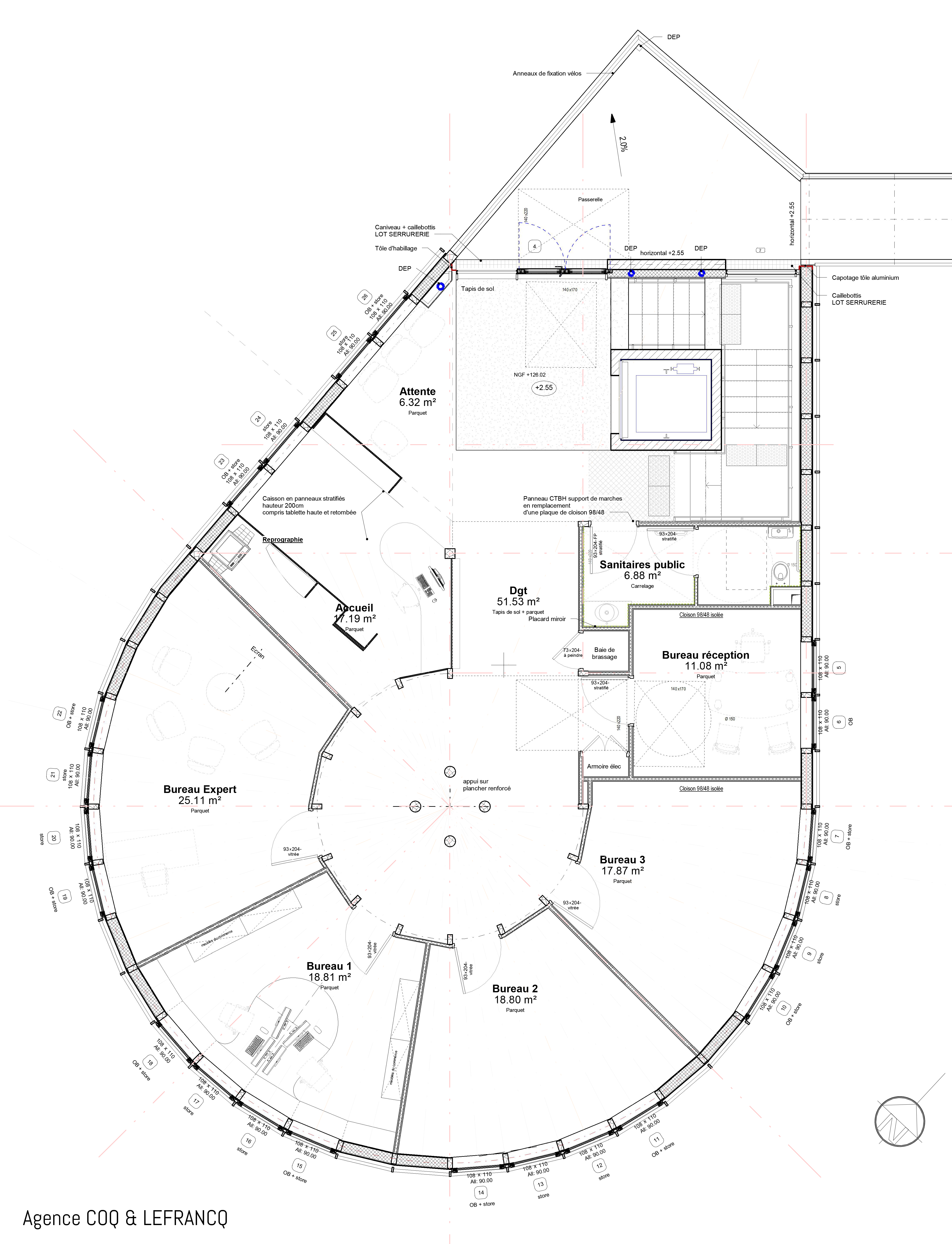
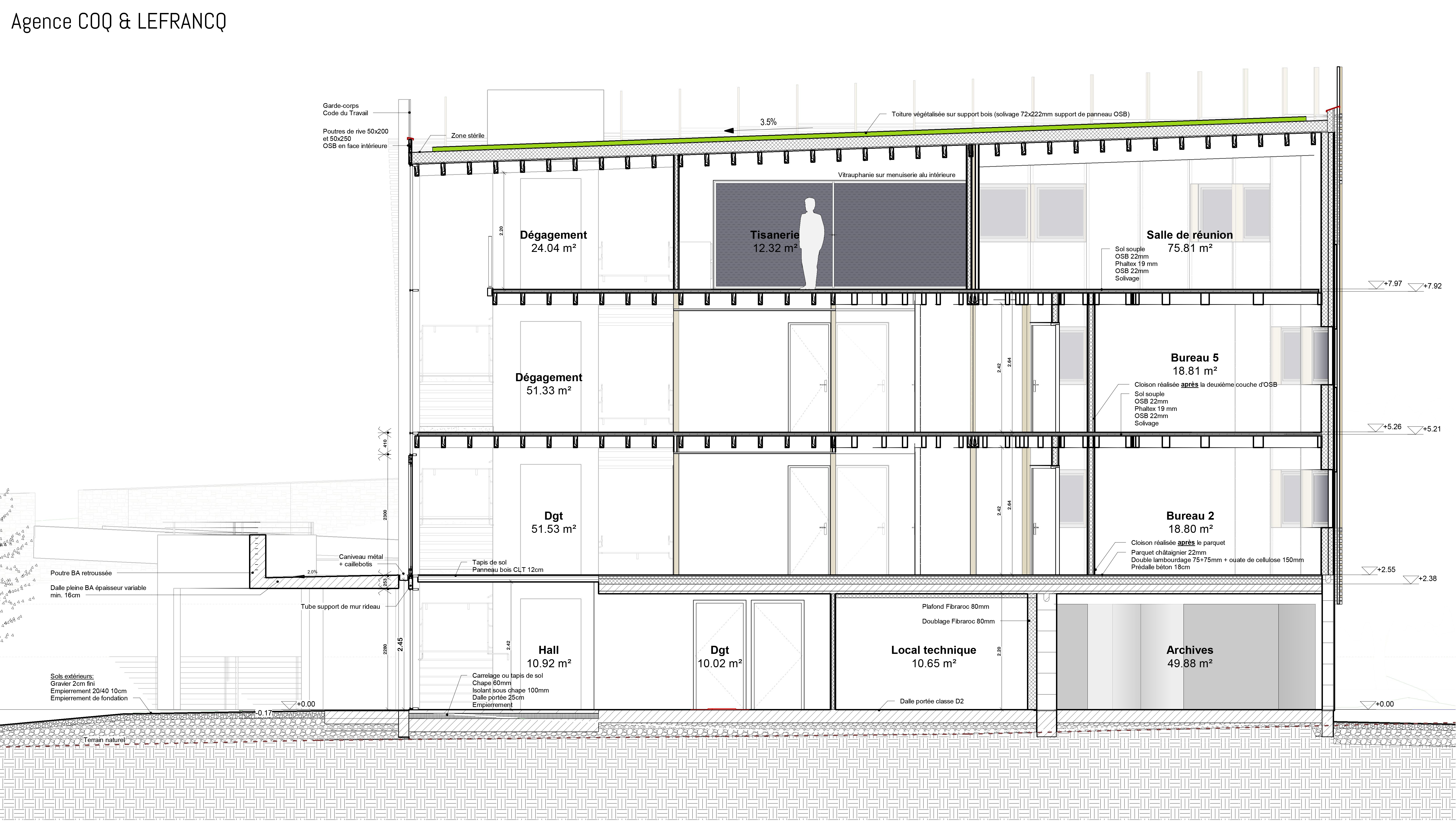
Un Maître d'Ouvrage volontariste + un site contraignant = un projet atypique. Le délaissé d’un giratoire donnait une surface constructible limitée. Il fallait alors développer le programme sur 4 niveaux pour loger les surfaces requises, l’occasion de faire signal à l’entrée de ville. L’emprise du bâtiment ainsi définie façonne un objet à la géométrie singulière, de bois vêtu. A l’intérieur, la volonté d’usage intensif du bois se traduit par une structure de plancher rayonnant et de poteaux, qui rendent bien lisibles l’organisation spatiale.

Catégorie Bâtiment / logement
Numéro de projet6264
Adresse du projet 24200 SARLAT LA CANEDA
Date de candidature10/03/2021

Bâtiment / logement

Détail projet

Typologie de bâtiment : Neuf
Type de bâtiment : Lieu d'entreprise
Année de livraison : 2020
Surface totale du bâtiment en m² : 479
Coût total en € HT (hors foncier, hors VRD, hors honoraires) : 834120
Lot bois n°1 concerné : Charpente bois
Coût du lot bois n°1 - € HT : 105000
Lot bois n°2 concerné : Bardage bois
Coût du lot bois n°2 - € HT : 35000
Bois Français : oui
Isolations biosourcées (préciser dans le descriptif technique) : oui
Finitions intéreures biosourcées ou géosourcées (préciser dans le descriptif technique) : oui

Structure bois du bâtiment

Structure verticale :

ProduitEssenceProvenances (lieu de croissance du bois)Traitements de préservationMarque et certification produit
Poteau poutreÉpicéa communNouvelle-Aquitaine
Panneau ossature bois

Structure horizontale :

ProduitEssenceProvenances (lieu de croissance du bois)Traitements de préservationMarque et certification produit
Solivage traditionnelÉpicéa communNouvelle-Aquitaine
Dalle boisÉpicéa commun

Charpente :

ProduitEssenceProvenances (lieu de croissance du bois)Traitements de préservationMarque et certification produit
Charpente bois lamellé-colléÉpicéa commun
Charpente traditionnelleÉpicéa communNouvelle-Aquitaine

Revêtement bois extérieur

Revêtement bois ou dérivés :

ProduitEssenceProvenances (lieu de croissance du bois)Marque et certification produitFinitionTraitements de préservation
Lame bois massifDouglasNouvelle-AquitaineAucune finition

Revêtement minéral :

Produit
Enduit chaux

Menuiserie intérieure et extérieure

Menuiserie extérieure :

ProduitEssenceProvenances (lieu de croissance du bois)Marque et certification produitFinition
Menuiserie mixteChêneFrance

Isolation des murs

Isolation intérieure des murs :

Produit
Laine de bois souple
Epaisseur (mm) Isolation intérieure des murs : 200

Isolation entre-montant des murs :

Produit
Laine de bois souple
Epaisseur (mm) Isolation entre-montant des murs : 200

Isolation de la toiture

Approche environnementale : Pour ses bureaux, l’expert-comptable voulait montrer son engagement pour l’environnement et les circuits courts : usage intensif de bois (si possible locaux), production d’électricité photovoltaïque, éclairage naturel important des bureaux, toiture végétalisée, absence de revêtement étanche en voiries, forte isolation laine de bois, modulation des apports solaires par stores motorisés extérieurs. Ainsi, le bâtiment complète les bonnes pratiques de l’entreprise dans sa démarche volontaire RSE, illustrée par le choix d’une fabrication locale de mobilier en chêne massif dessiné par l’agence C&L.

Descriptif technique : Le socle maçonné du rez-de-chaussée accueille les locaux techniques et archives (coupe-feu, acoustique loi de masse). Les trois autres niveaux sont construits en poteaux/poutres bois et murs à ossature bois en façade. Des essences locales sont utilisées en sol (parquet châtaignier) et en doublages (peuplier). Le bois est utilisé jusque dans les menuiseries extérieures (chêne/aluminium) et le mobilier en chêne : bureaux des collaborateurs et de direction, banques d’accueil, salle de réunion, étagères pour dossiers suspendus.

Chauffage au Bois : non
Données déclaratives

Acteurs du projet

Maître d'ouvrage (1)

Maître d'ouvrage - Industriels - commerçants - entreprise

AUDIT ET CONSEILS (24)

Etudes et ingénieries (2)

Maître d'œuvre - Architecte mandataire

SARL Architecture COQ & LEFRANCQ (24)

Bureau d'études thermique

ODETEC Agence de Périgueux (24)

Entreprises des lots bois (4)

Charpentier

MATHIS & DANEDE (24)

Menuisier

PIMOND ET COMPAGNIE (24)
HORIZON BOIS 24 (24) *
ETABLISSEMENT LAVERGNE (24)

Fournisseurs du bois (4)

Scierie

DUFOUR FRERES (24)
COSTE BOIS (24)

Industriel

COSYLVA (23)
UNIVERS BOIS (19)




* : L'entreprise n'est plus active
Retour à la liste