Réhabiliter un équipement

Salle des mariages

38430 Saint Jean de Moirans - Isère - Auvergne-Rhône-Alpes

BÂTIMENT / LOGEMENT

La mairie se situe en plein cœur du bourg; l'extension doit renforcer son identité. En plus de l'extension fonctionnelle, le projet offre des espaces à vivre extérieurs aménagés en continuité de la salle. La cour actuelle fermée et revêtue d'un enrobé est aménagée en un jardin où l'on peut se poser, organiser les photos de mariage, un évènement. Le parti est de conserver une hiérarchie : la nouvelle salle est légèrement en retrait de la façade de la mairie historique. Elle se compose d'un volume simple en bois, dont la géométrie s'inspire de la typologie des bâtiments anciens de la commune.

Catégorie Bâtiment / logement
Numéro de projet6244
Adresse du projet 2, place du Champs de Mars
38430 Saint Jean de Moirans
Date de candidature10/03/2021

Bâtiment / logement

Détail projet

Typologie de bâtiment : Extension / surélévation
Type de bâtiment : Service institutionnel et public
Année de livraison : 2020
Surface totale du bâtiment en m² : 170
Coût total en € HT (hors foncier, hors VRD, hors honoraires) : 414527
Lot bois n°1 concerné : Bardage bois
Volume lot bois n°1 - m³ : 73.4
Coût du lot bois n°1 - € HT : 147771
Lot bois n°2 concerné : Menuiserie extérieure bois
Volume lot bois n°2 - m³ : 2
Coût du lot bois n°2 - € HT : 46769
Bois Français : oui
Isolations biosourcées (préciser dans le descriptif technique) : oui
Finitions intéreures biosourcées ou géosourcées (préciser dans le descriptif technique) : oui

Structure bois du bâtiment

Structure verticale :

ProduitEssenceProvenances (lieu de croissance du bois)Traitements de préservationMarque et certification produit
Panneau ossature boisÉpicéa communAuvergne-Rhône-Alpes

Structure horizontale :

ProduitEssenceProvenances (lieu de croissance du bois)Traitements de préservationMarque et certification produit
Plancher béton

Charpente :

ProduitEssenceProvenances (lieu de croissance du bois)Traitements de préservationMarque et certification produit
Charpente bois lamellé-colléÉpicéa communAuvergne-Rhône-Alpes

Revêtement bois extérieur

Revêtement bois ou dérivés :

ProduitEssenceProvenances (lieu de croissance du bois)Marque et certification produitFinitionTraitements de préservation
Lame bois massifDouglasBourgogne-Franche-ComtéHuile

Menuiserie intérieure et extérieure

Menuiserie extérieure :

ProduitEssenceProvenances (lieu de croissance du bois)Marque et certification produitFinition
Menuiserie bois

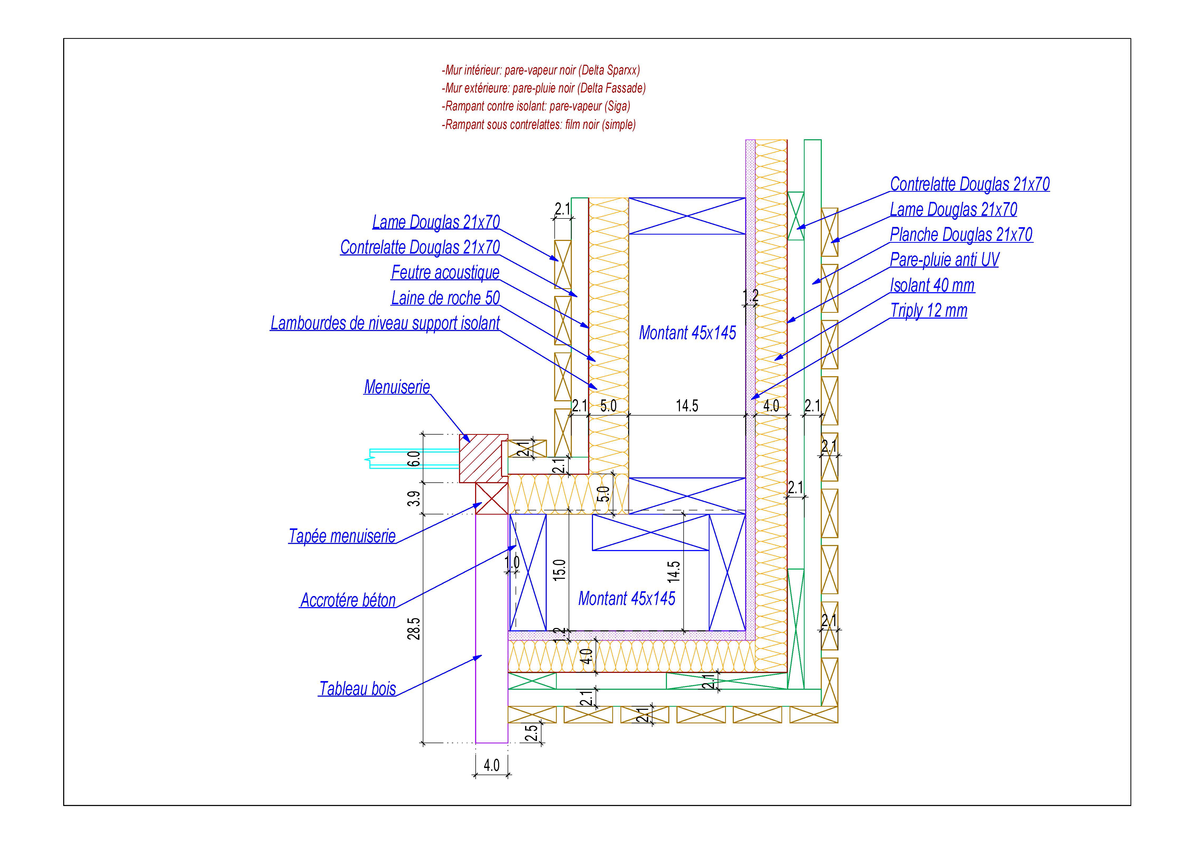
Isolation des murs

Epaisseur (mm) Isolation intérieure des murs : 50
Epaisseur (mm) Isolation entre-montant des murs : 145
Epaisseur (mm) Isolation extérieure des murs : 40

Isolation de la toiture

Epaisseur (mm) Isolation intérieure de la toiture : 50
Epaisseur (mm) Isolation entre-montant de la toiture : 140
Epaisseur (mm) Isolation extérieure de la toiture : 60

Approche environnementale : Le bâtiment pour sa superstructure est construit avec des matériaux bio-sourcés et pour son isolation thermique est supérieur à la réglementation RT 2012. Isolation par laine de bois et panneaux fibres dense, parement bois intérieur faisant office de caissons acoustiques. Les menuiseries intérieures et extérieures sont en bois huilé double vitrage. Aménagements extérieurs en bois et paysagers. Utilisation de la source locale pour créer un fil d'eau en gravitaire. Les éclairages extérieurs sont coupés pour la nuit.

Descriptif technique : Son infrastructure est en béton et la superstructure est réalisée par caissons ossature bois complété par une charpente en lamellé-collé.La base du chauffage se fait par le sol, un complément pouvant être fait par radiateurs. VMC simple flux. Tous les éclairages sont à leds et pour la grande salle sur variateurs. Les menuiseries coulissantes entre la grande salle et le hall étant à claire-voie. Elles sont constituées de panneaux ouvrants afin de pouvoir nettoyer les vitres. PEFC (Gestion forestière durable) FSC (Gestion forestière responsable) Bois des Alpes CTB A Traitement des bois en oeuvre

Chauffage au Bois : non
Données déclaratives

Acteurs du projet

Maître d'ouvrage (1)

Maître d'ouvrage - État ou collectivité (locale et territ)

COMMUNE DE SAINT JEAN DE MOIRANS (38)

Etudes et ingénieries (5)

Maître d'œuvre - Architecte mandataire

MAILLARD PHILIPPE (38)

Bureau d'études structure bois

BOIS CONSEIL (38)

Bureau d'études thermique

AXIOME IEC (38)

Paysagiste

TERIDEAL (38)

Architecte / paysagiste concepteur

Lolaverde Paysage (38) *

Entreprises des lots bois (2)

Charpentier

CHALOIN FRERES (38)

Menuisier

MENUISERIE DU VAL D'AINAN (38)




* : L'entreprise n'est plus active
Retour à la liste