Travailler – accueillir
Travailler – accueillir

Pharmacie Baysse besneux

53230 Cossè le Vivien - Mayenne - Pays de la Loire

BÂTIMENT / LOGEMENT

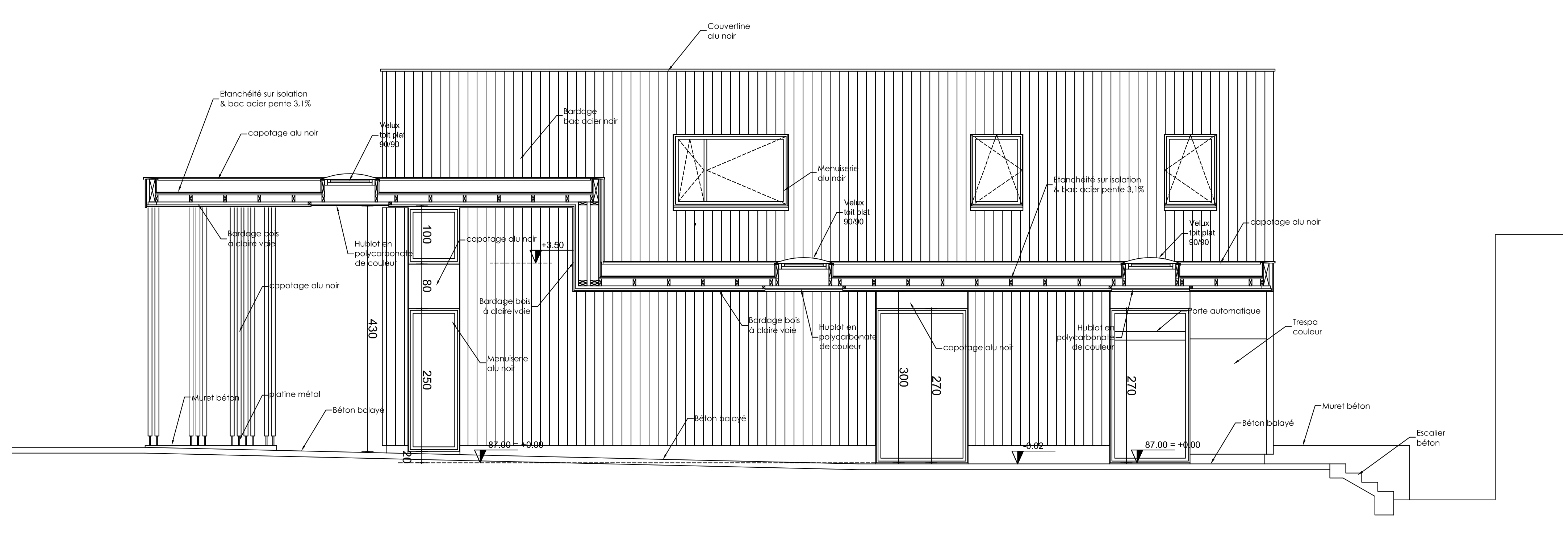
Le site se situe dans un espace boisé, près du centre-bourg de la commune de Cossé le Vivien, en Mayenne. Il s’agit de la construction d’une pharmacie, mise en valeur par sa sobriété, le choix de ses matériaux, de ses jeux d’ouverture en façades et enfin de son imbrication entre les volumes. Une coursive, soutenue par une résille bois de hauteurs différentes, accompagne le visiteur dans son cheminement jusqu'à l'entrée.

Catégorie Bâtiment / logement
Numéro de projet6234
Adresse du projet 100 rue Jacques Prévert
53230 Cossè le Vivien
Date de candidature09/03/2021

Bâtiment / logement

Détail projet

Typologie de bâtiment : Neuf
Type de bâtiment : Industrie et commerce
Année de livraison : 2021
Surface totale du bâtiment en m² : 300
Coût total en € HT (hors foncier, hors VRD, hors honoraires) : 578323.61
Coût du lot bois n°1 - € HT : 114564.47
Bois Français : non
Isolations biosourcées (préciser dans le descriptif technique) : non
Matériaux géosourcés (préciser dans le descriptif technique) : non
Finitions intéreures biosourcées ou géosourcées (préciser dans le descriptif technique) : non

Structure bois du bâtiment

Structure verticale :

ProduitEssenceProvenances (lieu de croissance du bois)Traitements de préservationMarque et certification produit
Panneau ossature boisDouglas

Structure horizontale :

ProduitEssenceProvenances (lieu de croissance du bois)Traitements de préservationMarque et certification produit
Solivage traditionnel
Solivage traditionnelDouglas

Charpente :

ProduitEssenceProvenances (lieu de croissance du bois)Traitements de préservationMarque et certification produit
Charpente bois lamellé-collé

Revêtement bois extérieur

Revêtement bois ou dérivés :

ProduitEssenceProvenances (lieu de croissance du bois)Marque et certification produitFinitionTraitements de préservation
Lame bois massifDouglas

Autre revêtement métallique :

Produit
Acier

Menuiserie intérieure et extérieure

Isolation des murs

Epaisseur (mm) Isolation intérieure des murs : 50

Isolation entre-montant des murs :

Produit
Laine de verre
Epaisseur (mm) Isolation entre-montant des murs : 145

Isolation extérieure des murs :

Produit
Laine de verre

Isolation de la toiture

Epaisseur (mm) Isolation intérieure de la toiture : 300
Chauffage au Bois : non
Données déclaratives

Acteurs du projet

Etudes et ingénieries (2)

Maître d'œuvre - Architecte mandataire

Ie Architecture (53)

Bureau d'études thermique

LCA (53)

Entreprises des lots bois (2)

Charpentier

Menguy Charpente (53)

Menuisier

GAUTEUR (53)




* : L'entreprise n'est plus active
Retour à la liste