Apprendre – se divertir
Apprendre – se divertir

Pôle culturel de Couzeix

87270 Couzeix - Haute Vienne - Nouvelle-Aquitaine

BÂTIMENT / LOGEMENT

Le pôle culturel offre 2 nouveaux équipements publiques à la ville de Couzeix : une médiathèque, avec un espace numérique, et une école de musique. Une halle en bois vient recouvrir partiellement ces 2 bâtiments et créer un parvis couvert, un jardin et un aménagement paysager en gradins de pierre vienne formant un ensemble complétement piéton, que l'on peut traverser, venir s'y assoir, assister à un petit concert...

Catégorie Bâtiment / logement
Numéro de projet6231
Adresse du projet 1 allée des Jardins
87270 Couzeix
Date de candidature09/03/2021

Bâtiment / logement

Détail projet

Typologie de bâtiment : Neuf
Type de bâtiment : Enseignement ou éducation,Culture
Année de livraison : 2021
Surface totale du bâtiment en m² : 630
Coût total en € HT (hors foncier, hors VRD, hors honoraires) : 1375000
Lot bois n°1 concerné : Charpente bois
Volume lot bois n°1 - m³ : 65
Coût du lot bois n°1 - € HT : 240000
Lot bois n°2 concerné : Menuiserie intérieure bois
Coût du lot bois n°2 - € HT : 95000
Bois Français : oui
Isolations biosourcées (préciser dans le descriptif technique) : oui
Finitions intéreures biosourcées ou géosourcées (préciser dans le descriptif technique) : oui

Structure bois du bâtiment

Structure verticale :

ProduitEssenceProvenances (lieu de croissance du bois)Traitements de préservationMarque et certification produit
Panneau ossature boisÉpicéa commun

Structure horizontale :

ProduitEssenceProvenances (lieu de croissance du bois)Traitements de préservationMarque et certification produit
Panneau de bois massif (CLT collé ou CLT cloué)Épicéa communEurope

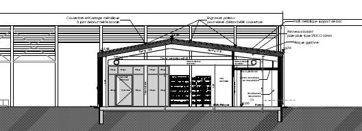
Charpente :

ProduitEssenceProvenances (lieu de croissance du bois)Traitements de préservationMarque et certification produit
Charpente bois lamellé-colléDouglasNouvelle-AquitaineTraitement Classe 4 (autoclave)

Revêtement bois extérieur

Autre revêtement métallique :

Produit
Alu

Menuiserie intérieure et extérieure

Isolation des murs

Isolation intérieure des murs :

Produit
Fibre de bois (Panneaux)
Epaisseur (mm) Isolation intérieure des murs : 45
Epaisseur (mm) Isolation entre-montant des murs : 140
Epaisseur (mm) Isolation extérieure des murs : 60

Isolation de la toiture

Epaisseur (mm) Isolation extérieure de la toiture : 60

Approche environnementale : Le projet a été mené dans un esprit de circuit court des matériaux (l'essence Douglas est privilégié pour la charpente et les éléments décoratifs intérieurs). Les isolants sont issues de la filière bois : panneaux de fibre en isolant extérieur, panneaux de fibre de bois et laine de verre mélangés à l'intérieur, ouate de cellulose dans les murs de façade et les combles. 2 dispositifs techniques sont mis en place : des panneaux photovoltaïques sur la toiture de la halle en bois et une cuve de récupération des eaux de pluie, enterrée dans le jardin, qui alimente les chasses d'eau des sanitaires.

Descriptif technique : Derrière l'aspect "zinc" des 2 bâtiments se trouve du bois dans tous ces états : charpente en LC de douglas, isolant en panneaux de fibre, décoration et acoustique (lames de bois intérieur sur les murs et plafonds) et mobilier. Les tables, tabourets et rayonnages de la médiathèque ont été dessinés spécialement pour ce lieu, tout en bois (multiplis d'épiciéa). PEFC (Gestion forestière durable) FSC (Gestion forestière responsable) Marquage CE

Chauffage au Bois : non
Données déclaratives

Acteurs du projet

Maître d'ouvrage (1)

Maître d'ouvrage - État ou collectivité (locale et territ)

VILLE DE COUZEIX (87)

Etudes et ingénieries (5)

Maître d'œuvre - Architecte mandataire

SPIRALE NICOLAS BALMY - SAS D'ARCHITECTURE (87)

Bureau d'études structure bois

BET CABROL BETOULLE (87)

Bureau d'études thermique

LARBRE INGENIERIE (87)

Economiste

ARQUANTES ECONOMIE (87)

Autre intervenant de la construction - bureau de contrôle, AMO, BIM...

QUALICONSULT (87)

Entreprises des lots bois (3)

Charpentier

SARL MARTINET PASCAL (23)

Menuisier

JANET (87)

Autre lot de la construction (en lien avec le bois)

Les Ateliers de Perspective (87)

Fournisseurs du bois (1)

Industriel

COSYLVA (23)




* : L'entreprise n'est plus active
Retour à la liste