Apprendre – se divertir
Apprendre – se divertir

Groupe scolaire de la Pépinière

93420 Villepinte - Seine Saint Denis - Ile de France

BÂTIMENT / LOGEMENT

Le projet est l'école de 14 classes de l’écoquartier de la Pépinière, cité jardin contemporaine boisée et paysagée d’une ancienne pépinière. L’écoquartier met en scène des sujets remarquables et paysage l’intégralité de son site. Le groupe scolaire dans un jardin devient un jardin. Le projet s’organise sous forme de plateaux terrasses paysagés et ouverts en équerre sur le site protégé au sud. Chaque plateau accueille un programme et une ambiance: l’école maternelle au RDC, l’école élémentaire au R+1 La toiture offre un jardin accessible aux enfants et un paysage végétal aux riverains.

Catégorie Bâtiment / logement
Numéro de projet6212
Adresse du projet Avenue Paul Vaillant-Couturier
93420 Villepinte
Date de candidature09/03/2021

Bâtiment / logement

Détail projet

Typologie de bâtiment : Neuf
Type de bâtiment : Enseignement ou éducation
Année de livraison : 2020
Surface totale du bâtiment en m² : 2698
Coût total en € HT (hors foncier, hors VRD, hors honoraires) : 6993000
Lot bois n°1 concerné : Charpente bois
Volume lot bois n°1 - m³ : 481
Coût du lot bois n°1 - € HT : 763000
Lot bois n°2 concerné : Bardage bois
Volume lot bois n°2 - m³ : 96
Coût du lot bois n°2 - € HT : 291165
Bois Français : oui
Isolations biosourcées (préciser dans le descriptif technique) : oui
Finitions intéreures biosourcées ou géosourcées (préciser dans le descriptif technique) : oui

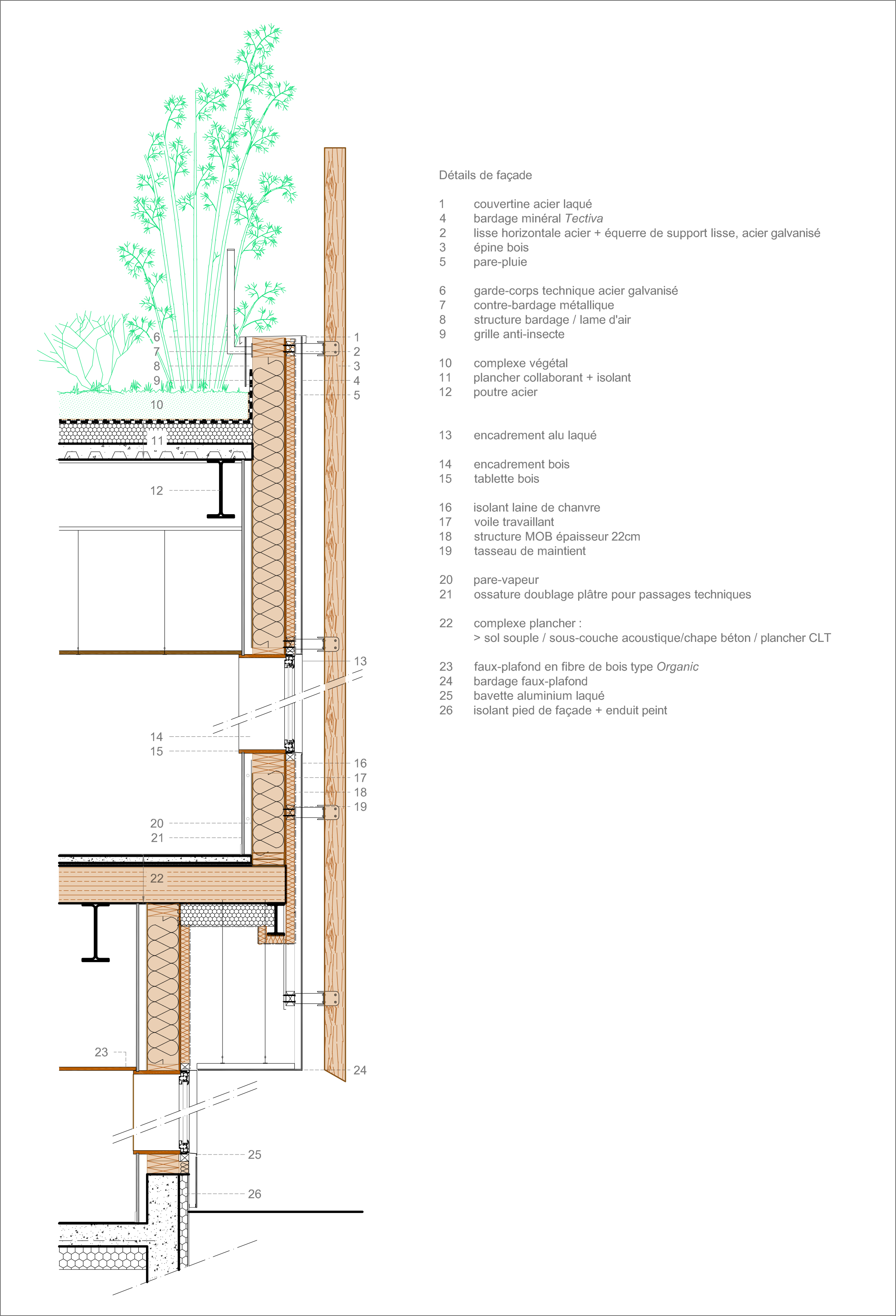
Structure bois du bâtiment

Structure verticale :

ProduitEssenceProvenances (lieu de croissance du bois)Traitements de préservationMarque et certification produit
Panneau ossature boisDouglasFranceTraitement Classe 3a (trempage)

Structure horizontale :

ProduitEssenceProvenances (lieu de croissance du bois)Traitements de préservationMarque et certification produit
Panneau de bois massif (CLT collé ou CLT cloué)DouglasFranceTraitement Classe 2 (trempage)

Charpente :

ProduitEssenceProvenances (lieu de croissance du bois)Traitements de préservationMarque et certification produit
Charpente non bois

Revêtement bois extérieur

Revêtement bois ou dérivés :

ProduitEssenceProvenances (lieu de croissance du bois)Marque et certification produitFinitionTraitements de préservation
Lame bois massifDouglasFranceSaturateurJe n'ai pas l'information

Menuiserie intérieure et extérieure

Isolation des murs

Isolation intérieure des murs :

Produit
Laine de chanvre
Laine de roche
Epaisseur (mm) Isolation entre-montant des murs : 220
Epaisseur (mm) Isolation extérieure des murs : 80

Isolation de la toiture

Epaisseur (mm) Isolation extérieure de la toiture : 200

Approche environnementale : - préservation d’une zone humide au cœur de la parcelle, - jardins pédagogiques dans la cour maternelle et sur le toit, - Emploi de matériaux biosourcés dans la constitution de la façade, - Gestion de l’eau à la parcelle par infiltration, temporisation des eaux pluviales de la toiture terrasse, traitement des eaux de parking par phytoremédiation. - Captation passive de CO2 par une forte utilisation de bois en structure et parure, - Eclairage en second jour des circulations, - Occultations des fenêtres orientées sud et ouest par brise-soleil fixes

Descriptif technique : Construction mixte bois / metal Ossature porteuse par poteaux poutres métalliques Façades porteuse bois (MOB), planchers en CLT, Trois CTA Double flux, Panneaux photovoltaïques en toiture, Chauffage par réseau de chaleur urbain Démarche énergétique : BEPOS Effinergie 2017 / critère E3C1 Bbio : gain 48,4% / Cep : gain 85,6% / Tic : gain 2°C PEFC (Gestion forestière durable) Marquage CE

Chauffage au Bois : non
Certifications, labels et marques bâtiment : E + C -
Données déclaratives

Acteurs du projet

Maître d'ouvrage (1)

Maître d'ouvrage - État ou collectivité (locale et territ)

Ville de villepinte (93)

Etudes et ingénieries (4)

Maître d'œuvre - Architecte mandataire

ER ARCHITECTES (93)

Bureau d'études structure bois

OBM CONSTRUCTION (45)

Bureau d'études environnement

AI ENVIRONNEMENT (92)

Architecte / paysagiste concepteur

ER ARCHITECTES (93)

Entreprises des lots bois (2)

Charpentier

OBM CONSTRUCTION (45)

Constructeur bois

OBM CONSTRUCTION (45)




* : L'entreprise n'est plus active
Retour à la liste