Aménager

TOM POUCE creche

44000 nantes - Loire Atlantique - Pays de la Loire

AMÉNAGEMENT BOIS

Aménagement intérieur

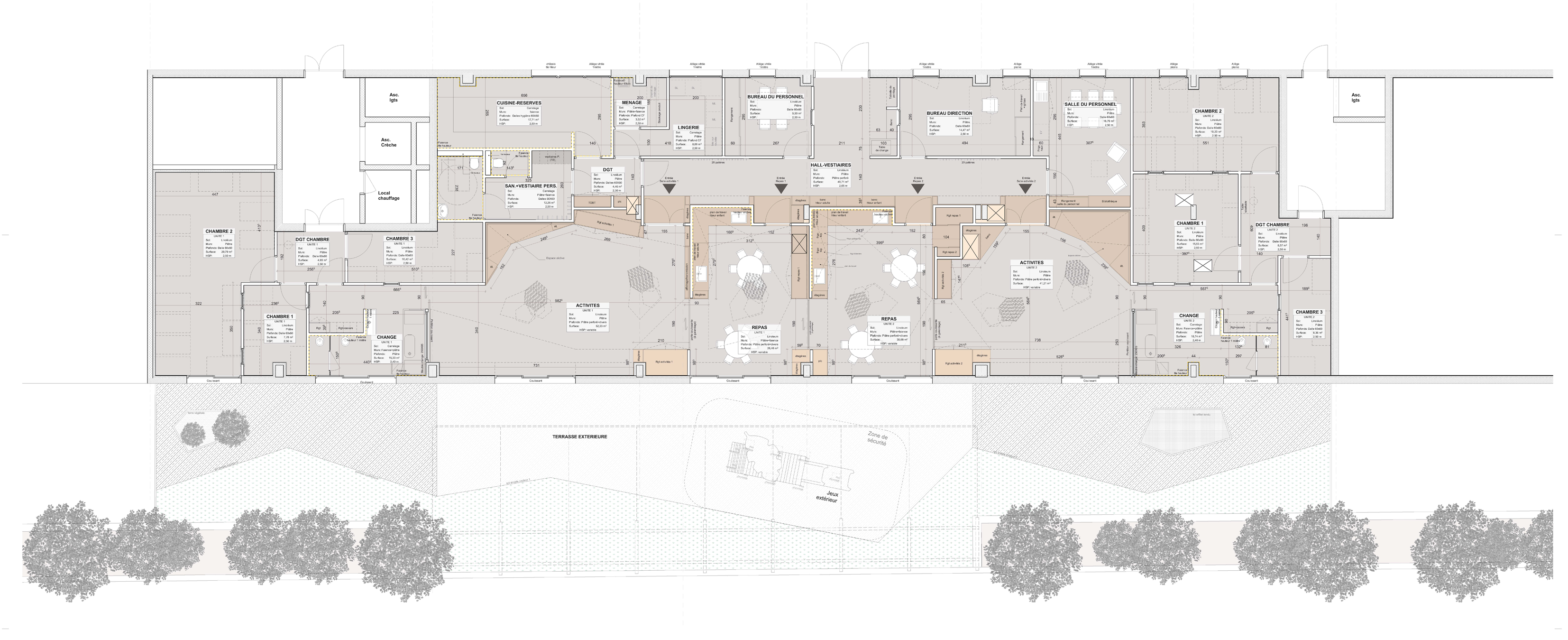
La crèche TOM POUCE a été aménagée dans une cellule brut de béton située au 1er étage d'un immeuble de logements à Nantes. Le projet a été animée de la volonté de séquencer l'espace en autant d'espaces de vie tout en conservant une lecture d'ensemble de l'équipement.

Catégorie aménagement bois, aménagement intérieur
Numéro de projet6190
Adresse du projet 44000 nantes
Date de candidature15/03/2021

aménagement bois

aménagement intérieur

Année de réalisation : 2021
Coût total Aménagement Intérieur en € HT : 540000
Coût lots bois en € HT : 165000
Surface aménagée en m² : 427

Liste des produits :

ProduitEssenceProvenances (lieu de croissance du bois)Marque et certification produitFinition
Mobilier
Panneau acoustique
Panneau massif d'agencement
Bois Français : oui

Descriptif technique de l'aménagement : Mobilier bois des espaces d'accueil, des salles d'activités, des salles de propreté, des coins cuisines

Données déclaratives

Acteurs du projet

Maître d'ouvrage (1)

Maître d'ouvrage - Particuliers

particulier (x)

Etudes et ingénieries (3)

Maître d'œuvre - Architecte mandataire

&co Architectes (44)

Bureau d'études thermique

Kypseli (85)

Economiste

&co Architectes (44)

Entreprises des lots bois (1)

Menuisier

Atelier Isac (44)




* : L'entreprise n'est plus active
Retour à la liste