Aménager
Aménager

Longère ecolodge Roc'h an dour

29252 PLOUEZOC H - Finistère - Bretagne

AMÉNAGEMENT BOIS

Aménagement intérieur

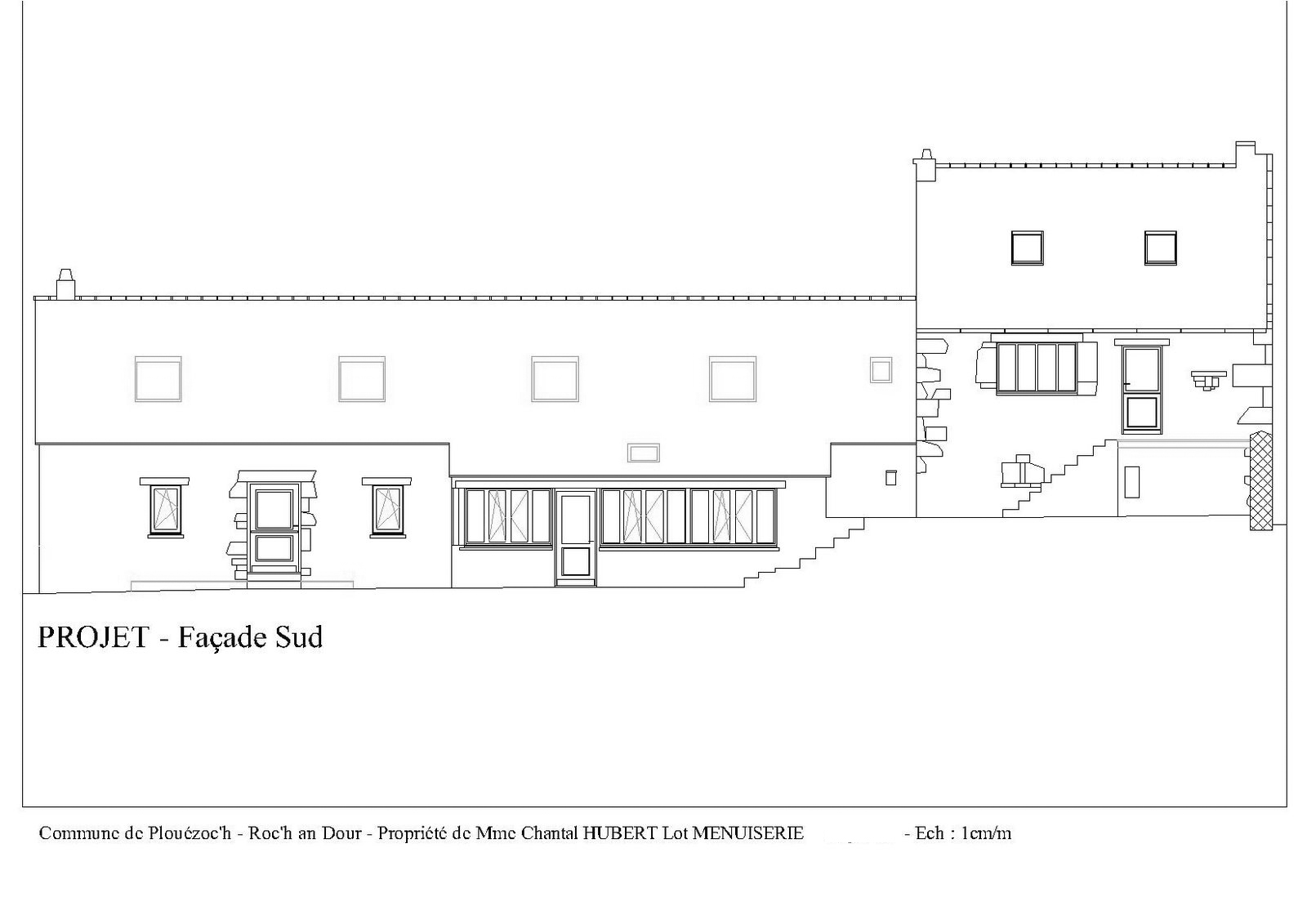
Située sur la rive Est , sur la côte du Trégor de la Baie de Morlaix entre Terre et Mer , cet ancien corps de ferme datant du 17ème siècle en schiste et granit faisait anciennement partie d’un ensemble de maison rattachée au manoir voisin. Composée de 3 bâtiments alignés et reliés et marquée par une architecture au caractère patrimonial riche. la maison possède des façades comportant des linteaux de pierres ouvragés et de nombreuses traces de l’architecture vernaculaire locale. L’orientation plein sud côté jardin est idéale pour ouvrir la maison généreusement et faire entrer la lumière naturelle. Elle a connu une rénovation sommaire dans les années 1990 par un paysagiste qui avait généreusement planté le jardin d’essences favorables au climat local. Lorsque l’actuelle propriétaire découvre la maison, elle tombe sous le charme de ce roc’h en bord de rivière, véritable havre de paix, et décide de réhabiliter l’ensemble des 3 corps de ferme en éco-gîtes modulables. La préservation du bâti actuel et l’utilisation des matériaux écologique sont les principales exigences du projet. Il s’agira de révéler l’existant, par une rénovation respectueuse de l’histoire des lieux, tout en optimisant la fonctionnalité des espaces. La réflexion est exigeante et nécessite conseils de l’association Tiez Breizh. D’importantes transformations sont nécessaires : drainage, terrassement, réfection des toitures et de la charpente reprise structurelle des planchers… Une attention particulière est portée à la rénovation thermique du bâtiment par l’isolation intérieure totale ainsi que les menuiseries extérieures et intérieures en bois. Le système de chauffage mis en œuvre est une chaudière granulés bois alimentant un chauffage au sol. Les cloisonnements et aménagements intérieurs en bois sont réalisés par des entreprises locales avec des exigences et un soin du détail poussé. La maison d’hôtes principale est composée des 2 corps de ferme principaux dans le jardin bas. Elle comprend en RdC des vastes pièces de vie ouvertes sur un jardin d’hiver plein sud. La façade ouest en ossature et bardage bois permet de profiter de l’ensoleillement du soir entre un espace bibliothèque et la terrasse. En étage les chambres en enfilade se déclinent sous le voligeage de sapin dans une atmosphère chaleureuse. Un gîte attenant, relié mais séparable, permet l’accueil d’une autre famille avec 2 chambres à l’étage. De plus un atelier en fond de jardin a permis la pose de panneaux solaires photovoltaïques en toiture. Enfin l'eau de la source, sur l'ancien lavoir , en contre bas du terrain est récupérée pour les eaux ménagères. Le bois omniprésent reflète la lumière naturelle, ce qui donne à l’ensemble de la maison une atmosphère des plus chaleureuses. Le projet est pensé comme un lieu de repos et de ressourcement dans le prolongement de l’histoire des lieux.

Aménagement exterieur

Atelier en fond de terrain

Bâtiment / logement

Située sur la rive Est , sur la côte du Trégor de la Baie de Morlaix entre Terre et Mer , cet ancien corps de ferme datant du 17ème siècle en schiste et granit faisait anciennement partie d’un ensemble de maison rattachée au manoir voisin. Composée de 3 bâtiments alignés et reliés et marquée par une architecture au caractère patrimonial riche. la maison possède des façades comportant des linteaux de pierres ouvragés et de nombreuses traces de l’architecture vernaculaire locale. L’orientation plein sud côté jardin est idéale pour ouvrir la maison généreusement et faire entrer la lumière naturelle. Elle a connu une rénovation sommaire dans les années 1990 par un paysagiste qui avait généreusement planté le jardin d’essences favorables au climat local. Lorsque l’actuelle propriétaire découvre la maison, elle tombe sous le charme de ce roc’h en bord de rivière, véritable havre de paix, et décide de réhabiliter l’ensemble des 3 corps de ferme en éco-gîtes modulables. La préservation du bâti actuel et l’utilisation des matériaux écologique sont les principales exigences du projet. Il s’agira de révéler l’existant, par une rénovation respectueuse de l’histoire des lieux, tout en optimisant la fonctionnalité des espaces. La réflexion est exigeante et nécessite conseils de l’association Tiez Breizh. D’importantes transformations sont nécessaires : drainage, terrassement, réfection des toitures et de la charpente reprise structurelle des planchers… Une attention particulière est portée à la rénovation thermique du bâtiment par l’isolation intérieure totale ainsi que les menuiseries extérieures et intérieures en bois. Le système de chauffage mis en œuvre est une chaudière granulés bois alimentant un chauffage au sol. Les cloisonnements et aménagements intérieurs en bois sont réalisés par des entreprises locales avec des exigences et un soin du détail poussé. La maison d’hôtes principale est composée des 2 corps de ferme principaux dans le jardin bas. Elle comprend en RdC des vastes pièces de vie ouvertes sur un jardin d’hiver plein sud. La façade ouest en ossature et bardage bois permet de profiter de l’ensoleillement du soir entre un espace bibliothèque et la terrasse. En étage les chambres en enfilade se déclinent sous le voligeage de sapin dans une atmosphère chaleureuse. Un gîte attenant, relié mais séparable, permet l’accueil d’une autre famille avec 2 chambres à l’étage. De plus un atelier en fond de jardin a permis la pose de panneaux solaires photovoltaïques en toiture. Enfin l'eau de la source, sur l'ancien lavoir , en contre bas du terrain est récupérée pour les eaux ménagères. Le bois omniprésent reflète la lumière naturelle, ce qui donne à l’ensemble de la maison une atmosphère des plus chaleureuses. Le projet est pensé comme un lieu de repos et de ressourcement dans le prolongement de l’histoire des lieux.

Catégorie aménagement bois, aménagement intérieur, aménagement exterieur, Bâtiment / logement
Numéro de projet619
Adresse du projet Roch an dour
29252 PLOUEZOC H
Date de candidature27/03/2018

aménagement bois

typologie : Logements de vacances ou de loisirs
Coût total en € HT : 280000

aménagement intérieur

Année de réalisation : 2015
Volume bois m³ : 9
Surface aménagée en m² : 280

Liste des produits :

ProduitEssenceProvenances (lieu de croissance du bois)Marque et certification produitFinition
EscalierChêneBretagneHuile
LambrisSapin pectinéBretagneAucune finition
MobilierChêneBretagneHuile
Panneau massif d'agencementBouleauBretagneHuile

Approche environnementale : Le projet est une réhabilitation écologique. - Il s’agit d’une rénovation thermique qui répond à des exigences d’améliorations énergétiques basée sur les exigences de la RT rénovation. L’isolation (sol, murs, toitures), les menuiseries extérieures, le choix du type de chauffage et de l’alimentation en eau chaude sanitaire, le choix du système de ventilation, l’étanchéité à l’air ont été soigneusement étudiées. - La mise en œuvre de matériaux écologiques a été imposée pour créer des espaces intérieurs sains et pérennes. Matériaux Toiture : Ardoises d’Espagne Charpente neuve : Pin douglas + voliges Isolation intérieure : Fibre de bois, ouate de cellulose, enduit chaux chanvre Menuiseries extérieures : Bois (Pin sylvestre) – double vitrage Menuiseries intérieures: pin Sylvestre, chêne. Cloisons en contreplaqués de peuplier. Finitions intérieures : contreplaqué de peuplier, enduits chaux chanvre, badigeon de chaux, peintures sans COV. Sol Rdc : terre cuite / Sol R+1 : Plancher sapin du nord + laine de bois (4 cm) + jonc de mer. BOIS : - Pin Douglas : Charpente, Voliges, Bardages, Terrasse, Atelier - Epicéa : Planchers, Lambris, Echelle de meunier, - Contre plaqué Peuplier : Cloisons intérieures - Pin sylvestre : Menuiseries ( Portes - Fenêtres) Intérieures et extérieures - Chêne : Escalier et coffres

Descriptif technique de l'aménagement : Surface habitable : 260 m² + terrain de 1500 m² Orientation Sud/Sud est Le bâtiment date du 17ème siècle en schiste et granit. Matériaux : Schiste, granit, charpente et plancher bois. La toiture est en ardoise. Vélux créés en toiture. Exposition : Nord (façade sur maison voisine) – Sud (façade sur jardin). Façades : Sud : création d’un jardin d’hiver vitré. Ouest : façade en bardage et menuiserie bois. Nord : Déplacement de fenêtres. Isolation / apport solaire : Sol (Polystyrène 100mm), plafond, murs intérieurs en enduit chaux chanvre. - murs ext en enduits chaux chanvre (pour utiliser au max l’inertie des murs). - combles en fibre de bois. (16 cm) - Cloisons contreplaqué de peuplier + ouate de cellulose - fenêtres en double vitrage + argon - Jardin d’hiver sud - Mur pignon ouest : bardage douglas + laine de chanvre Chauffage/ECS : Chaudière granulés bois et plancher chauffant. * Chaudière à granulés de bois (hargassner).= 15-35 kw - Chauffage par le sol en rdc et radiateurs à l’étage. Dalles chauffantes en chaux chanvre (+serpentin) recouvertes de terre cuite. - Eau chaude sanitaire * 2 poêles à bois : Pignon Ouest + Pignon Est * 1 cheminée à foyer ouvert (agrément) Ventilation : VMC simple flux hygroréglable. Production d’energie electrique : panneaux photovoltaiques sur l’atelier (orienté plein sud). Récupération eau de source (bas du terrain, par une pompe située ds l’atelier)) pour eaux sanitaires (WC, LV, LL, Jardin) ISOLATION : - Toiture Panneaux de fibre de bois croisés 2 épaisseurs de 8 cm sur longère Ouate de cellulose 20cm sur cuisine - jardin d'hiver Ouate de cellulose 20cm sur gîte - Pignon Ouest Laine de bois 14cm - Murs de pierre Enduit intérieur Chaux Chanvre de 5cm

aménagement exterieur

Année de réalisation : 2013
Coût total aménagement extérieur en € HT : 40000
Volume bois : 4
Surface aménagée en m² : 40

Liste des produits :

ProduitEssenceProvenances (lieu de croissance du bois)Traitements de préservationFinitionMarque et certification produit
Abri de jardin / CarportDouglasBretagneHuile
Notice architecturale : Atelier en fond de terrain

Bâtiment / logement

Détail projet

Typologie de bâtiment : Neuf,Rénovation / Réhabilitation
Type de bâtiment : Logements de vacances ou de loisirs
Année de livraison : 2015
Surface totale du bâtiment en m² : 280
Coût total en € HT (hors foncier, hors VRD, hors honoraires) : 280000
Lot bois n°1 concerné : Charpente bois
Volume lot bois n°1 - m³ : 9
Lot bois n°2 concerné : Autre lot bois
Volume lot bois n°2 - m³ : 4

Structure bois du bâtiment

Structure verticale :

ProduitEssenceProvenances (lieu de croissance du bois)Traitements de préservationMarque et certification produit
Poteau poutreSapin pectiné

Structure horizontale :

ProduitEssenceProvenances (lieu de croissance du bois)Traitements de préservationMarque et certification produit
Solivage traditionnelSapin pectinéBretagne

Charpente :

ProduitEssenceProvenances (lieu de croissance du bois)Traitements de préservationMarque et certification produit
Charpente traditionnelleDouglasBretagne

Revêtement bois extérieur

Revêtement bois ou dérivés :

ProduitEssenceProvenances (lieu de croissance du bois)Marque et certification produitFinitionTraitements de préservation
Lame bois massifDouglasBretagneAucune finition

Menuiserie intérieure et extérieure

Isolation des murs

Isolation intérieure des murs :

Produit
Laine de chanvre
Epaisseur (mm) Isolation intérieure des murs : 140

Isolation de la toiture

Epaisseur (mm) Isolation intérieure de la toiture : 160

Approche environnementale : Le projet est une réhabilitation écologique. - Il s’agit d’une rénovation thermique qui répond à des exigences d’améliorations énergétiques basée sur les exigences de la RT rénovation. L’isolation (sol, murs, toitures), les menuiseries extérieures, le choix du type de chauffage et de l’alimentation en eau chaude sanitaire, le choix du système de ventilation, l’étanchéité à l’air ont été soigneusement étudiées. - La mise en œuvre de matériaux écologiques a été imposée pour créer des espaces intérieurs sains et pérennes. Matériaux Toiture : Ardoises d’Espagne Charpente neuve : Pin douglas + voliges Isolation intérieure : Fibre de bois, ouate de cellulose, enduit chaux chanvre Menuiseries extérieures : Bois (Pin sylvestre) – double vitrage Menuiseries intérieures: pin Sylvestre, chêne. Cloisons en contreplaqués de peuplier. Finitions intérieures : contreplaqué de peuplier, enduits chaux chanvre, badigeon de chaux, peintures sans COV. Sol Rdc : terre cuite / Sol R+1 : Plancher sapin du nord + laine de bois (4 cm) + jonc de mer. BOIS : - Pin Douglas : Charpente, Voliges, Bardages, Terrasse, Atelier - Epicéa : Planchers, Lambris, Echelle de meunier, - Contre plaqué Peuplier : Cloisons intérieures - Pin sylvestre : Menuiseries ( Portes - Fenêtres) Intérieures et extérieures - Chêne : Escalier et coffres

Descriptif technique : Surface habitable : 260 m² + terrain de 1500 m² Orientation Sud/Sud est Le bâtiment date du 17ème siècle en schiste et granit. Matériaux : Schiste, granit, charpente et plancher bois. La toiture est en ardoise. Vélux créés en toiture. Exposition : Nord (façade sur maison voisine) – Sud (façade sur jardin). Façades : Sud : création d’un jardin d’hiver vitré. Ouest : façade en bardage et menuiserie bois. Nord : Déplacement de fenêtres. Isolation / apport solaire : Sol (Polystyrène 100mm), plafond, murs intérieurs en enduit chaux chanvre. - murs ext en enduits chaux chanvre (pour utiliser au max l’inertie des murs). - combles en fibre de bois. (16 cm) - Cloisons contreplaqué de peuplier + ouate de cellulose - fenêtres en double vitrage + argon - Jardin d’hiver sud - Mur pignon ouest : bardage douglas + laine de chanvre Chauffage/ECS : Chaudière granulés bois et plancher chauffant. * Chaudière à granulés de bois (hargassner).= 15-35 kw - Chauffage par le sol en rdc et radiateurs à l’étage. Dalles chauffantes en chaux chanvre (+serpentin) recouvertes de terre cuite. - Eau chaude sanitaire * 2 poêles à bois : Pignon Ouest + Pignon Est * 1 cheminée à foyer ouvert (agrément) Ventilation : VMC simple flux hygroréglable. Production d’energie electrique : panneaux photovoltaiques sur l’atelier (orienté plein sud). Récupération eau de source (bas du terrain, par une pompe située ds l’atelier)) pour eaux sanitaires (WC, LV, LL, Jardin) ISOLATION : - Toiture Panneaux de fibre de bois croisés 2 épaisseurs de 8 cm sur longère Ouate de cellulose 20cm sur cuisine - jardin d'hiver Ouate de cellulose 20cm sur gîte - Pignon Ouest Laine de bois 14cm - Murs de pierre Enduit intérieur Chaux Chanvre de 5cm NF Maison Individuelle HQE

Chauffage au Bois : oui
Appareil de chauffage au bois : Poële/insert,Chaudière
Certifications, labels et marques bâtiment : Bâtiment Biosourcé,Bois de France
Données déclaratives

Acteurs du projet

Maître d'ouvrage (1)

Maître d'ouvrage - Particuliers

particulier (x)

Etudes et ingénieries (1)

Maître d'œuvre - Architecte mandataire

Lucie Deschamps Lelievre Ldl (LUCID) (44)

Entreprises des lots bois (4)

Charpentier

SAS DU RELEC (29)

Menuisier

MENUISERIE DE LANVAUX-LE BODIC (56)
CARRÉ VERT (29) *
ESSENCES BOIS (29) *




* : L'entreprise n'est plus active
Retour à la liste