Réhabiliter un équipement
Réhabiliter un équipement

Centre médical du Puch

33750 Saint germain du Puch - Gironde - Nouvelle-Aquitaine

BÂTIMENT / LOGEMENT

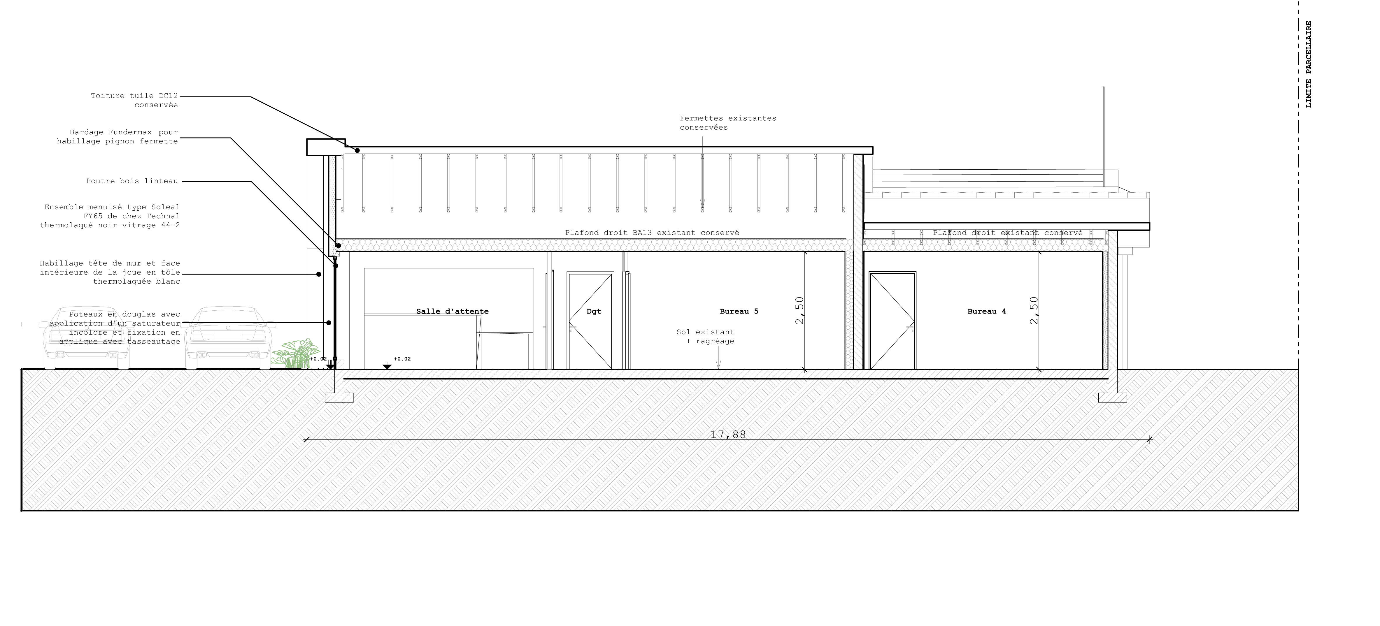
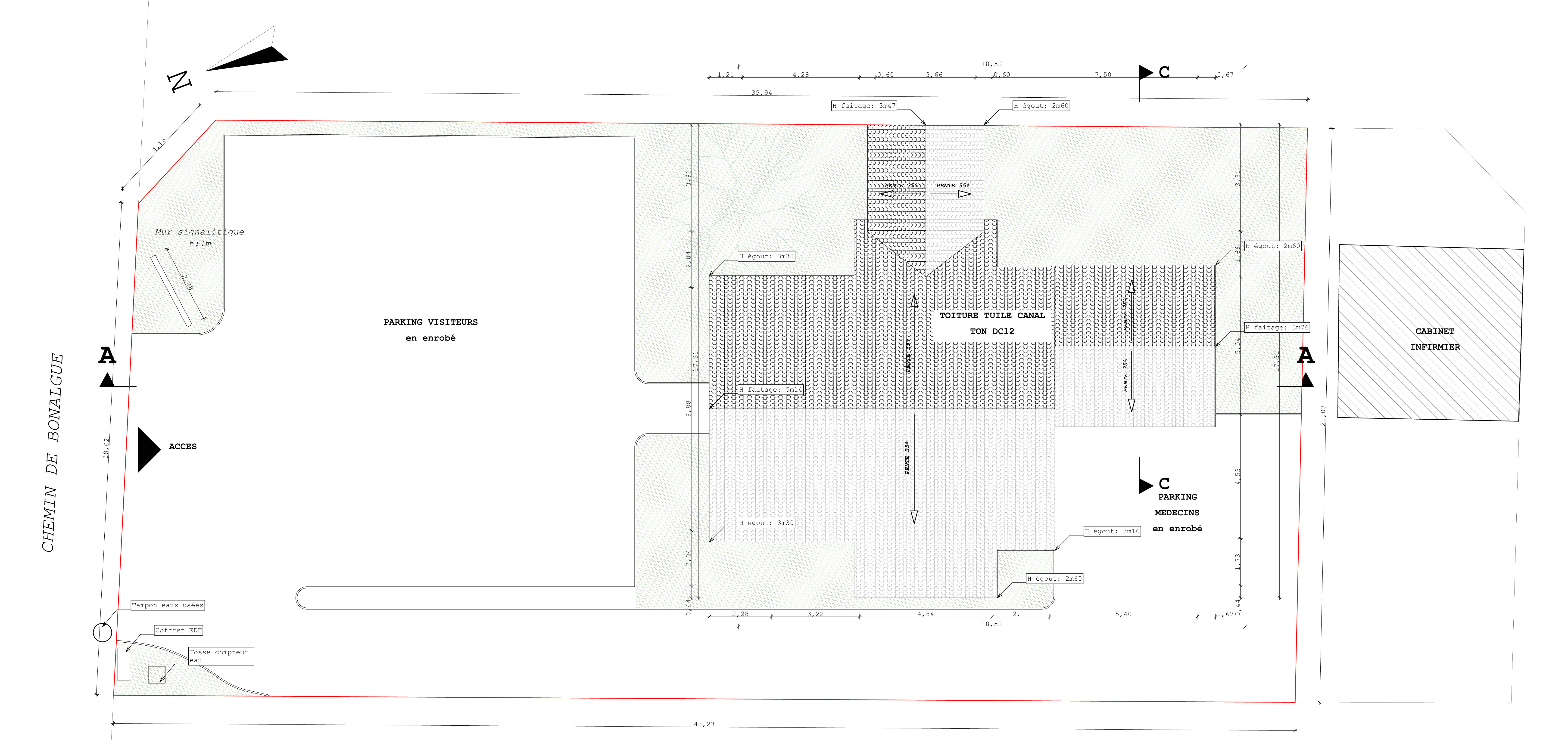
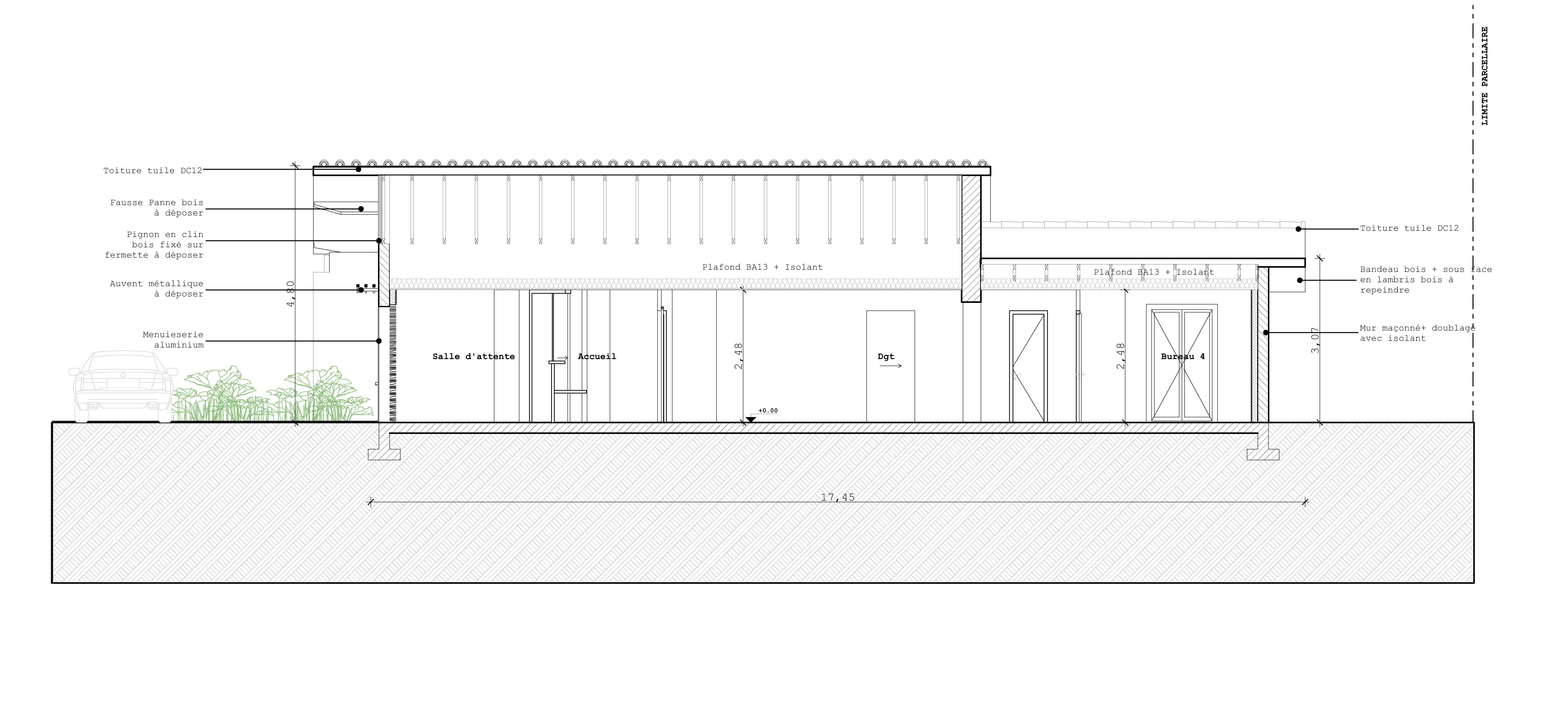
Suite au développement de l'activité des maître d'ouvrage (médecins), le centre médical existant était devenu trop étroit et ne correspondait plus aux besoins de leur pratique. Le projet consiste en l’agrandissement de la salle d’attente et des bureaux et la rénovation complète des locaux. La conception s’attache à dessiner une ligne claire. Les extensions s’inscrivent dans le prolongement des toitures existantes. Des poteaux bois rythment la façade et sont cerclés par un bandeau métallique blanc.

Catégorie Bâtiment / logement
Numéro de projet6165
Adresse du projet 18 chemin de Bonalgue
33750 Saint germain du Puch
Date de candidature08/03/2021

Bâtiment / logement

Détail projet

Typologie de bâtiment : Extension / surélévation,Rénovation / Réhabilitation
Type de bâtiment : Santé
Année de livraison : 2020
Surface totale du bâtiment en m² : 222
Dont extension / surélévation en m² : 81
Coût total en € HT (hors foncier, hors VRD, hors honoraires) : 241188
Coût du lot bois n°1 - € HT : 44500
Bois Français : non
Isolations biosourcées (préciser dans le descriptif technique) : non
Finitions intéreures biosourcées ou géosourcées (préciser dans le descriptif technique) : non

Structure bois du bâtiment

Structure verticale :

ProduitEssenceProvenances (lieu de croissance du bois)Traitements de préservationMarque et certification produit
Poteau poutreDouglasFranceTraitement Classe 2 (trempage)
Panneau ossature boisEuropeTraitement Classe 2 (trempage)

Structure horizontale :

ProduitEssenceProvenances (lieu de croissance du bois)Traitements de préservationMarque et certification produit
Plancher béton

Charpente :

ProduitEssenceProvenances (lieu de croissance du bois)Traitements de préservationMarque et certification produit
Charpente traditionnelleÉpicéa communEuropeTraitement Classe 2 (trempage)
Charpente bois lamellé-colléÉpicéa communEuropeTraitement Classe 2 (trempage)

Revêtement bois extérieur

Revêtement bois ou dérivés :

ProduitEssenceProvenances (lieu de croissance du bois)Marque et certification produitFinitionTraitements de préservation
Lame bois massifDouglasFranceTraitement Classe 3b (autoclave)
Panneau de synthèse ou composite

Menuiserie intérieure et extérieure

Isolation des murs

Isolation intérieure des murs :

Produit
Laine de verre
Epaisseur (mm) Isolation intérieure des murs : 60

Isolation entre-montant des murs :

Produit
Laine de verre
Epaisseur (mm) Isolation entre-montant des murs : 145

Isolation extérieure des murs :

Produit
Fibre de bois (Panneaux)
Epaisseur (mm) Isolation extérieure des murs : 60

Isolation de la toiture

Epaisseur (mm) Isolation intérieure de la toiture : 350

Approche environnementale : Construction en ossature bois, isolation thermique renforcée.

Descriptif technique : Mur ossature bois avec bardage en pin autoclave ton brun, menuiserie aluminium, ITE en fibre de bois et enduit monocouche, Charpente traditionnelle (extension) avec couverture en tuile canal. Chauffage/climatisation réversible sur PAC.

Chauffage au Bois : non
Données déclaratives

Acteurs du projet

Maître d'ouvrage (1)

Maître d'ouvrage - Industriels - commerçants - entreprise

SCI MDP (33)

Etudes et ingénieries (3)

Maître d'œuvre - Architecte mandataire

atelier gotham - Florian Jovet architecte (33)

Bureau d'études structure bois

MONPROJETBOIS.COM (33)

Bureau d'études thermique

BUREAU D'ETUDES VIVIEN (33)

Entreprises des lots bois (1)

Charpentier

SAS PH LAURENT (33)

Fournisseurs du bois (2)

Scierie

GARDAREIN SAS (24)
VIVRE EN BOIS (33)




* : L'entreprise n'est plus active
Retour à la liste