Travailler – accueillir
Travailler – accueillir

BUREAUX INGERIF

72240 CONLIE - Sarthe - Pays de la Loire

BÂTIMENT / LOGEMENT

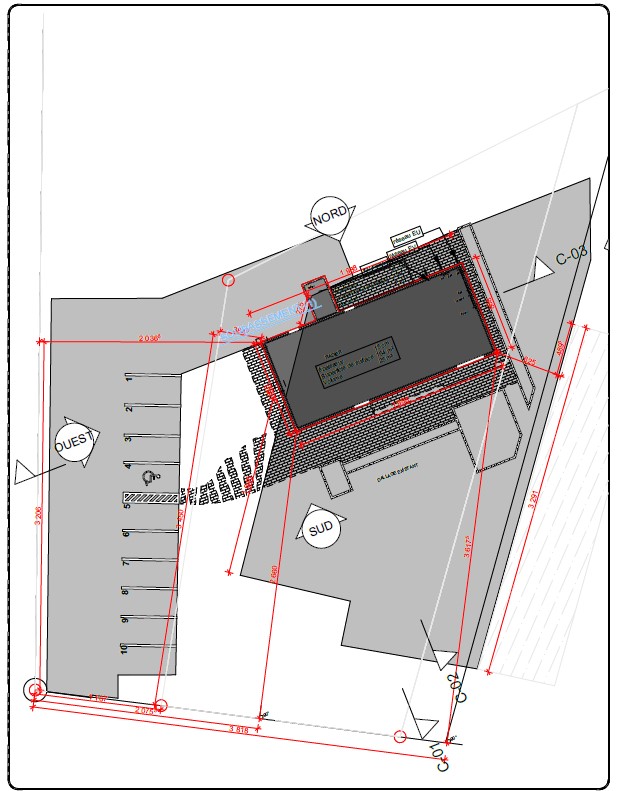
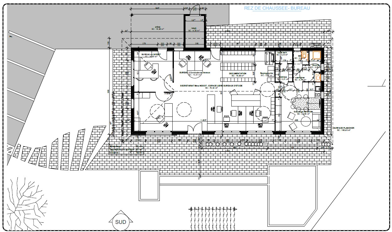
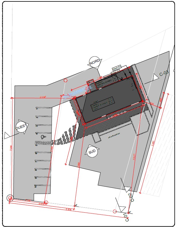
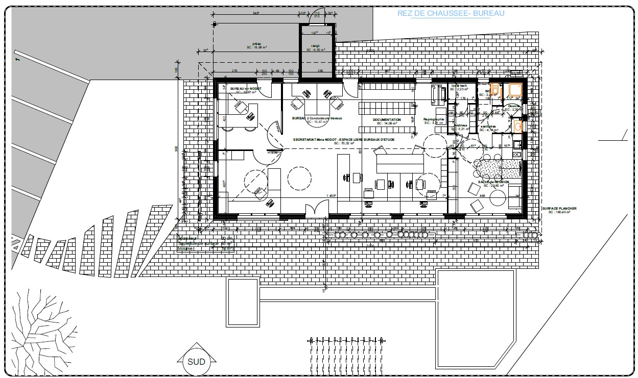
Le projet concerne un bâtiment de bureaux pour la société INGERIF (bureau d'étude VRD paysage) sur un terrain situé rue de l'Epinaube à Conlie 72240 en Sarthe 72. Le projet accueille une entreprise de 7 - 9 personnes et se compose d'un espace secrétariat ouvert sur un espace de bureaux et documentation, un bureau séparé et une salle de réunion ainsi que tous les locaux techniques et sanitaires. Le volume de la construction est simple: - Un volume en ossature bois couvert à 4 pentes en ZINC et bardé d'un bardage naturel.

Catégorie Bâtiment / logement
Numéro de projet6140
Adresse du projet 33 rue de l'épinaude
72240 CONLIE
Date de candidature08/03/2021

Bâtiment / logement

Détail projet

Typologie de bâtiment : Neuf
Type de bâtiment : Lieu d'entreprise
Année de livraison : 2018
Surface totale du bâtiment en m² : 205
Coût total en € HT (hors foncier, hors VRD, hors honoraires) : 232992.13
Lot bois n°1 concerné : Charpente bois
Coût du lot bois n°1 - € HT : 39028.87
Bois Français : oui
Isolations biosourcées (préciser dans le descriptif technique) : non
Finitions intéreures biosourcées ou géosourcées (préciser dans le descriptif technique) : non

Structure bois du bâtiment

Structure verticale :

ProduitEssenceProvenances (lieu de croissance du bois)Traitements de préservationMarque et certification produit
Panneau ossature boisEuropeTraitement Classe 2 (trempage)

Structure horizontale :

ProduitEssenceProvenances (lieu de croissance du bois)Traitements de préservationMarque et certification produit
Non précisé

Charpente :

ProduitEssenceProvenances (lieu de croissance du bois)Traitements de préservationMarque et certification produit
Charpente industrielleÉpicéa communEuropeTraitement Classe 2 (trempage)

Revêtement bois extérieur

Revêtement bois ou dérivés :

ProduitEssenceProvenances (lieu de croissance du bois)Marque et certification produitFinitionTraitements de préservation
Lame bois massifÉpicéa communEuropeSaturateurTraitement Classe 3a (trempage)

Menuiserie intérieure et extérieure

Isolation des murs

Isolation intérieure des murs :

Produit
Isolants issus recyclage ou ré-emploi
Epaisseur (mm) Isolation intérieure des murs : 50

Isolation entre-montant des murs :

Produit
Laine de verre
Epaisseur (mm) Isolation entre-montant des murs : 145

Isolation extérieure des murs :

Produit
Fibre de bois (Panneaux)
Epaisseur (mm) Isolation extérieure des murs : 60

Isolation de la toiture

Epaisseur (mm) Isolation intérieure de la toiture : 435

Approche environnementale : Le projet a porté une attention toute particulière sur l'intégration du bâtiment dans le site et au traitement des aménagements paysagers par la création de bassins de ligne d'eau et d'espace paysagers fleuris. Le projet a également travaillé la création de brises soleil ,naturels par la mise en place de murs végétalisés et la mise en place de câbles tendus pour la pousse de plantes grimpantes servant de brise soleil naturel aux bureaux plein sud.

Descriptif technique : Le volume de la construction est simple: - Un volume en ossature bois couvert à 4 pentes en ZINC et bardé d'un bardage naturel. - Projet isolé en laine de bois extérieure, en GR32 entre montant et en laine métisse sur l'intérieur. Les fermettes de toitures sont elles isolées en laine de verre soufllée

Chauffage au Bois : non
Données déclaratives

Acteurs du projet

Maître d'ouvrage (2)

Maître d'ouvrage - Particuliers

particulier (x)
INGERIF (72)

Etudes et ingénieries (3)

Maître d'œuvre - Architecte mandataire

Aaue Atelier Architecte Environnement (72)

Bureau d'études thermique

LCA (72)

Paysagiste

INGERIF (72)

Entreprises des lots bois (1)

Charpentier

Sas Bernard Chabrun (53)




* : L'entreprise n'est plus active
Retour à la liste