Réhabiliter un équipement

Lycée René Cassin - Restaurant scolaire

35160 Montfort sur Meu - Ille et Vilaine - Bretagne

BÂTIMENT / LOGEMENT

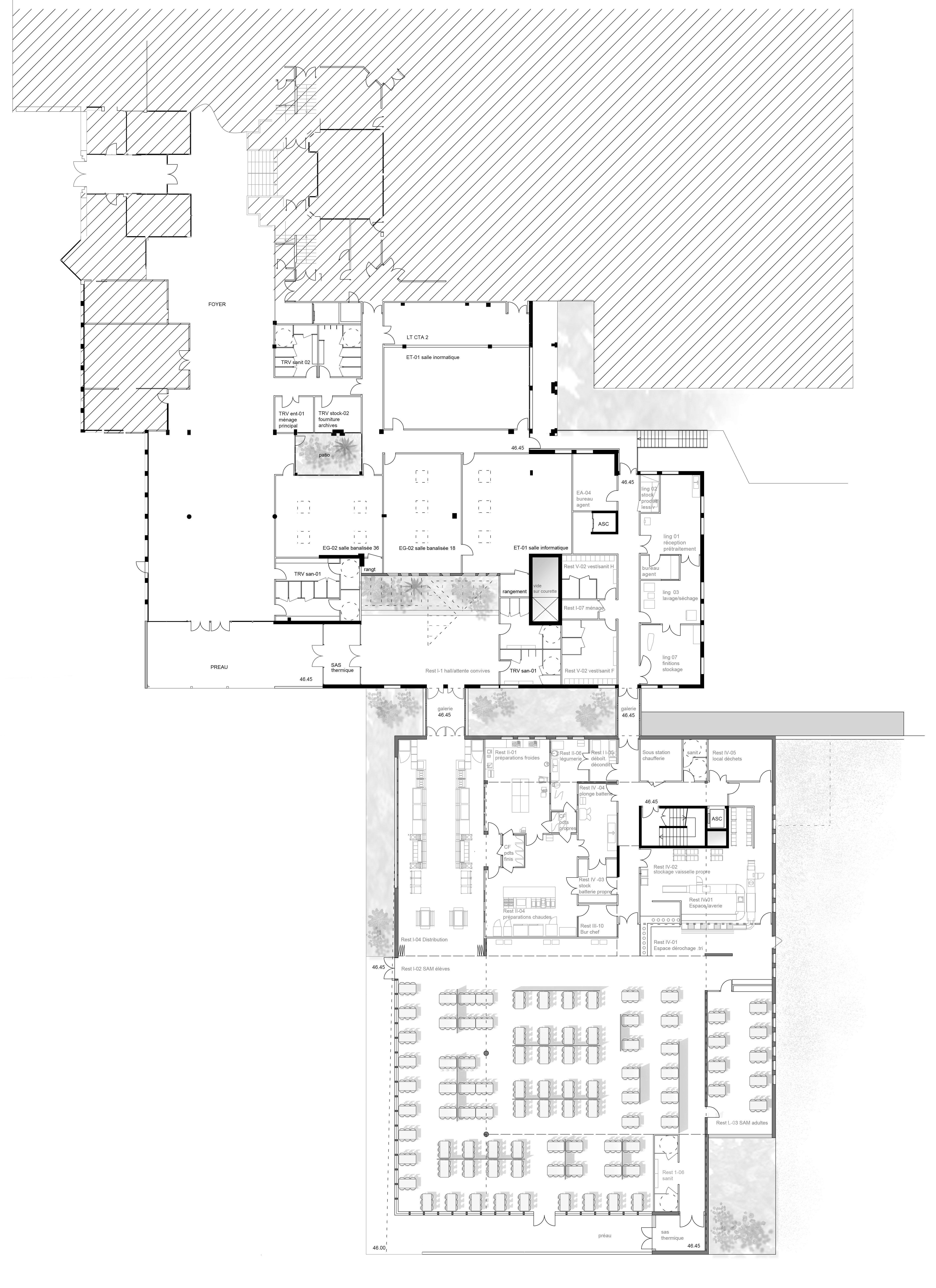
Ce nouveau service de restauration améliore la fonctionnalité et le confort pour tous ses usagers. Il s'inscrit sobrement dans un contexte paysager remarquable, grâce à une architecture compacte aux lignes franches, faisant interagir bois et lumière. Ouvert à l’Ouest sur la cour, au Sud sur les espaces verts, le restaurant s'implante en fond de site préservant la fluidité entre le hall et la cour. Le projet, par son jeu de toitures en pentes douces végétalisées, fait écho au vallonnement du paysage. Il offre une grande transparence entre la salle de restaurant et cet environnement verdoyant.

Catégorie Bâtiment / logement
Numéro de projet6136
Adresse du projet Route de St Méen le Grand
35160 Montfort sur Meu
Date de candidature08/03/2021

Bâtiment / logement

Détail projet

Typologie de bâtiment : Extension / surélévation
Type de bâtiment : Enseignement ou éducation
Année de livraison : 2020
Surface totale du bâtiment en m² : 2599
Dont extension / surélévation en m² : 1244
Coût total en € HT (hors foncier, hors VRD, hors honoraires) : 4696106
Lot bois n°1 concerné : Charpente bois
Volume lot bois n°1 - m³ : 131
Lot bois n°2 concerné : Bardage bois
Volume lot bois n°2 - m³ : 41
Bois Français : oui
Isolations biosourcées (préciser dans le descriptif technique) : oui
Finitions intéreures biosourcées ou géosourcées (préciser dans le descriptif technique) : oui

Structure bois du bâtiment

Structure verticale :

ProduitEssenceProvenances (lieu de croissance du bois)Traitements de préservationMarque et certification produit
Panneau ossature boisÉpicéa de SitkaBretagne

Structure horizontale :

ProduitEssenceProvenances (lieu de croissance du bois)Traitements de préservationMarque et certification produit
Solivage traditionnelÉpicéa communEurope

Charpente :

ProduitEssenceProvenances (lieu de croissance du bois)Traitements de préservationMarque et certification produit
Charpente bois lamellé-colléÉpicéa communEurope

Revêtement bois extérieur

Revêtement bois ou dérivés :

ProduitEssenceProvenances (lieu de croissance du bois)Marque et certification produitFinitionTraitements de préservation
Lame bois massifDouglasBourgogne-Franche-Comté

Autre revêtement métallique :

Produit
Acier

Menuiserie intérieure et extérieure

Menuiserie extérieure :

ProduitEssenceProvenances (lieu de croissance du bois)Marque et certification produitFinition
Menuiserie mixteÉpicéa communEuropeHuile

Isolation des murs

Isolation entre-montant des murs :

Produit
Laine de roche
Epaisseur (mm) Isolation entre-montant des murs : 200

Isolation extérieure des murs :

Produit
Laine de roche
Epaisseur (mm) Isolation extérieure des murs : 60

Isolation de la toiture

Epaisseur (mm) Isolation extérieure de la toiture : 280

Approche environnementale : De conception bioclimatique le bâtiment : - limite son impact sur l’environnement (compacité, emprise au sol minimale, intégration de la topographie) - réduit les déperditions énergétiques (enveloppe performante : isolation renforcée et étanchéité à l’air) - capte les apports solaires passifs limitant l'appoint de chauffage (faces Ouest et Sud largement ouvertes et protégées des surchauffes par un brise soleil) - bénéficie de finitions intérieures biosourcées (structure, aménagements et plafonds acoustiques bois, colles et peintures sans COV, isolation des cloisons en laine de tissu recyclé)

Descriptif technique : Le bâtiment est construit majoritairement en bois : - murs : ossature bois avec isolation intégrée - structure, charpente : bois lamellé-collé - bardages et brises soleils architecturaux : bois et acier - la CTA double-flux à haut rendement permet de réguler parfaitement la qualité de l’air intérieur tout en limitant les déperditions thermiques - cuisine collective : récupération des calories sur les groupes froids - les toitures végétalisées limitent l’imperméabilisation des sols et améliore le fonctionnement thermique du bâtiment

Chauffage au Bois : non
Données déclaratives

Acteurs du projet

Maître d'ouvrage (2)

Maître d'ouvrage - État ou collectivité (locale et territ)

REGION BRETAGNE (CONSEIL REGIONAL DE BRETAGNE) (35)

Autres

SEMBREIZH St Brieuc (22)

Etudes et ingénieries (6)

Maître d'œuvre - Architecte mandataire

BRULE ARCHITECTES ASSOCIES (29)

Bureau d'études acoustique

ACOUSTB (38)

Bureau d'études structure bois

Egis Batiments Centre Ouest (35)

Bureau d'études environnement

Egis Batiments Centre Ouest (35)

Bureau d'études thermique

Egis Batiments Centre Ouest (35)

Economiste

Egis Batiments Centre Ouest (35)

Entreprises des lots bois (2)

Charpentier

CONSTRUCTIONS BOIS EMG (22)

Constructeur bois

CONSTRUCTIONS BOIS EMG (22)

Fournisseurs du bois (2)

Scierie

COSYLVA (23)
ORLO (35)




* : L'entreprise n'est plus active
Retour à la liste