Réhabiliter un équipement
Réhabiliter un équipement

Le Sixième toit

75016 Paris - Paris - Ile de France

BÂTIMENT / LOGEMENT

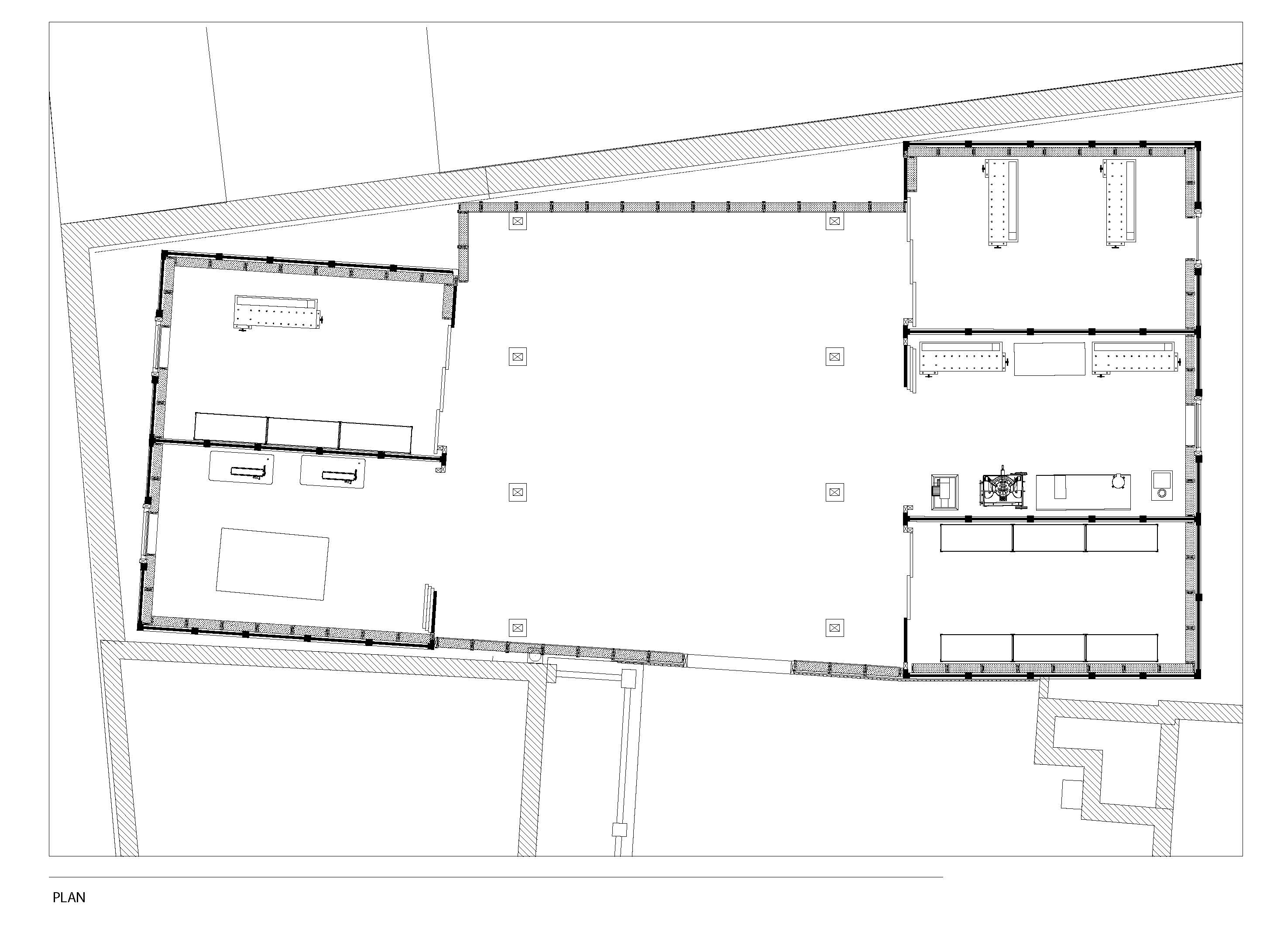
Ce projet cherche à explorer et repousser les limites de fin de vie des matériaux, des objets, des savoirs et des partages. Dans le cadre de la création des ateliers de savoir-faire manuels aux Cinq Toits, l’association Aurore et ses équipes cherchent à développer un lien étroit entre l’architecture et ses usages. La halle est un lieu où les savoirs se partagent et se transmettent autour d’objets et de matériaux qui ne demandent qu’à être réparés, transformés et à vivre une deuxième vie. Ce lieu est lui-même l’expression de son usage. Il est en effet construit avec des matériaux réemployés ou recyclés qui ont permis, lors de leur mise en œuvre, la formation qualifiante de futurs artisans-ouvriers.

Catégorie Bâtiment / logement
Numéro de projet6123
Adresse du projet 51 boulevard Exlemans
75016 Paris
Date de candidature05/03/2021

Bâtiment / logement

Détail projet

Typologie de bâtiment : Rénovation / Réhabilitation
Type de bâtiment : Enseignement ou éducation
Année de livraison : 2021
Surface totale du bâtiment en m² : 120
Dont extension / surélévation en m² : 65
Coût total en € HT (hors foncier, hors VRD, hors honoraires) : 57000
Lot bois n°1 concerné : Charpente bois
Volume lot bois n°1 - m³ : 357
Coût du lot bois n°1 - € HT : 1100
Lot bois n°2 concerné : Menuiserie intérieure bois
Bois Français : oui
Matériaux issus du ré-emploi (préciser dans le descriptif technique) : oui
Isolations biosourcées (préciser dans le descriptif technique) : oui
Matériaux géosourcés (préciser dans le descriptif technique) : non
Finitions intéreures biosourcées ou géosourcées (préciser dans le descriptif technique) : oui

Structure bois du bâtiment

Structure verticale :

ProduitEssenceProvenances (lieu de croissance du bois)Traitements de préservationMarque et certification produit
Poteau poutreChêneÎle-de-FranceAucun traitement

Structure horizontale :

ProduitEssenceProvenances (lieu de croissance du bois)Traitements de préservationMarque et certification produit
Non préciséÉpicéa communÎle-de-FranceJe n'ai pas l'information

Charpente :

ProduitEssenceProvenances (lieu de croissance du bois)Traitements de préservationMarque et certification produit
Charpente traditionnelleChêneÎle-de-FranceAucun traitement

Revêtement bois extérieur

Revêtement bois ou dérivés :

ProduitEssenceProvenances (lieu de croissance du bois)Marque et certification produitFinitionTraitements de préservation
Lame bois massifRobinier faux acaciaÎle-de-FranceAucune finitionAucun traitement

Menuiserie intérieure et extérieure

Isolation des murs

Isolation intérieure des murs :

Produit
Béton de chanvre
Epaisseur (mm) Isolation entre-montant des murs : 150

Isolation de la toiture

Epaisseur (mm) Isolation entre-montant de la toiture : 100

Approche environnementale : Nous avons décidé de faire du réemploi une donnée primordiale du projet. Le bâtiment a donc été conçu comme un laboratoire de matériaux réemployés, détournés et recyclés. Il a donc fallu expérimenter à tous les niveaux : trouver ou créer des filières et des gisements, fédérer des partenaires autour de cette pratique, penser en amont le seconde vie du bâtiment. Trouver de nouvelles méthodes de mises en œuvres a été indispensable à la requalification matériaux issus de chantier de déconstruction.

Descriptif technique : Dans une volonté de transmission, d’échange et de formation le chantier s’est fait avec la participation active des résidents des Cinq toits. Ce chantier est une opportunité unique de transmettre les savoirs-faire de la construction et de la déconstruction. Le site, ouvert au public, permet de présenter quotidiennement cette démarche aux visiteurs. Il devient une animation incontournable de la vie du site.

Chauffage au Bois : non
Données déclaratives

Acteurs du projet

Maître d'ouvrage (1)

Autres

ASSOCIATION AURORE (75)

Etudes et ingénieries (3)

Maître d'œuvre - Architecte mandataire

Atelier +1 (93)

Bureau d'études structure bois

LM Ingénieur (75)

Bureau d'études thermique

LM Ingénieur (75)

Entreprises des lots bois (1)

Charpentier

LE CHARPENTIER VOLANT (75)




* : L'entreprise n'est plus active
Retour à la liste