Réhabiliter un équipement
Réhabiliter un équipement

Salle des fêtes de Rouvres

28260 Rouvres - Eure et Loir - Centre-Val de Loire
Finaliste national

BÂTIMENT / LOGEMENT

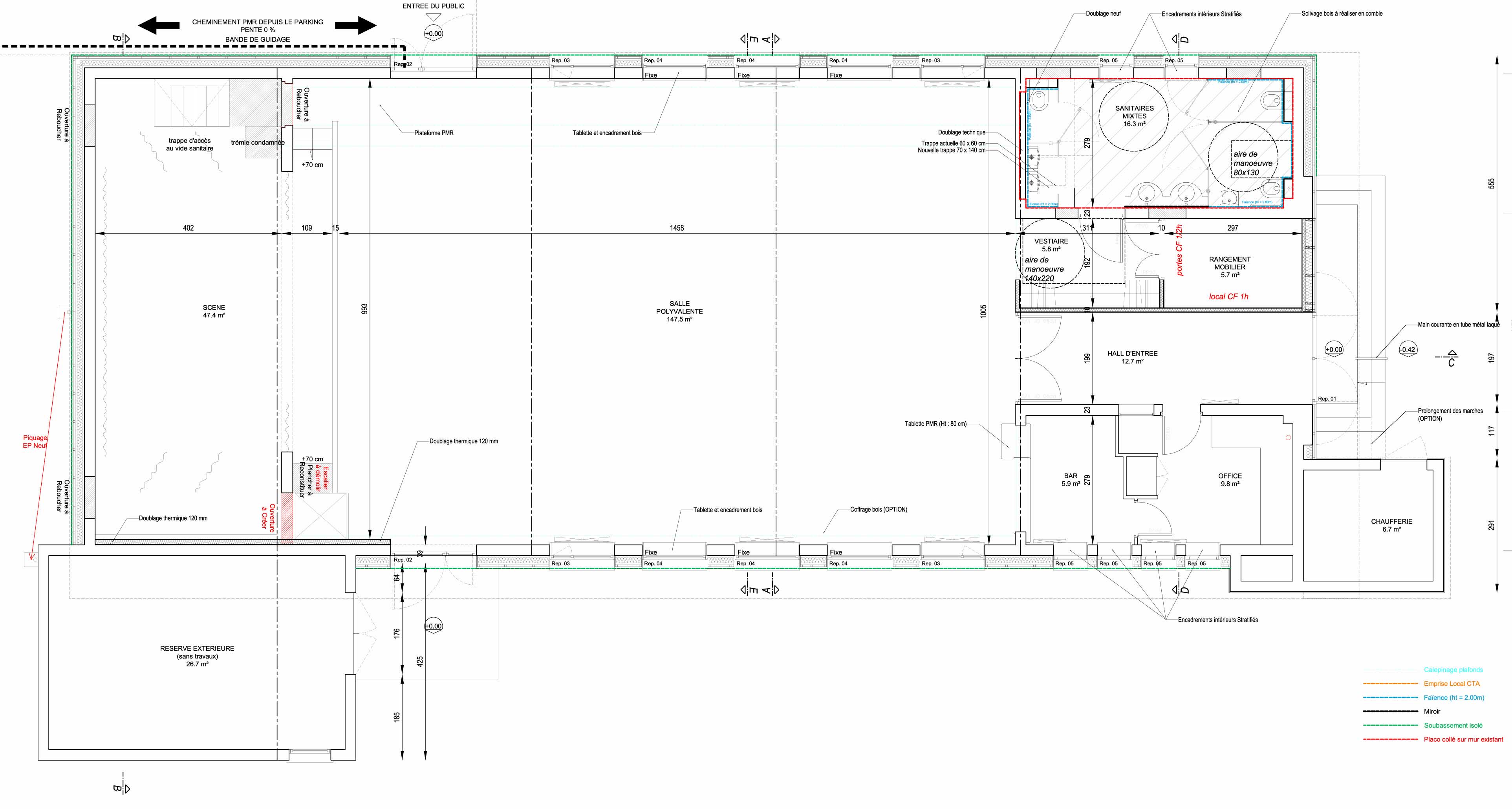
Le programme d'amélioration thermique et de mise aux normes réglementaires a permis de requalifier la salle des fêtes de Rouvres d'un point de vue fonctionnel et esthétique. Sa position en entrée de bourg et dans le périmètre protégé de l'église classée nous a conduit à assumer les caractères qui signe ses origines de 1960 (pas de toiture visible et charpente en treillis métallique) tout en anoblissant le traitement de ses volumes extérieurs et intérieurs.

Catégorie Bâtiment / logement
Numéro de projet6114
Adresse du projet rue de Mantes
28260 Rouvres
Date de candidature05/03/2021

Bâtiment / logement

Détail projet

Typologie de bâtiment : Rénovation / Réhabilitation
Type de bâtiment : Loisirs,Culture
Année de livraison : 2018
Surface totale du bâtiment en m² : 250
Coût total en € HT (hors foncier, hors VRD, hors honoraires) : 345000
Bois Français : oui
Isolations biosourcées (préciser dans le descriptif technique) : oui
Finitions intéreures biosourcées ou géosourcées (préciser dans le descriptif technique) : oui

Structure bois du bâtiment

Structure verticale :

ProduitEssenceProvenances (lieu de croissance du bois)Traitements de préservationMarque et certification produit
Non précisé

Structure horizontale :

ProduitEssenceProvenances (lieu de croissance du bois)Traitements de préservationMarque et certification produit
Solivage traditionnelÉpicéa communFranceAucun traitement

Charpente :

ProduitEssenceProvenances (lieu de croissance du bois)Traitements de préservationMarque et certification produit
Non précisé

Revêtement bois extérieur

Revêtement bois ou dérivés :

ProduitEssenceProvenances (lieu de croissance du bois)Marque et certification produitFinitionTraitements de préservation
Lame bois massifDouglasFranceAucune finitionAucun traitement

Menuiserie intérieure et extérieure

Menuiserie extérieure :

ProduitEssenceProvenances (lieu de croissance du bois)Marque et certification produitFinition
Menuiserie mixteÉpicéa communFranceLasure

Isolation des murs

Isolation extérieure des murs :

Produit
Laine de roche
Epaisseur (mm) Isolation extérieure des murs : 200

Isolation de la toiture

Epaisseur (mm) Isolation intérieure de la toiture : 300

Approche environnementale : - Isolation thermique par l'extérieur permettant de bénéficier à l'intérieur de l'inertie et de la solidité des parois maçonnées conservées - confort d'été assuré par la casquette solaire créée au SUD au-dessus des fenêtres et par les menuiseries de type passif (mixte bois/alu avec triple-vitrage) - ventilation double-flux assurant la qualité sanitaire de l'air ambiant et récupérant 80% des calories extraites - faux-plafond bois réalisé en circuit court : peuplier local, traité-feu par un industriel voisin et assemblé dans un atelier de menuiserie situé dans l'agglomération drouaise.

Descriptif technique : - renforcement de la charpente en treillis métallique selon prescriptions du diagnostic structurel - couverture et bardage des parties supérieures des façades en zinc - isolation sous toiture en laine de verre recyclé (obligatoire pour des rasions de légèreté) - isolation des façades par l'extérieur en laine de roche dans ossature bois - plafond acoustique sous rampant en lames de peuplier avec insertion de réglettes d'éclairage LED entre les lames. - menuiseries extérieures bois-alu traitement acoustique du volume scénique par panneaux de fibres d'épicéa en murs et plafond

Chauffage au Bois : non
Données déclaratives

Acteurs du projet

Maître d'ouvrage (1)

Maître d'ouvrage - État ou collectivité (locale et territ)

commune de Rouvres (28)

Etudes et ingénieries (2)

Maître d'œuvre - Architecte mandataire

SCOP-ARL B-A-Bo (28)

Bureau d'études thermique

BET Delage & Couliou (28)

Entreprises des lots bois (2)

Charpentier

ENTREPRISE BEQUET (61)

Menuisier

LMC - Les Menuiseries Castelneuviennes (28)




* : L'entreprise n'est plus active
Retour à la liste