Habiter une maison
Habiter une maison

Maison HD

67370 KLEINFRANKENHEIM - Bas Rhin - Grand Est
Finaliste national
Lauréat régional

BÂTIMENT / LOGEMENT

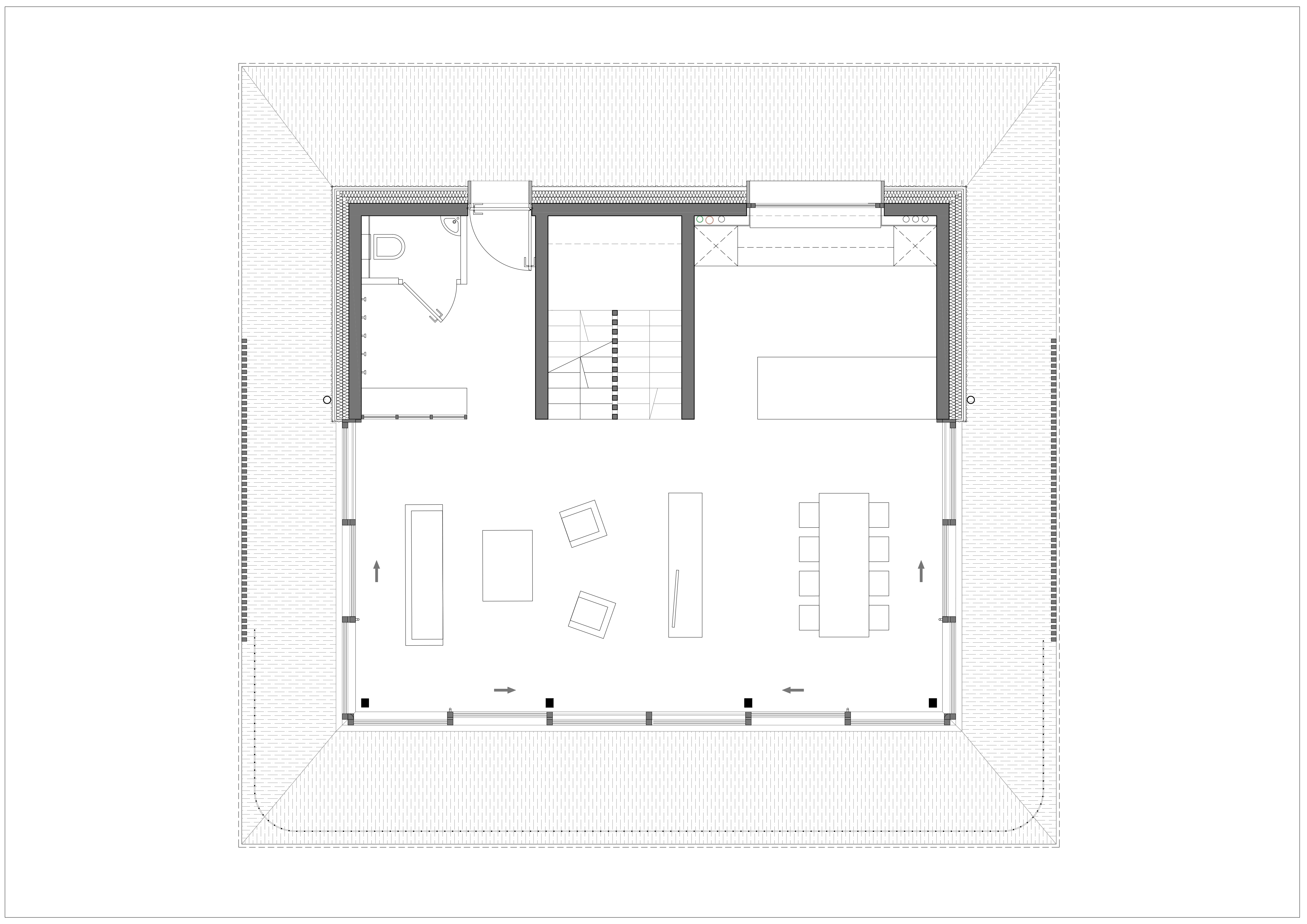
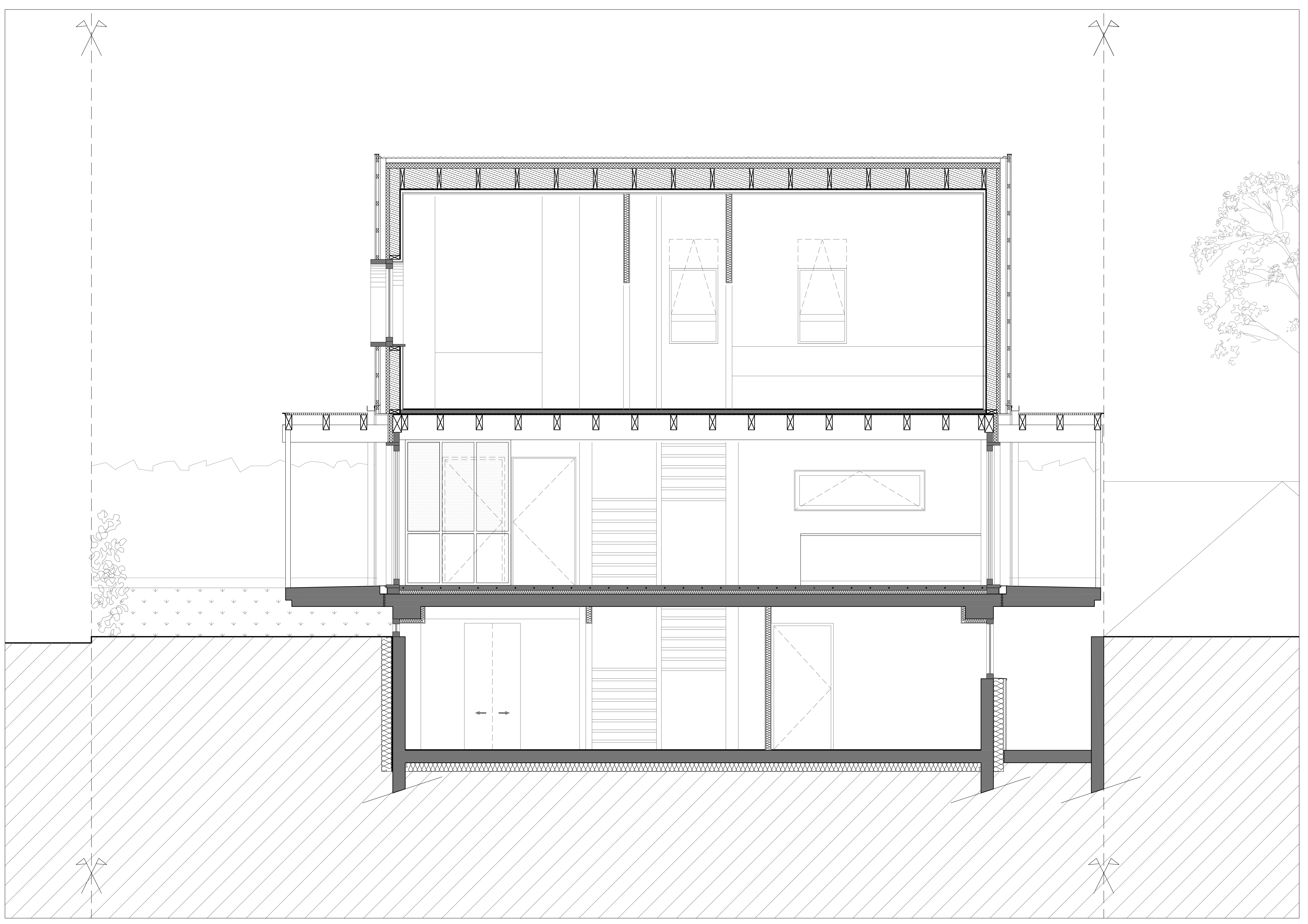
Du contexte pavillonnaire et réglementaire résulte la forme archétypale de la maison à double pans. Celle-ci est augmentée d’une terrasse périphérique abritée d’un débord de toiture formant alternativement couverture pleine et brise-soleils en caillebotis acier. La charpente apparente en mélèze vosgien forme une continuité intérieure/extérieure forte et donne un côté exotique et chaleureux à cette pagode pourtant bien alsacienne. La matérialité façade/toiture en bardage acier d’un vert/noir profond l’intègre dans le grand paysage arboré et rappelle les constructions agricoles environnantes.

Catégorie Bâtiment / logement
Numéro de projet6095
Date de candidature04/03/2021
Récompense1er prix

Bâtiment / logement

Détail projet

Typologie de bâtiment : Neuf
Type de bâtiment : Logement individuel supérieur à 120 m²
Année de livraison : 2020
Surface totale du bâtiment en m² : 180
Coût total en € HT (hors foncier, hors VRD, hors honoraires) : 270000
Lot bois n°1 concerné : Charpente bois
Volume lot bois n°1 - m³ : 20.69
Coût du lot bois n°1 - € HT : 85533
Lot bois n°2 concerné : Menuiserie extérieure bois
Volume lot bois n°2 - m³ : 1.75
Coût du lot bois n°2 - € HT : 40570
Bois Français : oui
Isolations biosourcées (préciser dans le descriptif technique) : oui
Finitions intéreures biosourcées ou géosourcées (préciser dans le descriptif technique) : oui

Structure bois du bâtiment

Structure verticale :

ProduitEssenceProvenances (lieu de croissance du bois)Traitements de préservationMarque et certification produit
Poteau poutreMélèzeGrand-EstAucun traitement

Structure horizontale :

ProduitEssenceProvenances (lieu de croissance du bois)Traitements de préservationMarque et certification produit
Solivage traditionnelMélèzeGrand-EstAucun traitement

Charpente :

ProduitEssenceProvenances (lieu de croissance du bois)Traitements de préservationMarque et certification produit
Charpente traditionnelleÉpicéa communGrand-EstJe n'ai pas l'information

Revêtement bois extérieur

Autre revêtement métallique :

Produit
Acier

Menuiserie intérieure et extérieure

Menuiserie extérieure :

ProduitEssenceProvenances (lieu de croissance du bois)Marque et certification produitFinition
Menuiserie boisMélèzeEuropeTropicalHuile
Brise soleil boisMélèzeGrand-EstTropicalAucune finition

Isolation des murs

Isolation entre-montant des murs :

Produit
Laine de bois souple
Epaisseur (mm) Isolation entre-montant des murs : 160

Isolation extérieure des murs :

Produit
Fibre de bois (Panneaux)
Epaisseur (mm) Isolation extérieure des murs : 60

Isolation de la toiture

Epaisseur (mm) Isolation entre-montant de la toiture : 240
Epaisseur (mm) Isolation extérieure de la toiture : 60

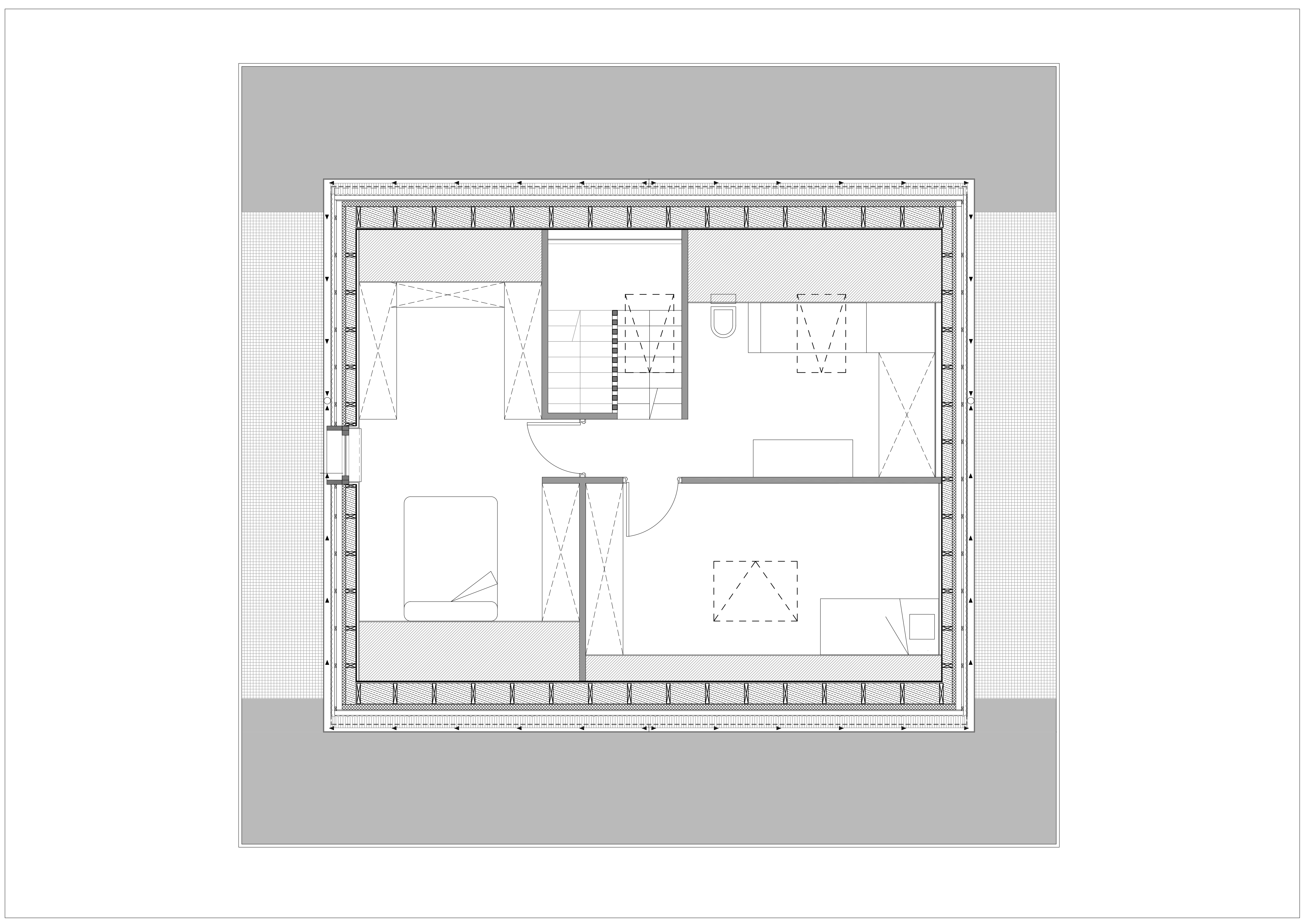
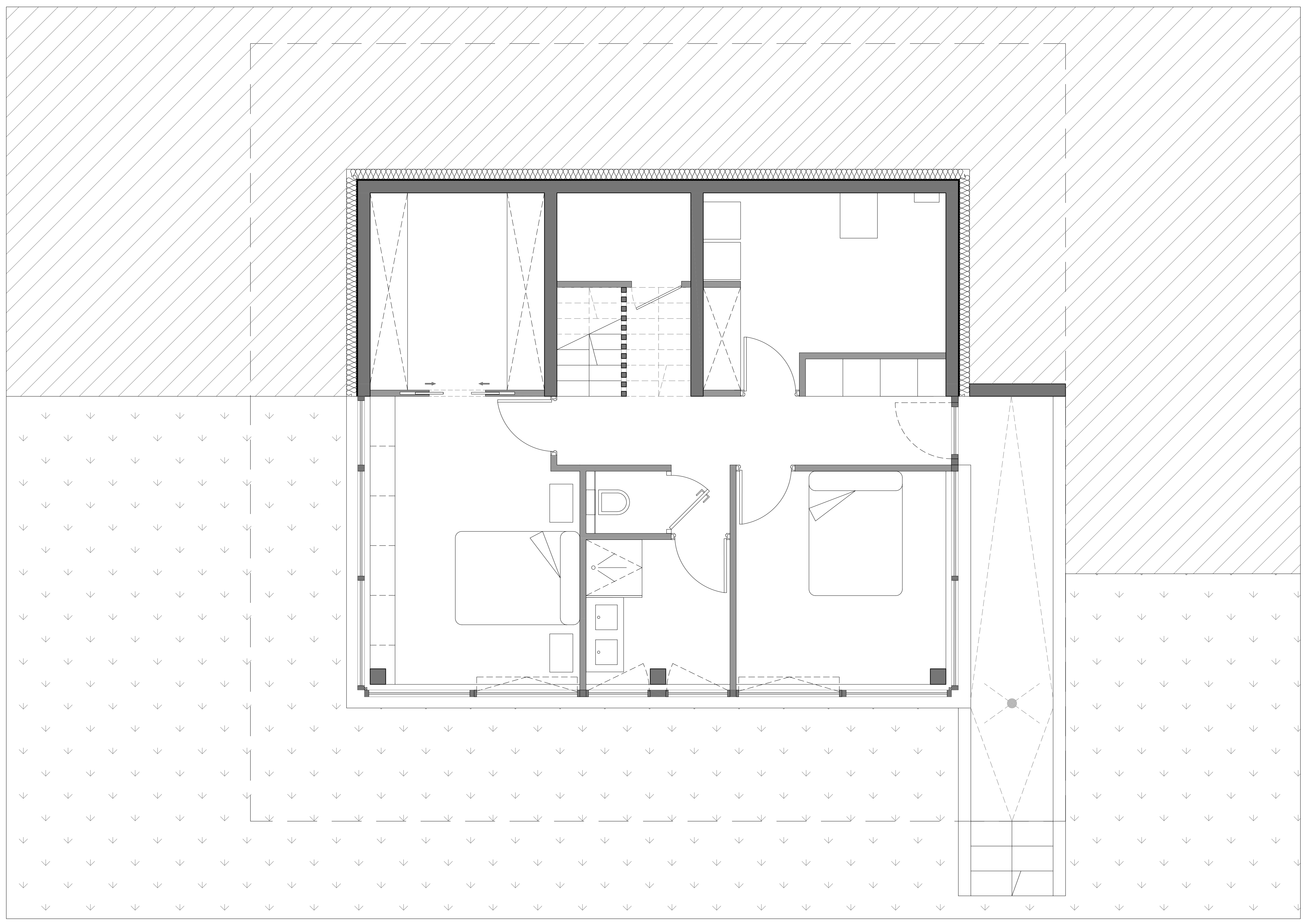
Approche environnementale : Encastrée dans la pente relativement forte (9 %) pour limiter son impact sur le paysage, la construction se développe sur un sous-sol en béton apparent vitré à hauteur de terrain. Au-dessus, l'ensemble du rez-de-chaussée et de l'étage sous combles est en construction bois (poteaux-poutres + murs ossatures bois pour les pignons). Toutes les structures apparentes (intérieures et extérieures) sont en mélèze vosgien, non traitées. Les isolants sont tous bio-sourcés (laine et fibres de bois). Le débord de toit forme une protection passive en été, et permet des apports généreux en hiver.

Descriptif technique : La structure horizontale principale (plancher haut RDC) est établie sur 3 poutres maîtresses en mélèze, avec un solivage croisé en mélèze assemblé à mi-bois se prolongeant pour former le débord extérieur. Le plancher est composé d'un panneau trois-plis épicéa visible, et d'une chape fluide + parquet bois. L'escalier reliant l'ensemble des étages est constitué d'un mur d'échiffre en tasseaux épicéa toute hauteur (6.50m) permettant de fixer des marches massives en épicéa vernis de manière aérienne. Les poutres de l'auvent nord intègrent des bandeaux led permettant d'éclairer la zone d'entrée. PEFC (Gestion forestière durable) FSC (Gestion forestière responsable) CTB Structures NF Fenêtres Bois et Portes Extérieures - Acotherm Marquage CE

Chauffage au Bois : non
Données déclaratives

Acteurs du projet

Maître d'ouvrage (1)

Maître d'ouvrage - Particuliers

particulier (x)

Etudes et ingénieries (2)

Maître d'œuvre - Architecte mandataire

AL PEPE architectes (67)

Bureau d'études thermique

Keeplanet (67)

Entreprises des lots bois (2)

Charpentier

GIROLD Constructions Bois (67)

Menuisier

EURL MENUISERIE MEYER JEAN YVES (67)




* : L'entreprise n'est plus active
Retour à la liste