Réhabiliter un équipement
Réhabiliter un équipement

Groupe scolaire Léo Lagrange

93140 Bondy - Seine Saint Denis - Ile de France

BÂTIMENT / LOGEMENT

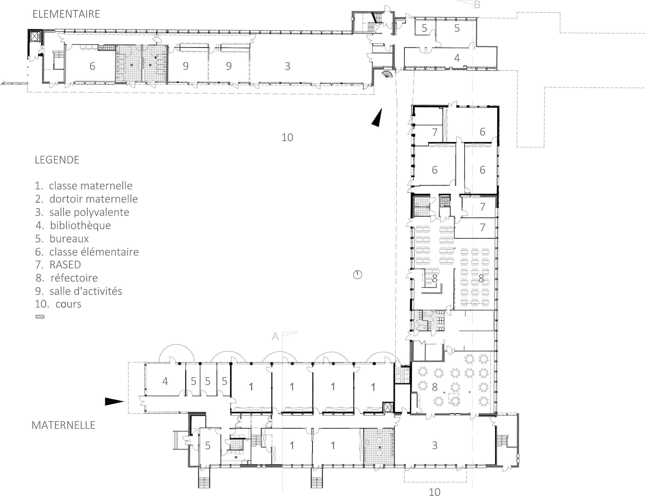
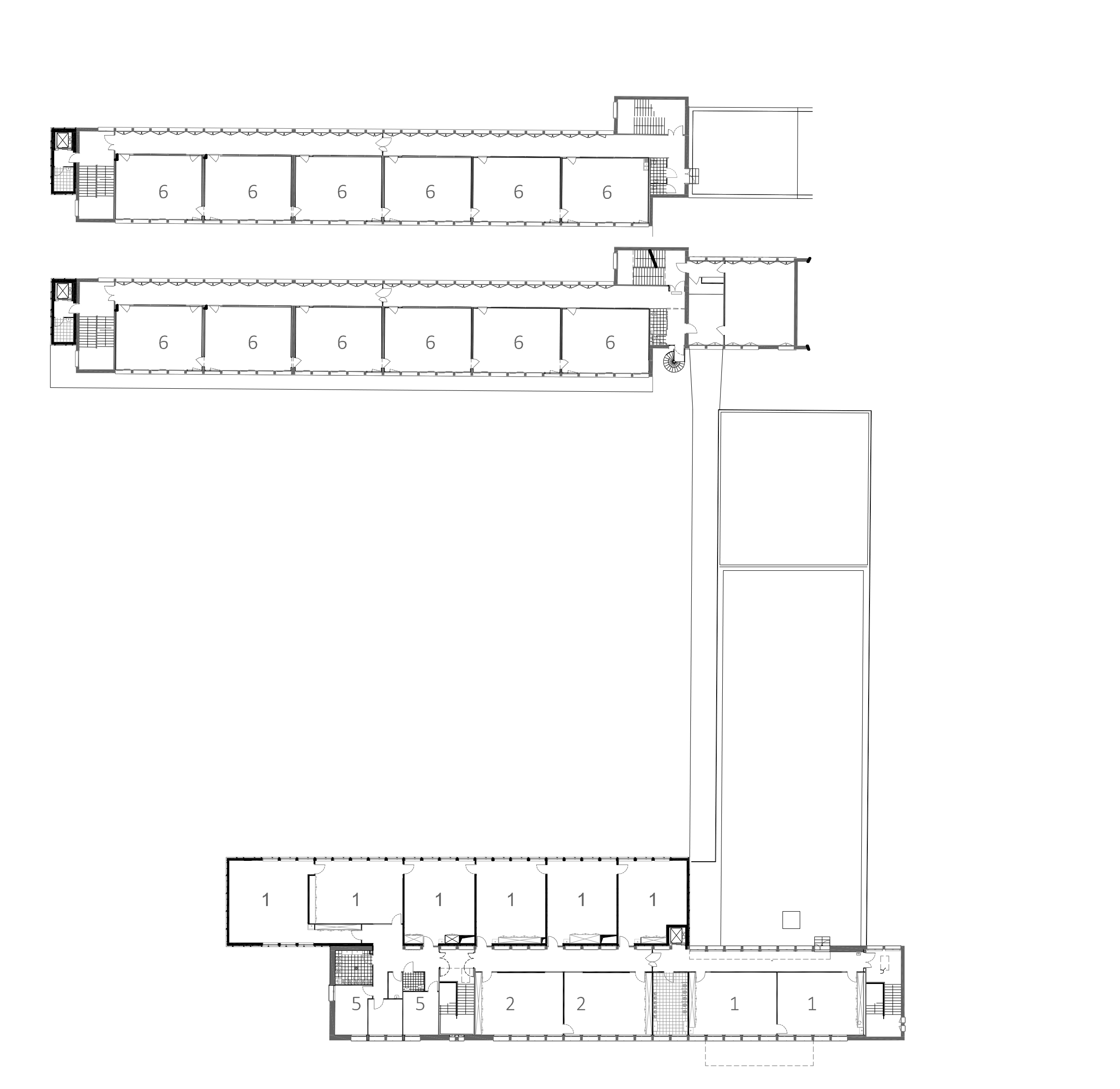
Le projet instaure un dialogue entre l’histoire du lieu et la nouvelle image de l’école. Il respecte le bâtiment d’origine en conservant la brique soulignée de modénatures de béton peint, caractéristique des architectures fonctionnalistes de l’après-guerre. Les extensions, réalisées en structure bois, sont vêtues de métal ajouré et contrastent avec l’existant. L’enveloppe en métal ajouré permet de mutualiser les fonctions de protection du bâtiment, de filtres solaires et de garde-corps. Programme: 17 classes élémentaires, 14 classes maternelles, salle polyvalentes, bibliothèque, réfectoire

Catégorie Bâtiment / logement
Numéro de projet6094
Adresse du projet 31 rue Georges Elié
93140 Bondy
Date de candidature04/03/2021

Bâtiment / logement

Détail projet

Typologie de bâtiment : Extension / surélévation,Rénovation / Réhabilitation
Type de bâtiment : Enseignement ou éducation
Année de livraison : 2020
Surface totale du bâtiment en m² : 4036
Dont extension / surélévation en m² : 968
Coût total en € HT (hors foncier, hors VRD, hors honoraires) : 6822297
Lot bois n°1 concerné : Charpente bois
Volume lot bois n°1 - m³ : 95
Coût du lot bois n°1 - € HT : 378000
Lot bois n°2 concerné : Menuiserie intérieure bois
Volume lot bois n°2 - m³ : 27
Coût du lot bois n°2 - € HT : 406441
Bois Français : oui
Isolations biosourcées (préciser dans le descriptif technique) : non
Finitions intéreures biosourcées ou géosourcées (préciser dans le descriptif technique) : oui

Structure bois du bâtiment

Structure verticale :

ProduitEssenceProvenances (lieu de croissance du bois)Traitements de préservationMarque et certification produit
Poteau poutreBourgogne-Franche-ComtéJe n'ai pas l'information

Structure horizontale :

ProduitEssenceProvenances (lieu de croissance du bois)Traitements de préservationMarque et certification produit
Solivage traditionnelÉpicéa communBourgogne-Franche-ComtéJe n'ai pas l'information

Charpente :

ProduitEssenceProvenances (lieu de croissance du bois)Traitements de préservationMarque et certification produit
Charpente traditionnelleÉpicéa communBourgogne-Franche-ComtéJe n'ai pas l'information

Revêtement bois extérieur

Autre revêtement métallique :

Produit
Acier
Alu

Menuiserie intérieure et extérieure

Isolation des murs

Isolation intérieure des murs :

Produit
Laine de verre
Epaisseur (mm) Isolation intérieure des murs : 50

Isolation entre-montant des murs :

Produit
Laine de verre
Epaisseur (mm) Isolation entre-montant des murs : 140

Isolation de la toiture

Epaisseur (mm) Isolation extérieure de la toiture : 150

Approche environnementale : Les points environnementaux principaux sont : - Travail sur les EP par la création de noue pour retenir l'eau avant infiltration. Rétention en toiture existante, - végétalisation importante des cours pour lutter contre les îlots de chaleur, - réutilisation de matériaux de démolition pour des équipements de cours - Captation passive de CO2 par une forte utilisation de bois en structure et parure, - Eclairage en second jour des circulations - Ventilation naturelle - VMC double flux dans le bâtiment créé - Occultations des fenêtres orientées sud et ouest par brise-soleil fixes

Descriptif technique : Démarche énergétique: - Pour l'existant : RT2012 par élément - Pour l'extension: Bbio: gain 25% / Cep: gain 51% / Tic: gainELE 2,7°C gainMAT 0,9°C Bbio : 61,90 / Cep : 56,700 / Tic MAT 34,00 / Tic ELE 32,90 Le projet consiste en trois extensions : la maternelle, édifiée en poteaux-poutres bois, le réfectoire et un volume haut pour un ascenseur, en Murs à ossature bois + toiture bois. Les façades sont en aluminium et en acier perforé, sur un pare-pluie blanc 3CTA double flux PEFC (Gestion forestière durable) NF Portes résistant au feu en bois Marquage CE

Chauffage au Bois : non
Données déclaratives

Acteurs du projet

Maître d'ouvrage (1)

Maître d'ouvrage - État ou collectivité (locale et territ)

Ville de Bondy (93)

Etudes et ingénieries (2)

Maître d'œuvre - Architecte mandataire

ER ARCHITECTES (93)

Bureau d'études structure bois

LIGNE BE (37)

Entreprises des lots bois (1)

Charpentier

Vaninetti (78)




* : L'entreprise n'est plus active
Retour à la liste