Aménager
Aménager

Halle de Lahontan

64270 Lahontan - Pyrénées Atlantiques - Nouvelle-Aquitaine

AMÉNAGEMENT BOIS

Aménagement intérieur

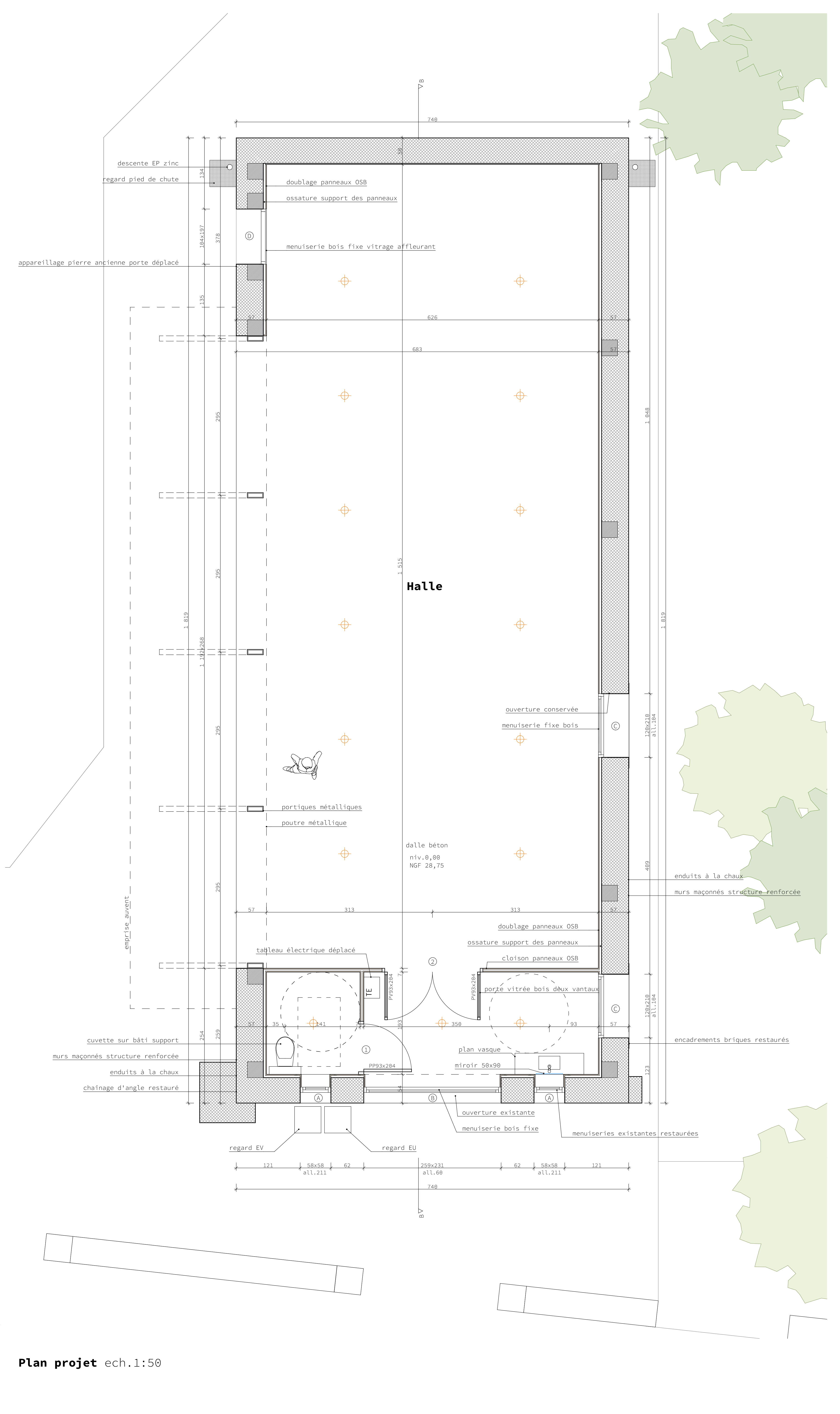
Le bâtiment de l’ancien cinéma est conservé, réhabilité et transformé en halle. Il s’agit d’un bâtiment du XVIIe siècle. La façade Ouest est largement ouverte afin de permettre l’accès et de créer une relation entre le bâtiment et l’extérieur. Un auvent en structure métallique, habillé de bois en sous-face et couvert de polycarbonate protège l’accès. Les ouvertures existantes sont conservées et réhabilitées. Les menuiseries sont remplacées. L’ornement de la porte existante de la façade Ouest est déplacé sur cette même façade et vient habiller une nouvelle menuiserie fixe.

Catégorie aménagement bois, aménagement intérieur
Numéro de projet6061
Adresse du projet rue du gave
64270 Lahontan
Date de candidature03/03/2021

aménagement bois

Coût total en € HT : 210000

aménagement intérieur

Année de réalisation : 2020
Coût total Aménagement Intérieur en € HT : 210000
Coût lots bois en € HT : 60000
Volume bois m³ : 11.5
Surface aménagée en m² : 134

Liste des produits :

ProduitEssenceProvenances (lieu de croissance du bois)Marque et certification produitFinition
LambrisÉpicéa communNouvelle-AquitaineLasure
Bois Français : oui

Approche environnementale : La couverture est remplacée. La charpente est renforcée par l’utilisation de pièces moisées. L’intérieur du volume est habillé de panneaux de bois OSB sur ossature bois pour permettre les jeux de balle et le mur pignon est enduit. Le jardin entourant la halle est aménagé en plusieurs espaces dont un fronton. Toutes les cloisons sont également réalisées en panneaux de bois OSB sur ossature bois. Les menuiseries sont reconstruites à l’identique des menuiseries existantes en bois.

Descriptif technique de l'aménagement : Les menuiseries extérieures sont en meranti rouge foncé. Les menuiseries intérieures sont en sapin. Les bois d'ossature et les habillages muraux sont en sapin et épicea raboté, de même que les ossatures des cloisons. Les panneaux de bois OSB occupent une surface de 390m2 et sont en épicea du Limousin.

Données déclaratives

Acteurs du projet

Maître d'ouvrage (1)

Maître d'ouvrage - État ou collectivité (locale et territ)

Commune de Lahontan (64)

Etudes et ingénieries (2)

Maître d'œuvre - Architecte mandataire

Pierre Marsan architecte DPLG (64)

Paysagiste

MOREL DELAIGUE PAYSAGISTES (64)

Entreprises des lots bois (2)

Charpentier

SBL PRODUCTIONS (64)

Menuisier

Etcheverria menuiserie (64)




* : L'entreprise n'est plus active
Retour à la liste