Réhabiliter un équipement
Réhabiliter un équipement

Restructuration de l'espace Saint-Jean

54000 Nancy - Meurthe et Moselle - Grand Est

BÂTIMENT / LOGEMENT

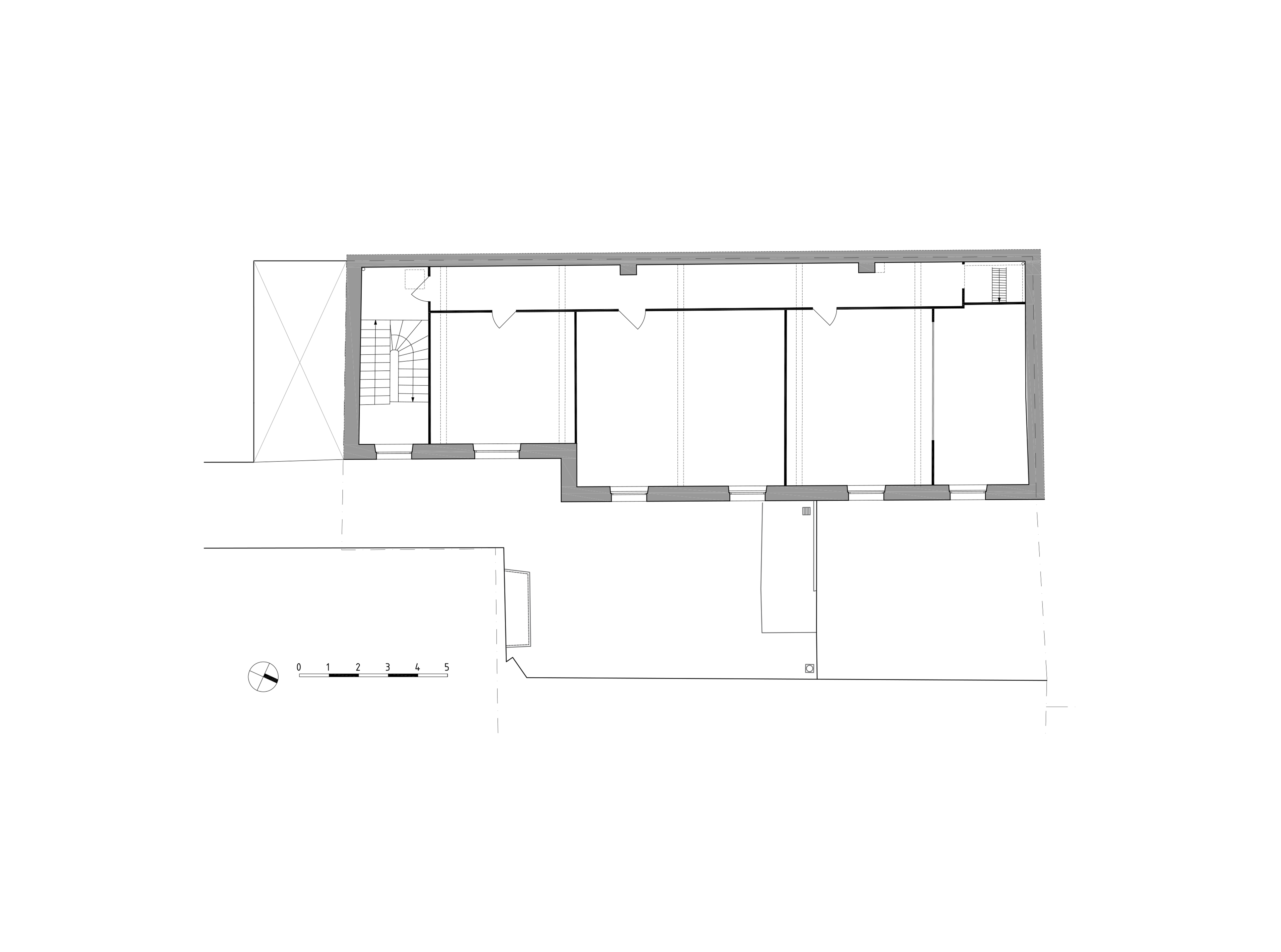
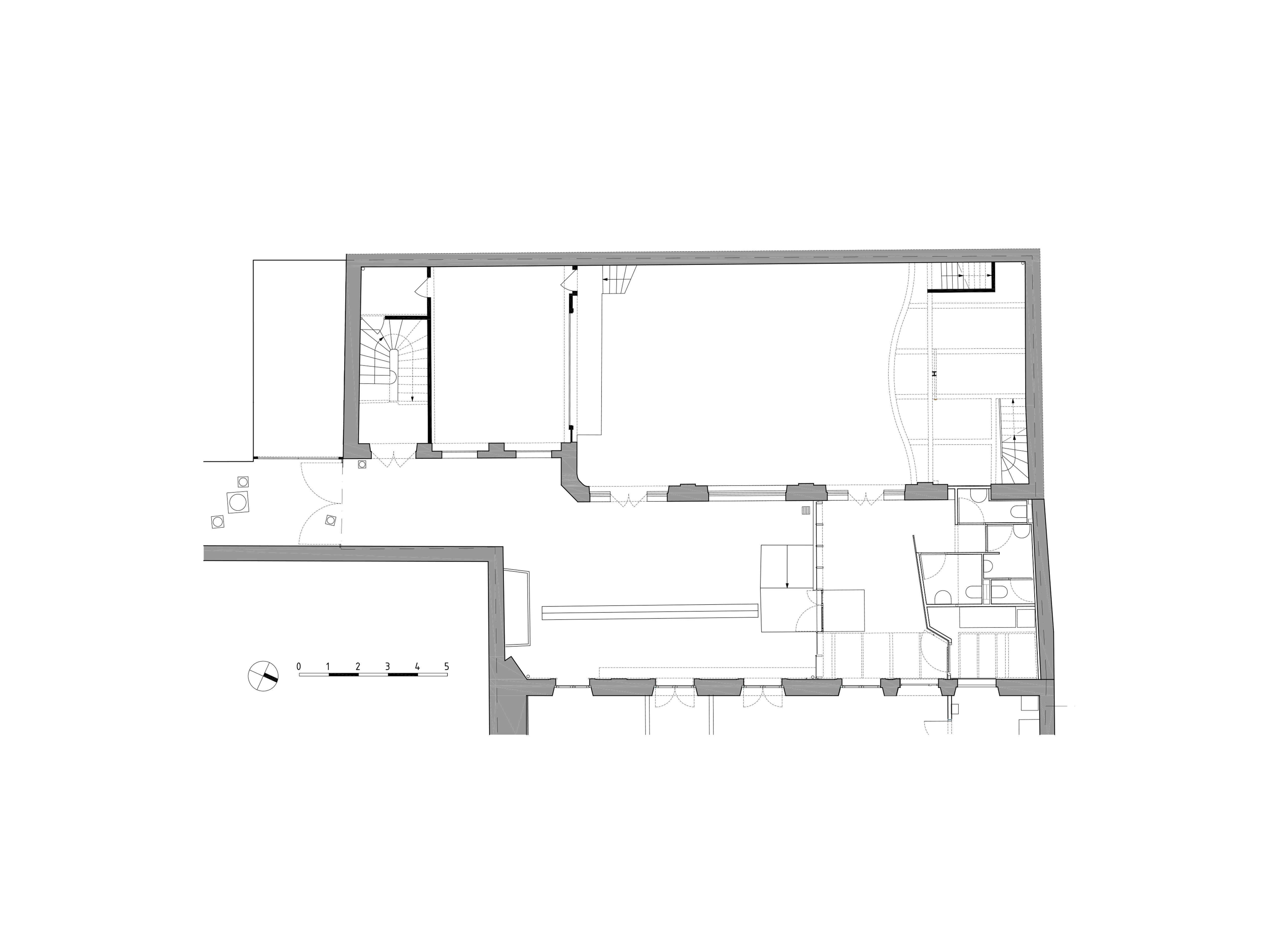
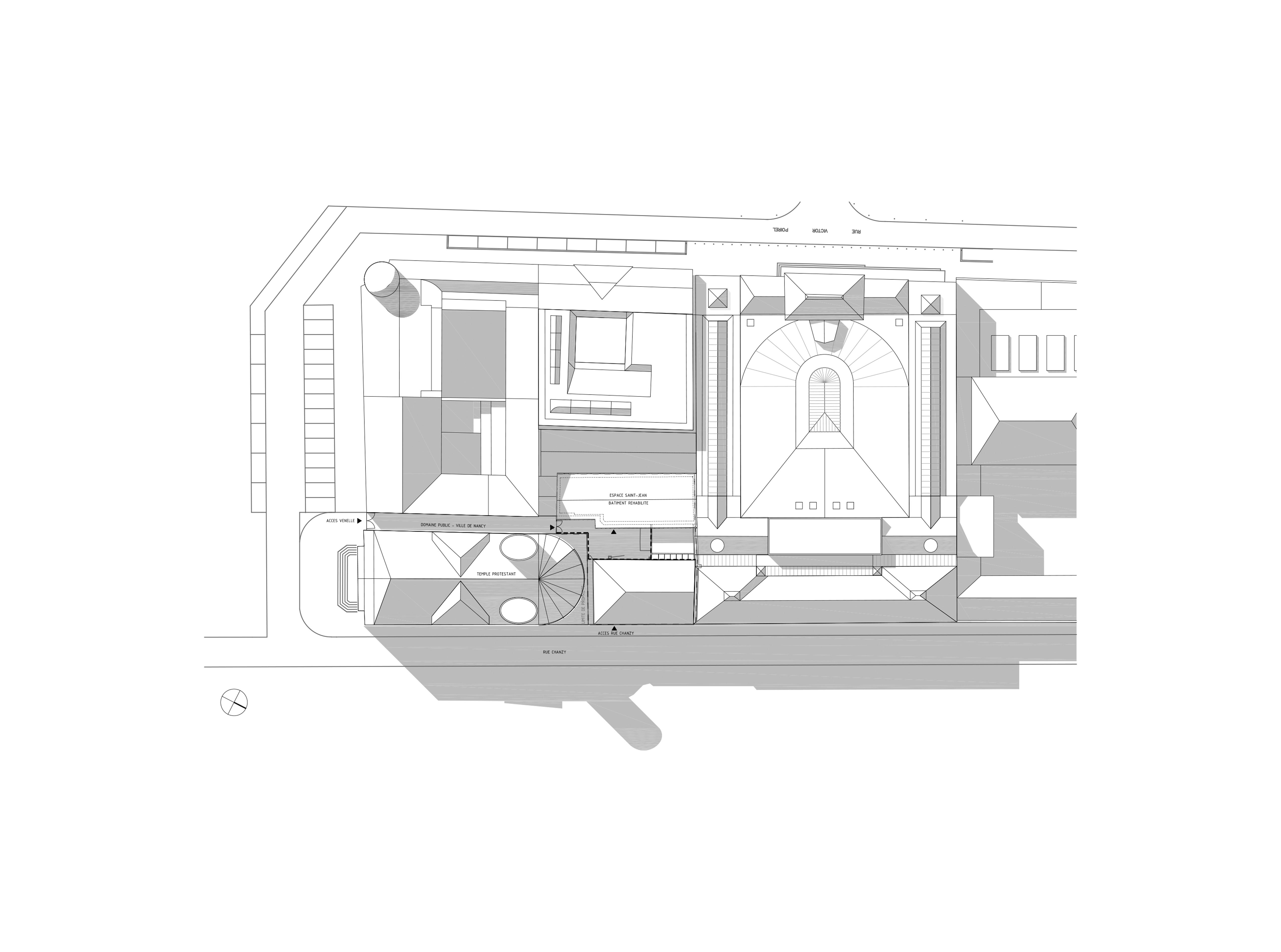
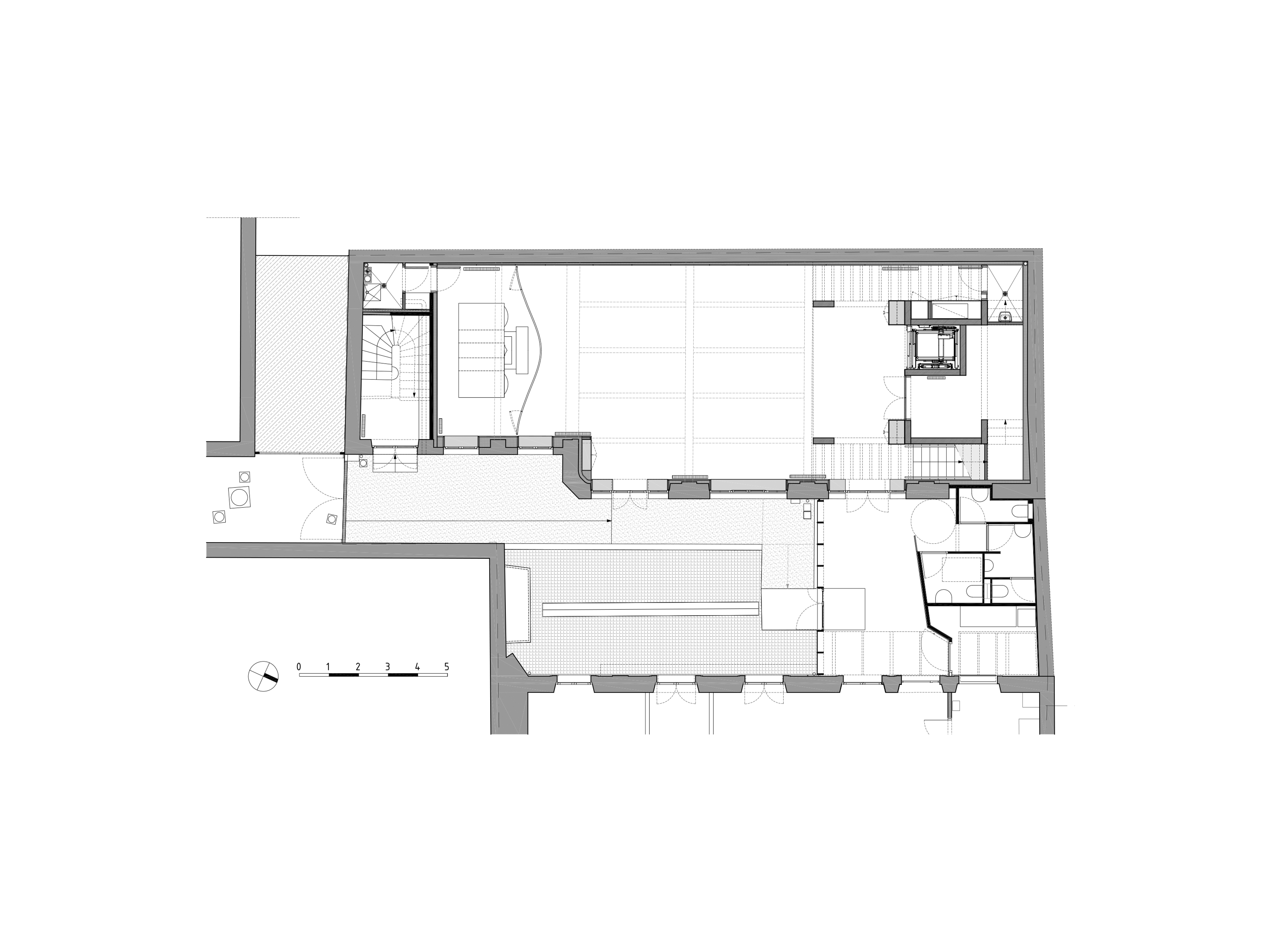
Le bâtiment exploité par l'association est destiné à de multiples usages : distribution des denrées données par la banque alimentaire, vente de livres d'occasion et de fripes, salle de conférence ou encore salle de répétition mise à disposition des élèves du conservatoire. L’enjeu majeur du projet est d’envisager des espaces modulables au sein d’un bâtiment existant au gabarit contraint et immuable. Les éléments structurels existants sont dès lors conservés et valorisés tandis qu’une structure mixte béton/bois permet la mise en œuvre de nouveaux planchers, d’un escalier et d’un ascenseur.

Catégorie Bâtiment / logement
Numéro de projet6007
Adresse du projet 6 rue Chanzy
54000 Nancy
Date de candidature25/02/2021

Bâtiment / logement

Détail projet

Typologie de bâtiment : Rénovation / Réhabilitation
Type de bâtiment : Loisirs,Enseignement ou éducation,Culture,Culte
Année de livraison : 2019
Surface totale du bâtiment en m² : 250
Coût total en € HT (hors foncier, hors VRD, hors honoraires) : 628838.88
Lot bois n°1 concerné : Charpente bois
Coût du lot bois n°1 - € HT : 42598.08
Lot bois n°2 concerné : Menuiserie extérieure bois
Coût du lot bois n°2 - € HT : 52840.00
Bois Français : oui
Isolations biosourcées (préciser dans le descriptif technique) : oui
Finitions intéreures biosourcées ou géosourcées (préciser dans le descriptif technique) : oui

Structure bois du bâtiment

Structure verticale :

ProduitEssenceProvenances (lieu de croissance du bois)Traitements de préservationMarque et certification produit
Non précisé

Structure horizontale :

ProduitEssenceProvenances (lieu de croissance du bois)Traitements de préservationMarque et certification produit
Solivage traditionnelSapin pectinéGrand-EstTraitement par haute température (THT, rétification)

Charpente :

ProduitEssenceProvenances (lieu de croissance du bois)Traitements de préservationMarque et certification produit
Charpente traditionnelle

Revêtement bois extérieur

Menuiserie intérieure et extérieure

Isolation des murs

Isolation intérieure des murs :

Produit
Laine de roche
Epaisseur (mm) Isolation intérieure des murs : 150

Isolation de la toiture

Epaisseur (mm) Isolation intérieure de la toiture : 350

Approche environnementale : Concevoir un bâtiment « durable », c’est précisément construire un bâtiment pour « durer ». Les matériaux employés ont ainsi été choisis pour leur pérennité et sont issus de filières locales : le sapin est employé pour les planchers créés, tandis que l’épicéa habille et cloisonne les espaces intérieurs. L’implantation singulière du bâtiment - ouvert exclusivement à l’est - est compensée par la création de puits de lumière en toiture. En outre, c’est la sobriété formelle des aménagements et la disposition rigoureuse des espaces qui permet de résister à tout effet de mode et de consommation.

Descriptif technique : Si l’installation d’une ventilation double flux a permis d’améliorer le confort d’été et d’hiver, la restructuration d’un tel édifice implique prioritairement l’amélioration de son enveloppe. L’isolation intérieure a donc été entièrement revue (laine de roche pour les parois verticales et insufflation de ouate de cellulose en combles) tandis que les menuiseries extérieures existantes ont été remplacées. La mise en œuvre de matériaux de finition biosourcés - principalement du sapin et de l’épicéa - assure un confort d’usage notable pour les membres de l’association et le public accueilli.

Chauffage au Bois : non
Données déclaratives

Acteurs du projet

Maître d'ouvrage (1)

Autres

Œuvres Sociales Entraide Protestantes (54)

Etudes et ingénieries (3)

Maître d'œuvre - Architecte mandataire

VULCANO-GIBELLO (54)

Bureau d'études structure bois

STIC (54)

Bureau d'études thermique

Singler & associés (54)

Entreprises des lots bois (3)

Charpentier

VOSGES CHARPENTES (88)

Menuisier

LAURENT FENETRES (55)
Menuiserie WUCHER (54)




* : L'entreprise n'est plus active
Retour à la liste