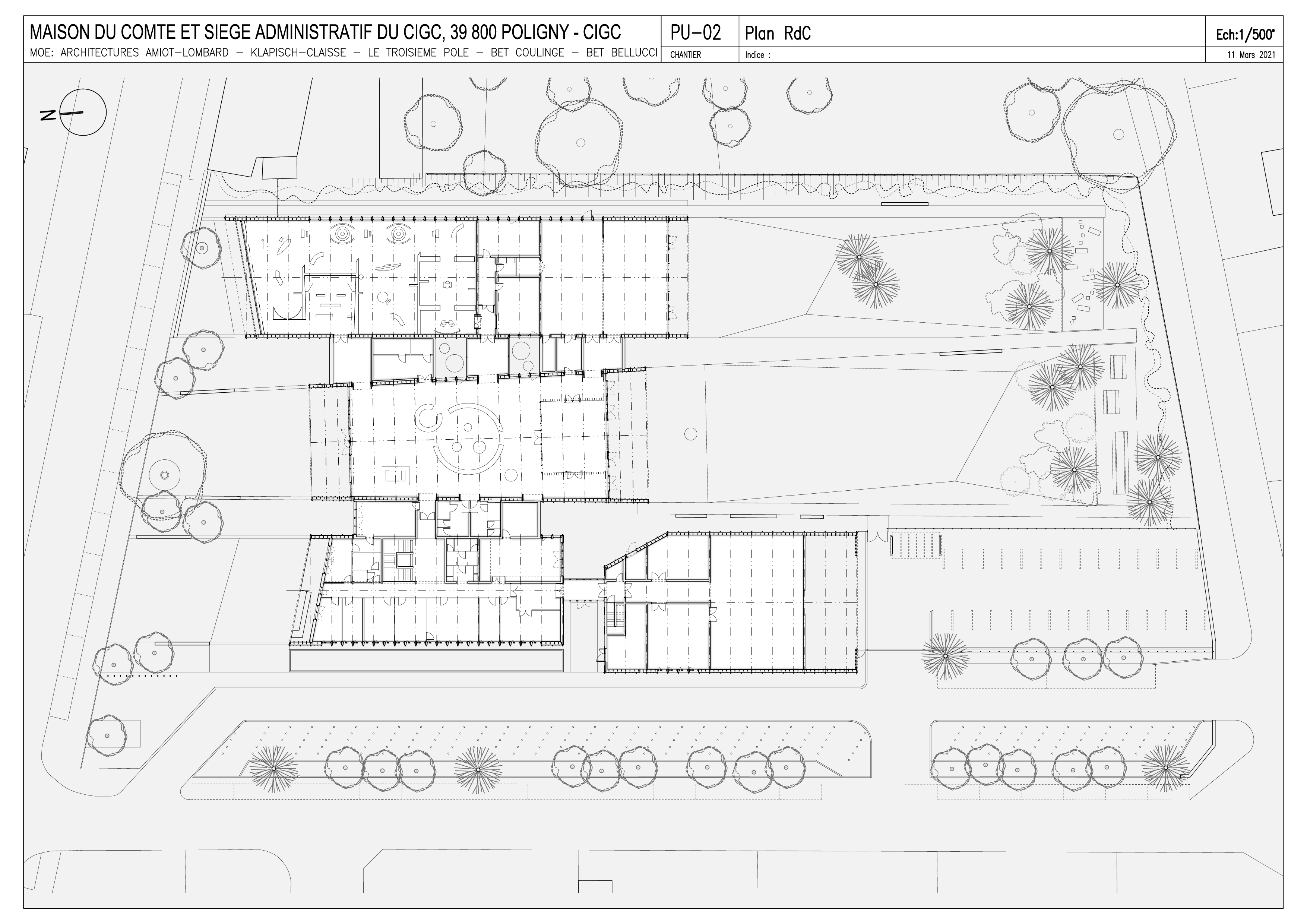
La maison du comté est un centre d’interprétation et le siège de l’interprofession de la filière AOC Comté. Le programme se développe sur 4 bâtiments de taille réduite, à l’échelle du contexte environnant. La volumétrie simple avec toiture à 2 pentes fait référence à l’architecture vernaculaire. La structure bois est protégée par une couverture et un bardage en zinc « doré » qui recouvre uniformément l’enveloppe extérieure. La charpente apparente et les habillages bois qualifient l’ambiance homogène, chaleureuse, respectueuse de la nature, à l’image des valeurs de la filière.
Catégorie | Bâtiment / logement |
---|---|
Numéro de projet | 6006 |
Adresse du projet |
1, Rue de la Maison du Comté 39800 POLIGNY |
Date de candidature | 25/02/2021 |
Structure verticale :
Produit | Essence | Provenances (lieu de croissance du bois) | Traitements de préservation | Marque et certification produit | |
---|---|---|---|---|---|
Panneau ossature bois | Épicéa commun | Bourgogne-Franche-Comté | Traitement Classe 2 (trempage) |
Structure horizontale :
Produit | Essence | Provenances (lieu de croissance du bois) | Traitements de préservation | Marque et certification produit | |
---|---|---|---|---|---|
Plancher béton | Tempéré |
Charpente :
Produit | Essence | Provenances (lieu de croissance du bois) | Traitements de préservation | Marque et certification produit | |
---|---|---|---|---|---|
Charpente traditionnelle | Épicéa commun | Bourgogne-Franche-Comté | Traitement Classe 2 (trempage) |
Revêtement bois ou dérivés :
Produit | Essence | Provenances (lieu de croissance du bois) | Marque et certification produit | Finition | Traitements de préservation |
---|---|---|---|---|---|
Lame bois massif | Mélèze | Europe | Aucune finition | Aucun traitement |
Autre revêtement métallique :
Produit | |||||
---|---|---|---|---|---|
Zinc |
Menuiserie extérieure :
Produit | Essence | Provenances (lieu de croissance du bois) | Marque et certification produit | Finition | |
---|---|---|---|---|---|
Menuiserie mixte | Pin sylvestre | Nouvelle-Aquitaine | Lasure |
Isolation intérieure des murs :
Produit | |||||
---|---|---|---|---|---|
Laine de roche |
Isolation entre-montant des murs :
Produit | |||||
---|---|---|---|---|---|
Laine de roche |
Isolation extérieure des murs :
Produit | |||||
---|---|---|---|---|---|
Fibre de bois (Panneaux) |
Approche environnementale : L’utilisation de matériaux naturels, peu transformés, la construction bois issue de la production locale, le recourt limité aux revêtements de finitions, les toitures végétalisées et l’infiltration des eaux pluviales, …, s’inscrivent fort logiquement dans une politique de développement durable et de réduction de l’empreinte carbone de la construction. La performance thermique du bâtit fait appel à l’arsenal « habituel » pour ce niveau de performance : isolation thermique importante, ventilation double flux, PAC sur géothermie profonde, absence de climatisation.
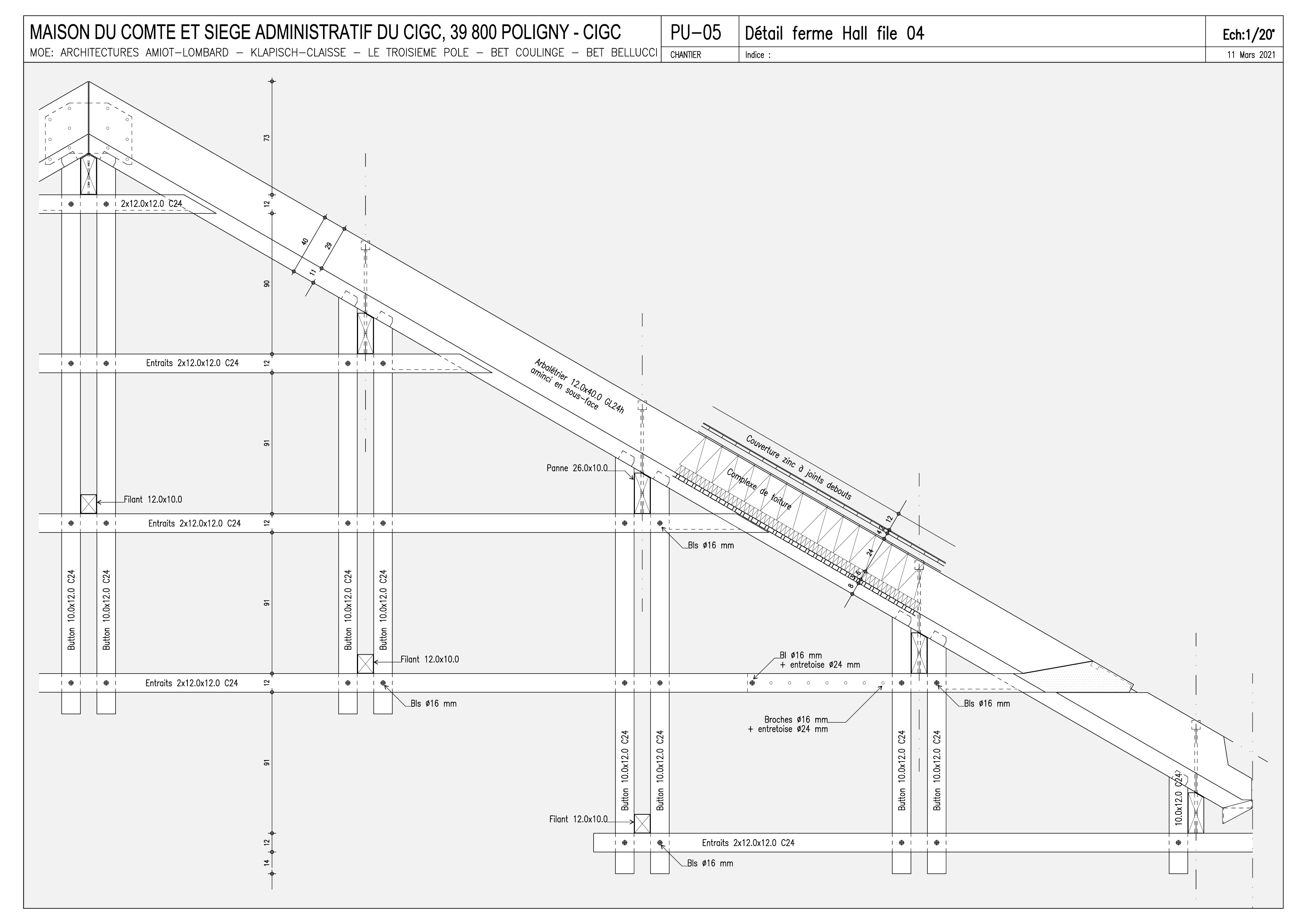
Descriptif technique : La structure bois est composée de MOB et de fermes treillis sur un entraxe de 2m70. La particularité des fermes réside dans le retroussement des arbalétriers, ce qui les fait « disparaitre » dans l’épaisseur de la couverture. Les entraits, poinçons et filants se croisent sans interruption, ce qui rend les assemblages simples, sans platines d’assemblage. Leur multiplication permet d’en réduire la section (10x12cm), ce qui détermine fortement l’image et la présence de cette charpente dans l’espace. Le lattis bois en sous-face porte le complexe de couverture et assure la correction acoustique.
Chauffage au Bois : nonComité Interprofessionnel de Gestion du Comté (39)
Architectures Amiot-Lombard (25)
Philippe Convercey Paysagiste (70)
ALD Construction Bois (39)
SARL MARILLER (39)
MENUISERIE CHARPENTE HENRIET (39)
GAUTHIER (39)