Réhabiliter un logement
Réhabiliter un logement

Gujan-Mestras

33470 Gujan-Mestras - Gironde - Nouvelle-Aquitaine

BÂTIMENT / LOGEMENT

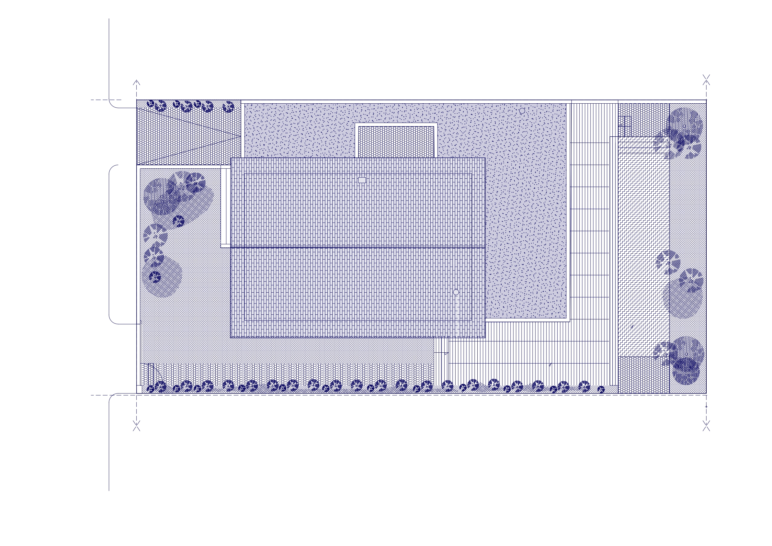
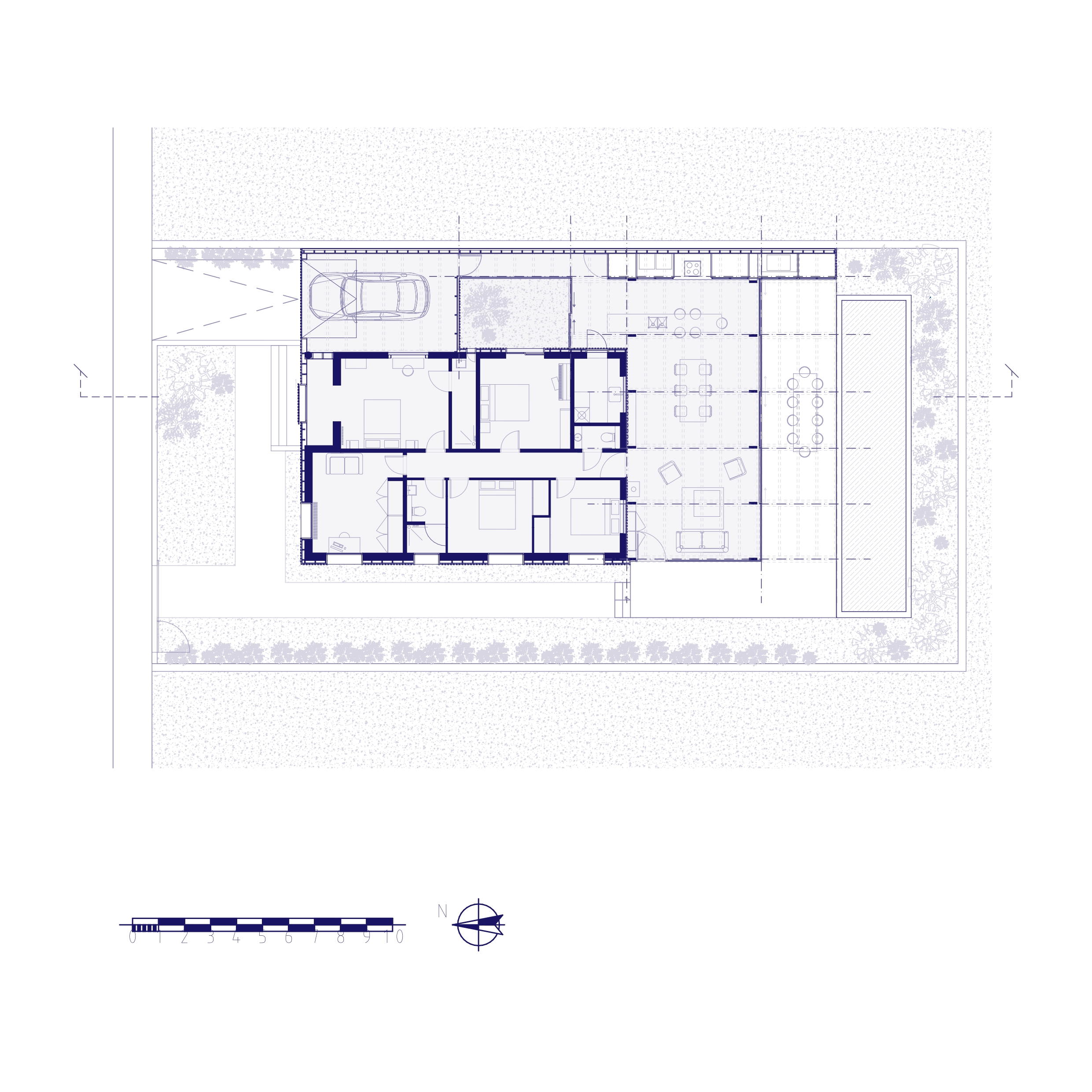
Cette extension de maison pavillonnaire des années 70 est construite en structure bois issu de scieries locales. Ce projet nous a amené à réfléchir à la problématique de densification dans un tissu très serré tout en abordant la notion d’intimité. Le travail du bois nous a invité à nous pencher sur les possibilités d’assemblage qu’offrent ce matériau et la richesse de ses différentes natures. On découvre le bois sous forme de piliers bois et poutres moisées en lamellé-collé, solives brutes de sciage, panneaux OSB pour le plancher et enfin habillages en peuplier verni.

Catégorie Bâtiment / logement
Numéro de projet5990
Date de candidature24/02/2021

Bâtiment / logement

Détail projet

Typologie de bâtiment : Extension / surélévation,Rénovation / Réhabilitation
Type de bâtiment : Logement individuel supérieur à 120 m²
Année de livraison : 2020
Surface totale du bâtiment en m² : 200
Dont extension / surélévation en m² : 120
Coût total en € HT (hors foncier, hors VRD, hors honoraires) : 295000
Lot bois n°1 concerné : ossature bois
Coût du lot bois n°1 - € HT : 95000
Lot bois n°2 concerné : Menuiserie extérieure bois
Coût du lot bois n°2 - € HT : 45000
Bois Français : oui
Isolations biosourcées (préciser dans le descriptif technique) : non
Finitions intéreures biosourcées ou géosourcées (préciser dans le descriptif technique) : non

Structure bois du bâtiment

Structure verticale :

ProduitEssenceProvenances (lieu de croissance du bois)Traitements de préservationMarque et certification produit
Poteau poutrePin maritimeNouvelle-AquitaineTraitement Classe 3b (autoclave)

Structure horizontale :

ProduitEssenceProvenances (lieu de croissance du bois)Traitements de préservationMarque et certification produit
Solivage traditionnelPin maritimeNouvelle-AquitaineTraitement Classe 3b (autoclave)

Charpente :

ProduitEssenceProvenances (lieu de croissance du bois)Traitements de préservationMarque et certification produit
Charpente bois lamellé-colléPin maritimeNouvelle-AquitaineTraitement Classe 3b (autoclave)

Revêtement bois extérieur

Menuiserie intérieure et extérieure

Menuiserie extérieure :

ProduitEssenceProvenances (lieu de croissance du bois)Marque et certification produitFinition
Menuiserie boisMélèzeFranceSaturateur

Isolation des murs

Epaisseur (mm) Isolation extérieure des murs : 120

Isolation de la toiture

Epaisseur (mm) Isolation intérieure de la toiture : 200

Approche environnementale : L'intervention consistait en l'extension mais aussi l'isolation de la maison existante par l'extérieur et d'y apposer un bardage qui unifie l'ensemble. Les matériaux sont issus de forets françaises et traités dans des scieries locales du bassin d'Arcachon ou des Landes.

Descriptif technique : L'extension est portée principalement par six portiques de 12 piliers en lamellé-collé sur lesquels sont moisées 12 poutres qui forme un porte-à-faux pour abriter la terrasse extérieure. A l'Est le mur mitoyen constitué d'une ossature bois isolée et bardée de panneau de contreplaqué.

Chauffage au Bois : oui
Appareil de chauffage au bois : Poële/insert
Données déclaratives

Acteurs du projet

Maître d'ouvrage (1)

Maître d'ouvrage - Particuliers

particulier (x)

Etudes et ingénieries (1)

Maître d'œuvre - Architecte mandataire

jaq (75)

Entreprises des lots bois (1)

Charpentier

Le Charpentier Jacquemin (93)

Fournisseurs du bois (1)

Scierie

BAGNERES BOIS (33)




* : L'entreprise n'est plus active
Retour à la liste