Habiter une maison

Maison passive en CLT, Vertou (44)

44120 Vertou - Loire Atlantique - Pays de la Loire

BÂTIMENT / LOGEMENT

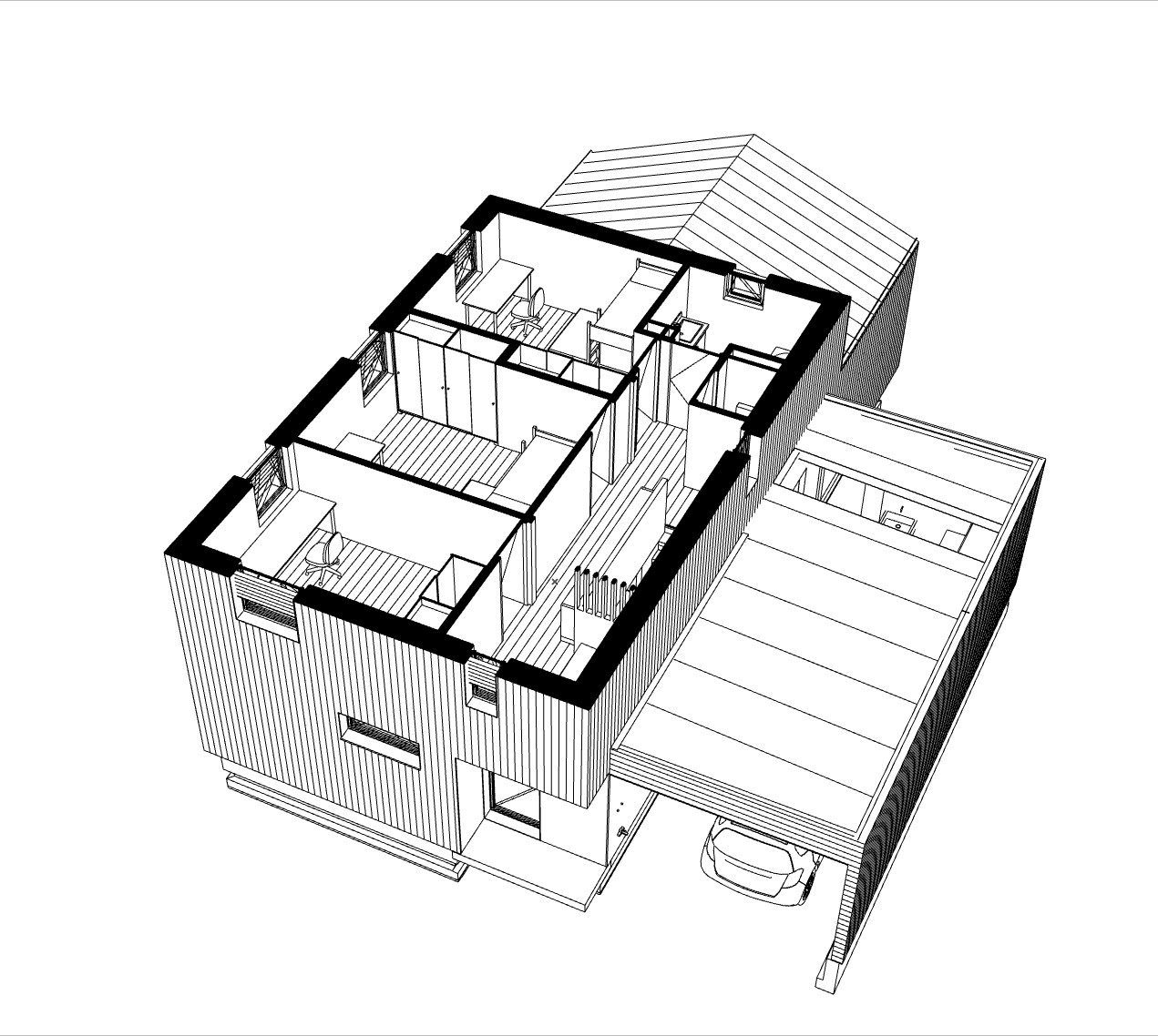
Fonctionnelle et écologique... La maison dispose de beaux volumes habitables sous les doubles rampants couverts de zinc. Au rez-de-chaussée, les pièces de vie s'ouvrent au Sud (apports solaires) et vers une terrasse en bois intégrée au jardin à l'Ouest. A l'étage, les volumes sous rampants permettent des aménagements évolutifs des chambres d'enfant. Le parti architectural met en valeur les caractéristiques du mode constructif: la dalle de béton quartzé du RdC, les panneaux de bois massif contre-collé (CLT) et le réseau de VMC en acier galvanisés sont laissés apparents.

Catégorie Bâtiment / logement
Numéro de projet5967
Date de candidature22/02/2021

Bâtiment / logement

Détail projet

Typologie de bâtiment : Neuf
Type de bâtiment : Logement individuel supérieur à 120 m²
Année de livraison : 2019
Surface totale du bâtiment en m² : 139
Coût total en € HT (hors foncier, hors VRD, hors honoraires) : 255000
Volume lot bois n°1 - m³ : 45
Coût du lot bois n°1 - € HT : 95254
Bois Français : oui
Isolations biosourcées (préciser dans le descriptif technique) : oui
Finitions intéreures biosourcées ou géosourcées (préciser dans le descriptif technique) : oui

Structure bois du bâtiment

Structure verticale :

ProduitEssenceProvenances (lieu de croissance du bois)Traitements de préservationMarque et certification produit
Panneau de bois massif (CLT collé ou CLT cloué)Épicéa communEuropeTraitement Classe 2 (trempage)

Structure horizontale :

ProduitEssenceProvenances (lieu de croissance du bois)Traitements de préservationMarque et certification produit
Panneau de bois massif (CLT collé ou CLT cloué)Épicéa communEuropeTraitement Classe 2 (trempage)

Charpente :

ProduitEssenceProvenances (lieu de croissance du bois)Traitements de préservationMarque et certification produit
Charpente bois lamellé-colléÉpicéa communEuropeTraitement Classe 2 (trempage)

Revêtement bois extérieur

Revêtement bois ou dérivés :

ProduitEssenceProvenances (lieu de croissance du bois)Marque et certification produitFinitionTraitements de préservation
Lame bois massifDouglasFranceAucune finitionAucun traitement

Menuiserie intérieure et extérieure

Menuiserie extérieure :

ProduitEssenceProvenances (lieu de croissance du bois)Marque et certification produitFinition
Menuiserie mixtePin sylvestreEuropeLasure

Isolation des murs

Isolation extérieure des murs :

Produit
Fibre de bois (Panneaux)
Epaisseur (mm) Isolation extérieure des murs : 220

Isolation de la toiture

Epaisseur (mm) Isolation extérieure de la toiture : 280

Approche environnementale : Citerne d’eau de pluie, chauffe-eau solaire, jardin en perma-culture (..) viennent compléter les caractéristiques éco-responsables souhaitées par les porteurs de ce projet de maison passive (labellisée). Les finitions brutes, l'usage de bois massif (CLT) et d'isolants biossourcés permettent de minimiser l'empreinte carbone de la construction. Peinture écolabellisée, revêtement de sol stratifié écologique à base de Liège et sans PVC, ventilation double-flux pour le confort et la santé des habitants...

Descriptif technique : - Ossature CLT apparent (murs extérieurs, sous-face du plancher intermédiaire, rampants des toitures, escalier) - Isolation par l'extérieur en fibre de bois >> zéro pont thermique - Menuiseries mixtes bois aluminium avec triple vitrages - Dalle RdC: béton quartz sur isolant pour l'inertie - Bardage Douglas naturel non raboté - Toiture zinc pré-patiné quartz - Récupération d’eau de pluie - Chauffe-eau solaire individuel - Ventilation double-flux avec récupération de chaleur bouches chauffantes avec régulation par pièce - Chape sèche sur dalle CLT du R+1et revêtement Liège pour l'acoustique PEFC (Gestion forestière durable) FSC (Gestion forestière responsable) Certification bas taux de formol (CARB) Marquage CE

Chauffage au Bois : non
Certifications, labels et marques bâtiment : Passivhaus
Données déclaratives

Acteurs du projet

Maître d'ouvrage (1)

Maître d'ouvrage - Particuliers

particulier (x)

Etudes et ingénieries (2)

Maître d'œuvre - Architecte mandataire

Tektolab Architectes (44)

Bureau d'études thermique

TY ECO2 (35)

Entreprises des lots bois (2)

Charpentier

Atelier Isac (44)

Menuisier

Atelier Isac (44)

Fournisseurs du bois (2)

Scierie

Piveteau Bois (85)

Industriel

KLH - Lignatec (88)




* : L'entreprise n'est plus active
Retour à la liste