Travailler – accueillir
Travailler – accueillir

Siège social Hemp'it

49250 BEAUFORT EN ANJOU - Maine et Loire - Pays de la Loire

BÂTIMENT / LOGEMENT

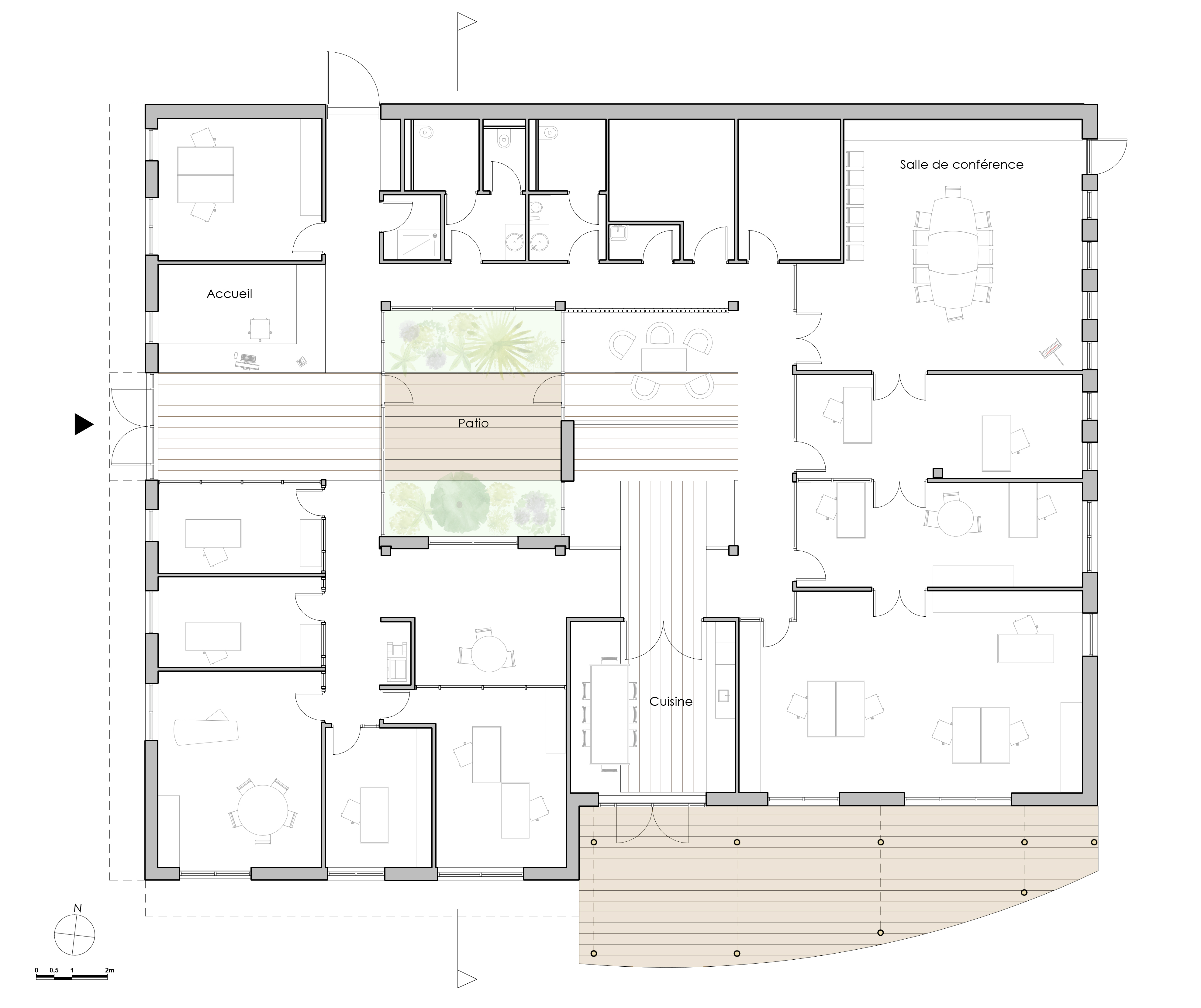
Le bâtiment a pour vocation d’accueillir une activité de recherche et développement autour du chanvre. Le chanvre ainsi développé a pour destination des filières comme le textile, l’agroalimentaire ou encore la construction. Dans une logique de développement, le bâtiment doit être un exemple de construction en chanvre et une vitrine pour ce centre de recherche comme pour la filière. Pour cette raison, des parois en béton de chanvre ont volontairement été laissées brutes. La performance énergétique ainsi que le confort d’usage du bâtiment sont des critères clefs pour l’entreprise.

Catégorie Bâtiment / logement
Numéro de projet5966
Adresse du projet 9 route d'Angers
49250 BEAUFORT EN ANJOU
Date de candidature22/02/2021

Bâtiment / logement

Détail projet

Typologie de bâtiment : Neuf
Type de bâtiment : Lieu d'entreprise
Année de livraison : 2020
Surface totale du bâtiment en m² : 472
Coût total en € HT (hors foncier, hors VRD, hors honoraires) : 700000
Lot bois n°1 concerné : Charpente bois
Volume lot bois n°1 - m³ : 34.937
Coût du lot bois n°1 - € HT : 76191
Lot bois n°2 concerné : Bardage bois
Volume lot bois n°2 - m³ : 6.575
Coût du lot bois n°2 - € HT : 24196
Bois Français : oui
Isolations biosourcées (préciser dans le descriptif technique) : oui
Finitions intéreures biosourcées ou géosourcées (préciser dans le descriptif technique) : oui

Structure bois du bâtiment

Structure verticale :

ProduitEssenceProvenances (lieu de croissance du bois)Traitements de préservationMarque et certification produit
Panneau ossature boisDouglasFranceTraitement Classe 2 (trempage)

Structure horizontale :

ProduitEssenceProvenances (lieu de croissance du bois)Traitements de préservationMarque et certification produit
Plancher mixte bois-bétonTempéréAutresJe n'ai pas l'information

Charpente :

ProduitEssenceProvenances (lieu de croissance du bois)Traitements de préservationMarque et certification produit
Charpente bois lamellé-colléDouglasFranceAucun traitement

Revêtement bois extérieur

Revêtement bois ou dérivés :

ProduitEssenceProvenances (lieu de croissance du bois)Marque et certification produitFinitionTraitements de préservation
Lame bois massifDouglasFranceTropicalAucune finitionTraitement Classe 3a (trempage)

Revêtement minéral :

Produit
Enduit chaux

Menuiserie intérieure et extérieure

Menuiserie extérieure :

ProduitEssenceProvenances (lieu de croissance du bois)Marque et certification produitFinition
Menuiserie mixtePin maritimeFranceTropicalLasure

Isolation des murs

Isolation entre-montant des murs :

Produit
Béton de chanvre
Epaisseur (mm) Isolation entre-montant des murs : 240

Isolation extérieure des murs :

Produit
Laine de bois souple
Epaisseur (mm) Isolation extérieure des murs : 80

Isolation de la toiture

Epaisseur (mm) Isolation entre-montant de la toiture : 300
Epaisseur (mm) Isolation extérieure de la toiture : 75

Approche environnementale : La conception bioclimatique du bâtiment est basée sur des principes éprouvés et lowtech : des brises soleils en façade, un patio central qui permet une ventilation naturelle, une implantation des locaux en fonction de la course du soleil et des façades adaptées en termes d'ouverture. A cela s'ajoute une réflexion sur les matériaux avec une structure en bois isolée en béton de chanvre et ouate de cellulose choisis pour leur densité favorable au confort d'été. Pour résumer, un bâtiment efficace énergiquement à faible impact carbone basé sur des principes simples et demandant peu de maintenance.

Descriptif technique : La structure poteaux-poutres bois est habillée d'un mur manteau en ossature bois isolée en fibre de bois et béton de chanvre. La toiture isolée en ouate de cellulose accueille les panneaux solaires photovoltaïques. Les menuiseries extérieures sont réalisées en matériaux mixtes bois intérieur et aluminium extérieur. Les finitions murales sont traitées en enduits chaux-chanvre et peinture biosourcée à très faible teneur en COV. Une ventilation double-flux permet le renouvellement de l'air avec préchauffage en hiver et rafraichissement en période nocturne l'été.

Chauffage au Bois : non
Données déclaratives

Acteurs du projet

Maître d'ouvrage (1)

Maître d'ouvrage - Industriels - commerçants - entreprise

Hemp'it (49)

Etudes et ingénieries (3)

Maître d'œuvre - Architecte mandataire

Can Ingenieurs Architectes (44)

Bureau d'études structure bois

Can Ingenieurs Architectes (44)

Bureau d'études thermique

Axenergie (85)

Entreprises des lots bois (2)

Charpentier

Construction Trillot Sas (49)

Menuisier

SARL MENUISERIE GAUBERT BAZANTE (49)




* : L'entreprise n'est plus active
Retour à la liste