Habiter une maison

Pavillon Sommecaise

89110 - Yonne - Bourgogne-Franche-Comté
Lauréat régional
Finaliste national

BÂTIMENT / LOGEMENT

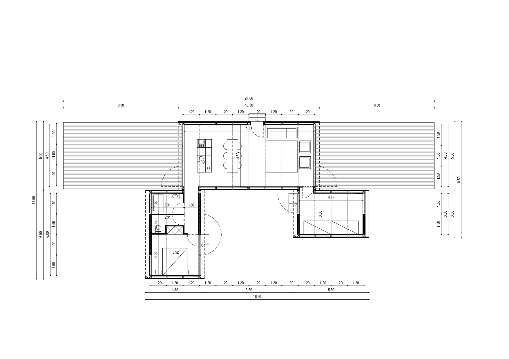
Le projet conçoit un pavillon en ossature bois de 80 m² de SDP avec des grandes baies vitrées qui permettront de profiter du bois dans lequel la construction est insérée. La volonté du projet est de s’immerger dans la nature tout en respectant le site : pour cela seulement les arbres qui occupent actuellement l'emplacement de la maison ont été abattus, tout en conservant les autres. L'orientation du pavillon est perpendiculaire à la voie d'accès, ce qui offre une orientation est-ouest idéale.

Catégorie Bâtiment / logement
Numéro de projet5917
Date de candidature11/02/2021

Bâtiment / logement

Détail projet

Typologie de bâtiment : Neuf
Type de bâtiment : Logement individuel inférieur 120 m²
Année de livraison : 2020
Surface totale du bâtiment en m² : 80
Coût total en € HT (hors foncier, hors VRD, hors honoraires) : 120.000
Lot bois n°1 concerné : Charpente bois
Volume lot bois n°1 - m³ : 15.5
Coût du lot bois n°1 - € HT : 20.000
Lot bois n°2 concerné : Menuiserie intérieure bois
Volume lot bois n°2 - m³ : 12
Coût du lot bois n°2 - € HT : 26.000
Bois Français : non
Isolations biosourcées (préciser dans le descriptif technique) : non
Finitions intéreures biosourcées ou géosourcées (préciser dans le descriptif technique) : non

Structure bois du bâtiment

Structure verticale :

ProduitEssenceProvenances (lieu de croissance du bois)Traitements de préservationMarque et certification produit
Panneau ossature boisDouglasEuropeAucun traitement

Structure horizontale :

ProduitEssenceProvenances (lieu de croissance du bois)Traitements de préservationMarque et certification produit
Plancher béton

Charpente :

ProduitEssenceProvenances (lieu de croissance du bois)Traitements de préservationMarque et certification produit
Non préciséDouglasEuropeAucun traitement

Revêtement bois extérieur

Revêtement bois ou dérivés :

ProduitEssenceProvenances (lieu de croissance du bois)Marque et certification produitFinitionTraitements de préservation
Lame bois massifSapin pectinéBourgogne-Franche-ComtéAucune finitionTraitement Classe 2 (trempage)

Autre revêtement métallique :

Produit
Acier

Menuiserie intérieure et extérieure

Isolation des murs

Isolation entre-montant des murs :

Produit
Laine de verre
Epaisseur (mm) Isolation entre-montant des murs : 200

Isolation de la toiture

Epaisseur (mm) Isolation entre-montant de la toiture : 200

Approche environnementale : Le bâtiment est réalisé principalement en bois : structure et charpente en bois massif, habillage extérieur en bois non traité et habillage intérieur en panneaux contreplaqué bouleau type Finaply. L’isolation thermique a été particulièrement soignée y compris celle sous le plancher, ainsi que l’étanchéité à l’air. Une poêle à bois de 70Kw assure le chauffage du volume intérieur (le bois est celui de récupération des arbres coupés). La fosse septique est à épandage naturel.

Descriptif technique : Les matériaux sont le bois, le verre avec châssis métalliques et le bac acier pour le bardage des parties opaques des façades et la toiture avec une finition plutôt foncé pour mieux s’harmoniser avec le contexte. Deux vérandas en lattes de bois prolongent le volume de la maison en plain air. Une fosse septique en arrière de la maison sera réalisée, conformément à la réglementation. La maison est de plain pied et mesure environ 3.9m de hauteur au faîtage.

Chauffage au Bois : oui
Appareil de chauffage au bois : Poële/insert
Données déclaratives

Acteurs du projet

Maître d'ouvrage (1)

Maître d'ouvrage - Particuliers

particulier (x)

Etudes et ingénieries (1)

Maître d'œuvre - Architecte mandataire

VD Architectures (75)




* : L'entreprise n'est plus active
Retour à la liste