Habiter une maison
Habiter une maison

Maison passive à Yzeron

69510 Yzeron - Rhône - Auvergne-Rhône-Alpes

BÂTIMENT / LOGEMENT

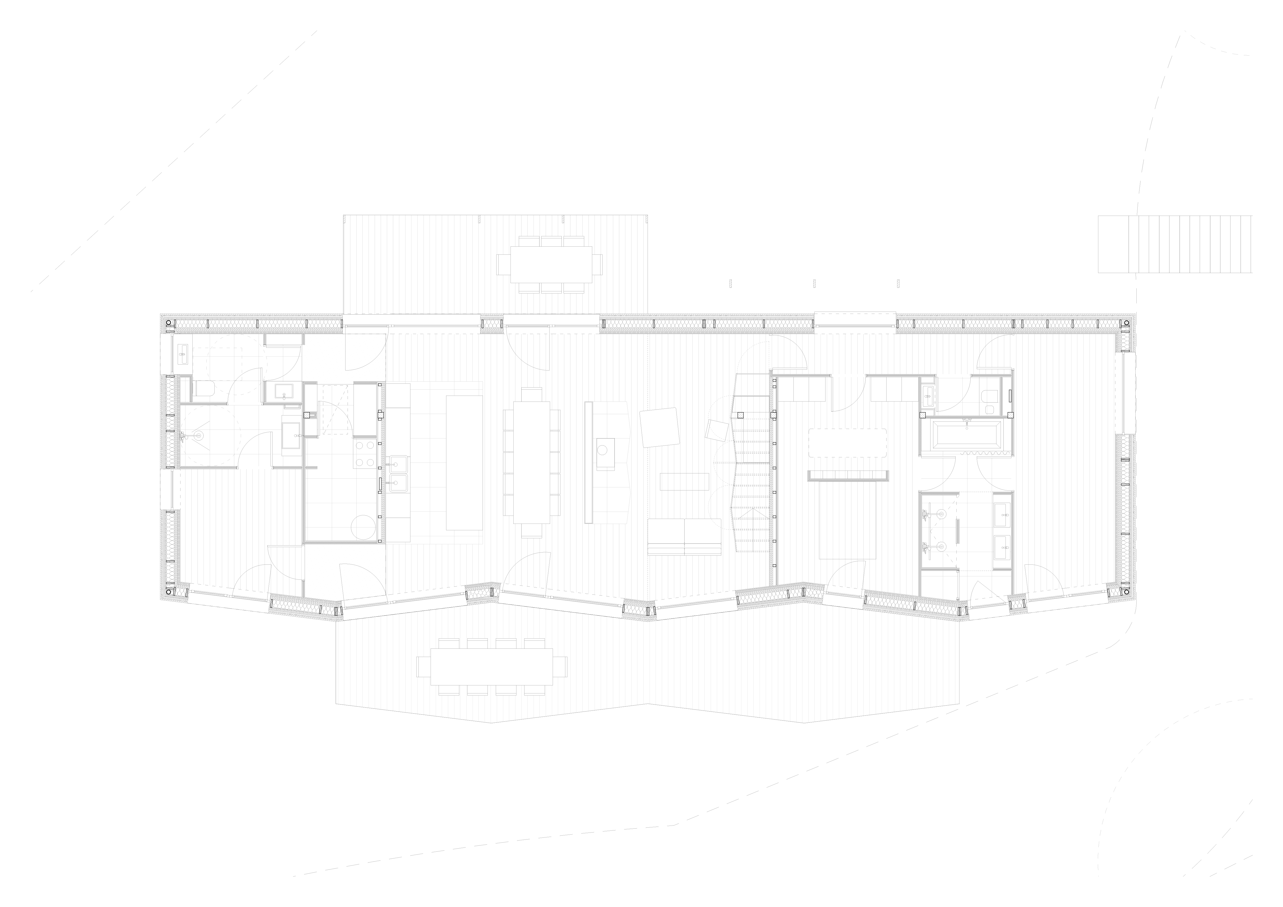
Maison individuelle passive de 168 m² en rez-de-chaussée avec mezzanines aménagées sous les rampants et garage indépendant. D’emblée la demande des maitres d’ouvrage était portée sur la construction durable et une empreinte écologique minimaliste. Les lignes pures, la simplicité des volumes, compacts et performants font l’égérie d’une architecture contemporaine dans un paysage rural préservé.

Catégorie Bâtiment / logement
Numéro de projet5888
Date de candidature08/02/2021

Bâtiment / logement

Détail projet

Typologie de bâtiment : Neuf
Type de bâtiment : Logement individuel supérieur à 120 m²
Année de livraison : 2020
Surface totale du bâtiment en m² : 168
Coût total en € HT (hors foncier, hors VRD, hors honoraires) : 422400
Bois Français : oui
Isolations biosourcées (préciser dans le descriptif technique) : oui
Finitions intéreures biosourcées ou géosourcées (préciser dans le descriptif technique) : oui

Structure bois du bâtiment

Structure verticale :

ProduitEssenceProvenances (lieu de croissance du bois)Traitements de préservationMarque et certification produit
Panneau de bois massif (CLT collé ou CLT cloué)DouglasAuvergne-Rhône-AlpesTraitement Classe 2 (trempage)

Structure horizontale :

ProduitEssenceProvenances (lieu de croissance du bois)Traitements de préservationMarque et certification produit
Plancher mixte bois-bétonDouglasAuvergne-Rhône-AlpesAucun traitement

Charpente :

ProduitEssenceProvenances (lieu de croissance du bois)Traitements de préservationMarque et certification produit
Caisson de toitureDouglasAuvergne-Rhône-AlpesTraitement Classe 2 (trempage)

Revêtement bois extérieur

Revêtement bois ou dérivés :

ProduitEssenceProvenances (lieu de croissance du bois)Marque et certification produitFinitionTraitements de préservation
Lame bois massifDouglasAuvergne-Rhône-AlpesAucune finitionAucun traitement

Menuiserie intérieure et extérieure

Menuiserie extérieure :

ProduitEssenceProvenances (lieu de croissance du bois)Marque et certification produitFinition
Menuiserie mixteÉpicéa commun

Isolation des murs

Isolation extérieure des murs :

Produit
Laine de bois souple
Epaisseur (mm) Isolation extérieure des murs : 260

Isolation de la toiture

Epaisseur (mm) Isolation entre-montant de la toiture : 400

Approche environnementale : La maison est autonome en énergies, avec apports solaires pour le chauffage, ventilation double flux pour récupérer les calories sur l’air extrait, appoint de chauffage par poêle granulés bois, production photovoltaïque pour l’électricité, chauffe-eau solaire, récupération des eaux pluviales pour la quasi-totalité de l’eau de la maison.

Descriptif technique : Construction ossature bois, bois local de la Loire, circuit court scierie - charpente, isolation biosourcée laine de bois issue des déchets de la scierie qui fournit les bois de charpente sur le même site de production. PEFC (Gestion forestière durable) FSC (Gestion forestière responsable) NF Contreplaqués (CTBX - CTBC) NF Parquets

Chauffage au Bois : oui
Appareil de chauffage au bois : Poële/insert
Certifications, labels et marques bâtiment : Bois de France
Données déclaratives

Acteurs du projet

Maître d'ouvrage (1)

Maître d'ouvrage - Particuliers

particulier (x)

Etudes et ingénieries (1)

Maître d'œuvre - Architecte mandataire

DAMIEN VIGNON ARCHITECTE (69)

Entreprises des lots bois (2)

Charpentier

LIGNATECH (42)

Menuisier

LABORATOIRE GUEULE DE BOIS (69)

Fournisseurs du bois (1)

Scierie

SCIERIE FORGE MAHUSSIER (42)




* : L'entreprise n'est plus active
Retour à la liste