Réhabiliter un logement
Réhabiliter un logement

Surélévation LRVO

44800 Saint Herblain - Loire Atlantique - Pays de la Loire

BÂTIMENT / LOGEMENT

Le volume est simple, monobloc, radicalement enveloppé d’un bardage bois, sur les murs comme sur le toit. Délicatement posée sur le garage d'un pavillon des années 80, la surélévation LRVO contraste par sa matérialité sans effacer pour autant la géométrie particulière du bâti qui la supporte. En étirant la ligne de faîtage et les pentes de toiture existantes, l’extension s’affirme dans le prolongement du pavillon. Son agencement, le dessin de ses percements et la matérialité de son enveloppe continue affirment la greffe prenant position dans l’infinie transformation du quartier, de la ville.

Catégorie Bâtiment / logement
Numéro de projet5878
Date de candidature05/02/2021

Bâtiment / logement

Détail projet

Typologie de bâtiment : Extension / surélévation
Type de bâtiment : Logement individuel supérieur à 120 m²
Année de livraison : 2020
Surface totale du bâtiment en m² : 150
Dont extension / surélévation en m² : 25
Coût total en € HT (hors foncier, hors VRD, hors honoraires) : 64700
Bois Français : non
Isolations biosourcées (préciser dans le descriptif technique) : non
Finitions intéreures biosourcées ou géosourcées (préciser dans le descriptif technique) : non

Structure bois du bâtiment

Structure verticale :

ProduitEssenceProvenances (lieu de croissance du bois)Traitements de préservationMarque et certification produit
Panneau ossature boisSapin pectinéFranceTraitement Classe 2 (trempage)

Structure horizontale :

ProduitEssenceProvenances (lieu de croissance du bois)Traitements de préservationMarque et certification produit
Solivage traditionnelSapin pectinéFranceTraitement Classe 2 (trempage)

Charpente :

ProduitEssenceProvenances (lieu de croissance du bois)Traitements de préservationMarque et certification produit
Charpente traditionnelleSapin pectinéFranceTraitement Classe 2 (trempage)

Revêtement bois extérieur

Revêtement bois ou dérivés :

ProduitEssenceProvenances (lieu de croissance du bois)Marque et certification produitFinitionTraitements de préservation
Lame bois massifDouglasFrance

Menuiserie intérieure et extérieure

Isolation des murs

Isolation intérieure des murs :

Produit
Laine de verre
Epaisseur (mm) Isolation intérieure des murs : 60

Isolation entre-montant des murs :

Produit
Laine de verre
Epaisseur (mm) Isolation entre-montant des murs : 120

Isolation de la toiture

Epaisseur (mm) Isolation extérieure de la toiture : 140

Approche environnementale : Surélever, c'est faire le choix de densifier et d'augmenter une structure bâtie existante. Ici, débordant d'un pignon autrefois aveugle, la surélévation tire profit de l’orientation de la parcelle qui jouit d’une situation particulière d’angle. C'est La Ruée Vers l'Ouest. VOUS exploite cette position par l'ouverture du volume et son agencement afin de capter et distribuer au mieux les apports solaires. Le bois y est utilisé à sa juste valeur, en massif pour l'ossature et le bardage et en contreplaqué pour le cloisonnement et l'aménagement intérieur, escalier compris.

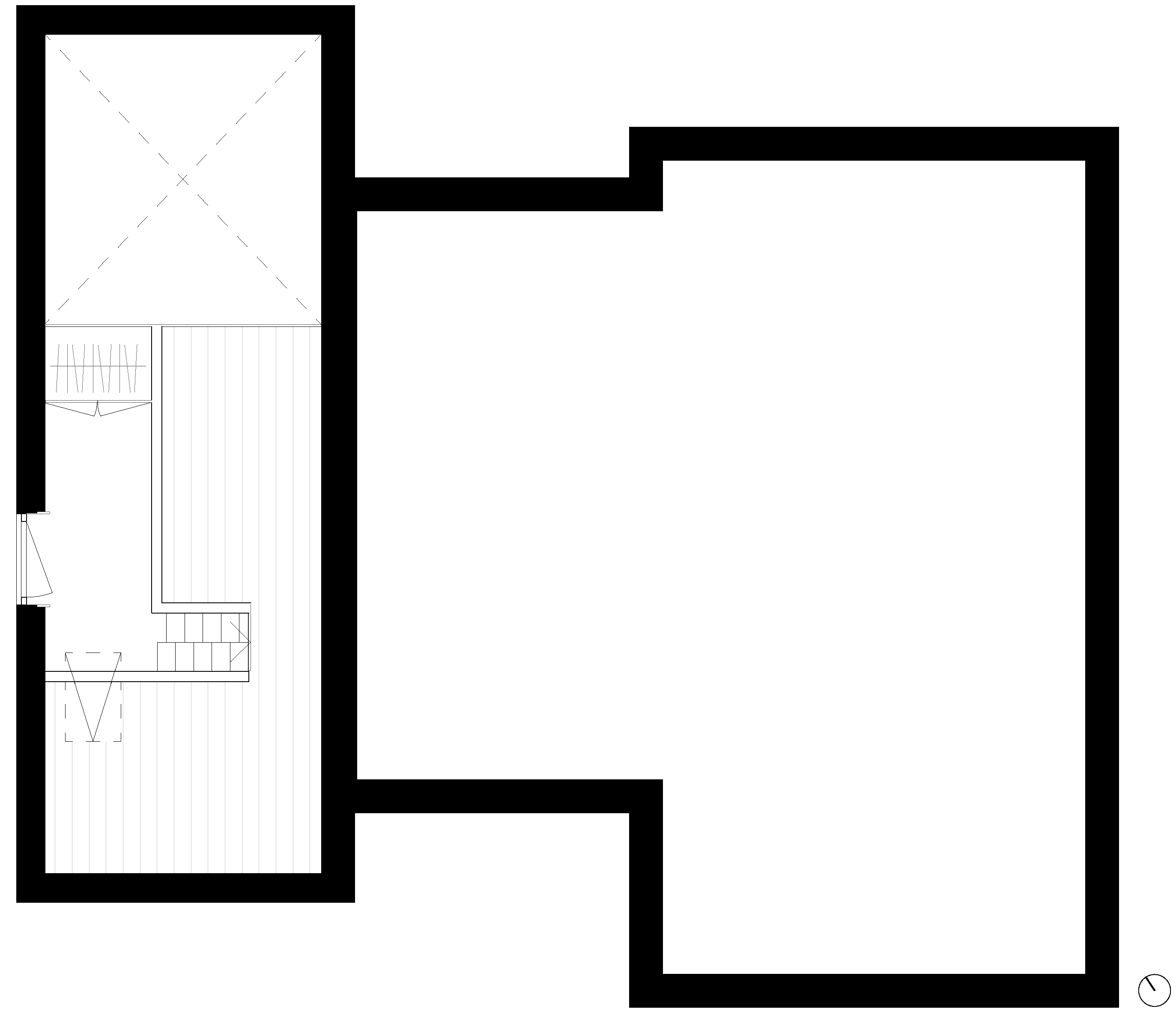
Descriptif technique : Cette extension de 25 m² abrite une suite parentale ainsi qu’un espace en sous-pente dédié au stockage. Le dressing en double hauteur est la rotule de distribution de l’espace traversant. Une fenêtre haute permet une vue profonde vers l’ouest et souligne la dimension verticale du dressing, quand celles de la salle de bain et de la chambre offrent des cadrages plus serrés pour la gestion des vis-à-vis. A l’intérieur, un aménagement sur mesure intégralement en contreplaqué de bouleau connecte ces espaces. La mezzanine mansardée et éclairée naturellement devient un grenier aux usages flexibles.

Chauffage au Bois : non
Données déclaratives

Acteurs du projet

Maître d'ouvrage (1)

Maître d'ouvrage - Particuliers

particulier (x)

Etudes et ingénieries (1)

Maître d'œuvre - Architecte mandataire

Collectif Vous Architecte (44)

Entreprises des lots bois (2)

Charpentier

Ets Bretin Lionel (85)

Menuisier

Collectif VOUS Design (44)




* : L'entreprise n'est plus active
Retour à la liste