Apprendre – se divertir
Apprendre – se divertir

Restaurant scolaire Marie Curie

59770 marly - Nord - Hauts-de-France

BÂTIMENT / LOGEMENT

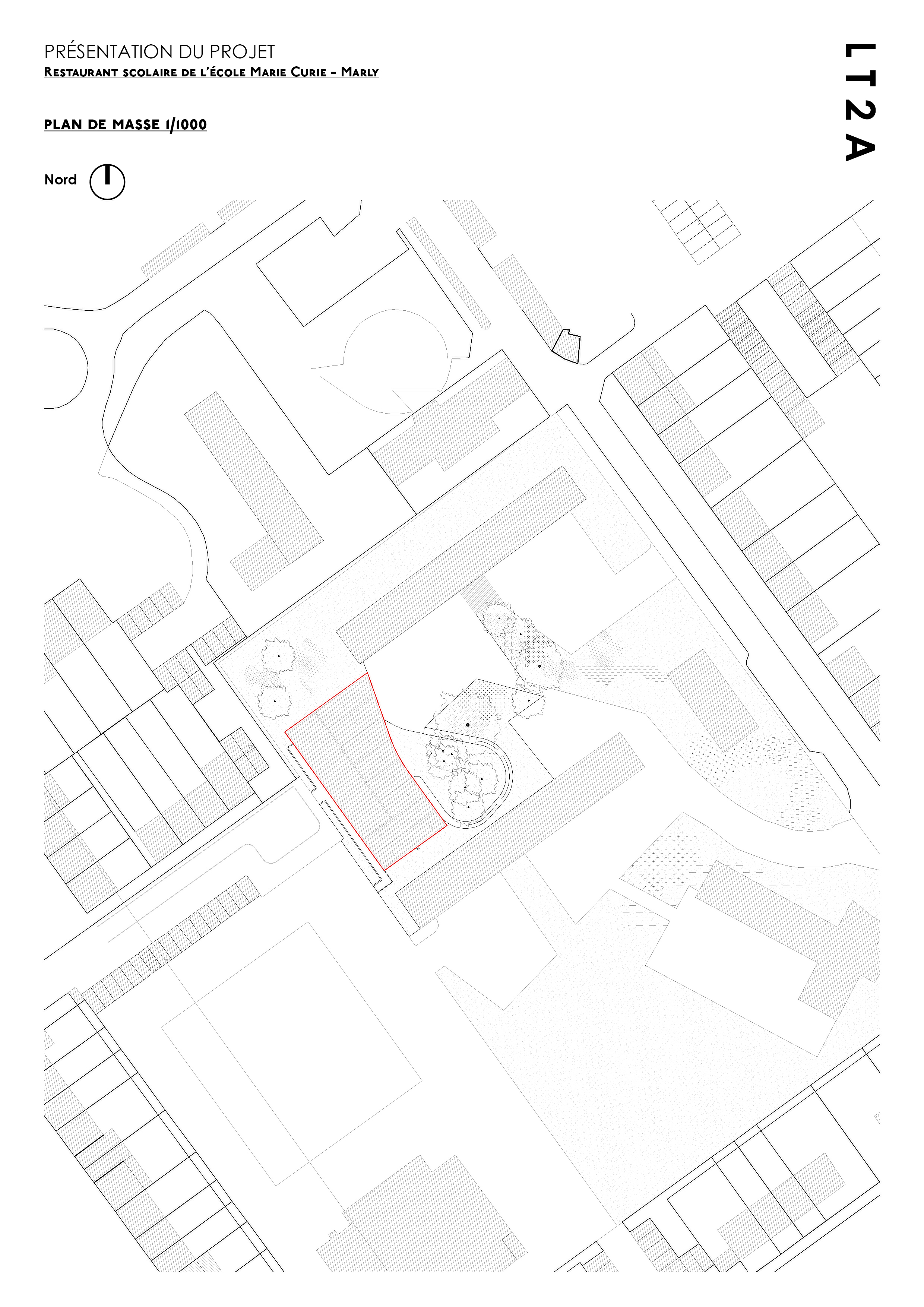
Le site du restaurant scolaire se situe entre deux barres de béton, face à un espace vert largement arboré qui descend en pente vers la rue. Le bâtiment est situé en point haut du terrain. La salle de restaurant s’ouvre sur le jardin tandis que les espaces techniques et la cuisine sont localisés contre la voie de desserte arrière. Le bâtiment est compact. La façade principale, portiques de bois sur un socle de béton, est un écho à la modénature des barres existantes. Un des coins du parallélépipède est poussé et vient courber la façade pour éviter un bosquet d'arbres.

Catégorie Bâtiment / logement
Numéro de projet5830
Adresse du projet 2 Rue des Bleuets
59770 marly
Date de candidature28/01/2021

Bâtiment / logement

Détail projet

Typologie de bâtiment : Neuf
Type de bâtiment : Enseignement ou éducation
Année de livraison : 2019
Surface totale du bâtiment en m² : 605
Dont extension / surélévation en m² : 605
Coût total en € HT (hors foncier, hors VRD, hors honoraires) : 1200000
Lot bois n°1 concerné : Charpente bois
Volume lot bois n°1 - m³ : 23
Coût du lot bois n°1 - € HT : 55000
Lot bois n°2 concerné : ossature bois
Volume lot bois n°2 - m³ : 5
Coût du lot bois n°2 - € HT : 20000
Bois Français : oui
Isolations biosourcées (préciser dans le descriptif technique) : non
Finitions intéreures biosourcées ou géosourcées (préciser dans le descriptif technique) : non

Structure bois du bâtiment

Structure verticale :

ProduitEssenceProvenances (lieu de croissance du bois)Traitements de préservationMarque et certification produit
Poteau poutreMélèzeAuvergne-Rhône-AlpesAucun traitement
Panneau ossature boisÉpicéa communAuvergne-Rhône-AlpesTraitement Classe 2 (trempage)

Structure horizontale :

ProduitEssenceProvenances (lieu de croissance du bois)Traitements de préservationMarque et certification produit
Plancher mixte bois-acier Épicéa communAuvergne-Rhône-AlpesTraitement Classe 2 (trempage)

Charpente :

ProduitEssenceProvenances (lieu de croissance du bois)Traitements de préservationMarque et certification produit
Charpente bois lamellé-colléÉpicéa commun

Revêtement bois extérieur

Autre revêtement métallique :

Produit
Alu

Menuiserie intérieure et extérieure

Isolation des murs

Epaisseur (mm) Isolation intérieure des murs : 45
Epaisseur (mm) Isolation entre-montant des murs : 145

Isolation de la toiture

Epaisseur (mm) Isolation extérieure de la toiture : 250

Approche environnementale : Le recours au bois que nous avons défendu auprès de la maîtrise d'ouvrage a permis de limiter le bilan carbone du chantier. L'isolation a été renforcée par rapport aux exigences de base. Les équipements ont été choisis pour limiter la consommation en énergie: pompe à chaleur, ventilation double flux haut rendement, éclairage LED avec allumage par détection de présence.

Descriptif technique : Les mur sont constitués de poteaux en mélèse. Les jonctions avec le soubassement en béton ont fait l'objet d'une mise point exigente avec l'entreprise. Elles sont décollés du soubassement mais le joint est limité. Entre chaque poteau une menuiserie aluminium va du sol jusqu'à la sous-face des poutres bois. Au dessus un imposte est réalisé en ossature bois avec un habillage en tôle ondulée. Une poutre bois périphérique assure le couronnement du bâtiment. La toiture en bacs acier est soutenue par des poutres en lamellé-collé d'épicéa.

Chauffage au Bois : non
Certifications, labels et marques bâtiment : Origine France Garantie (OFG),Bois de France
Données déclaratives

Acteurs du projet

Maître d'ouvrage (1)

Maître d'ouvrage - État ou collectivité (locale et territ)

COMMUNE DE MARLY (59)

Etudes et ingénieries (1)

Maître d'œuvre - Architecte mandataire

paul emmanuel Lambert (59)

Entreprises des lots bois (2)

Charpentier

RAMERY CONSTRUCTION BOIS (62)
RAMERY CONSTRUCTION BOIS (62)




* : L'entreprise n'est plus active
Retour à la liste