La maison a été construite en pleine vigne, profitant du confort de la structure et de l’isolation en laine de bois, lui apportant tout le côté chaleureux de son environnement. Le rez-de-chaussée accueille les pièces de vie de cette maison, avec une grande cuisine ouverte sur son séjour et sur son salon offrant une vue magnifique sur le vignoble alsacien. L’étage dessert les chambres de chaque membre de la famille, offrant lui aussi un coin de quiétude avec une vue sur le vignoble.
Catégorie | Bâtiment / logement |
---|---|
Numéro de projet | 5813 |
Date de candidature | 22/01/2021 |
Structure verticale :
Produit | Essence | Provenances (lieu de croissance du bois) | Traitements de préservation | Marque et certification produit | |
---|---|---|---|---|---|
Panneau ossature bois | Europe | Traitement Classe 2 (trempage) |
Structure horizontale :
Produit | Essence | Provenances (lieu de croissance du bois) | Traitements de préservation | Marque et certification produit | |
---|---|---|---|---|---|
Solivage traditionnel | Épicéa commun | Europe | Traitement Classe 2 (trempage) |
Charpente :
Produit | Essence | Provenances (lieu de croissance du bois) | Traitements de préservation | Marque et certification produit | |
---|---|---|---|---|---|
Charpente traditionnelle | Épicéa commun | Europe | Traitement Classe 2 (trempage) |
Revêtement minéral :
Produit | |||||
---|---|---|---|---|---|
Enduit ciment |
Isolation entre-montant des murs :
Produit | |||||
---|---|---|---|---|---|
Laine de bois souple |
Isolation extérieure des murs :
Produit | |||||
---|---|---|---|---|---|
Fibre de bois (Panneaux) |
Approche environnementale : Cette maison a été conçue dans le but d’apporter le bien-être de l’ossature bois aux clients, en s’intégrant harmonieusement au vignoble, avec son cachet du poteau-poutre extérieur. Cette maison profitera d’une terrasse à l’arrière, enclavée dans les vignes.
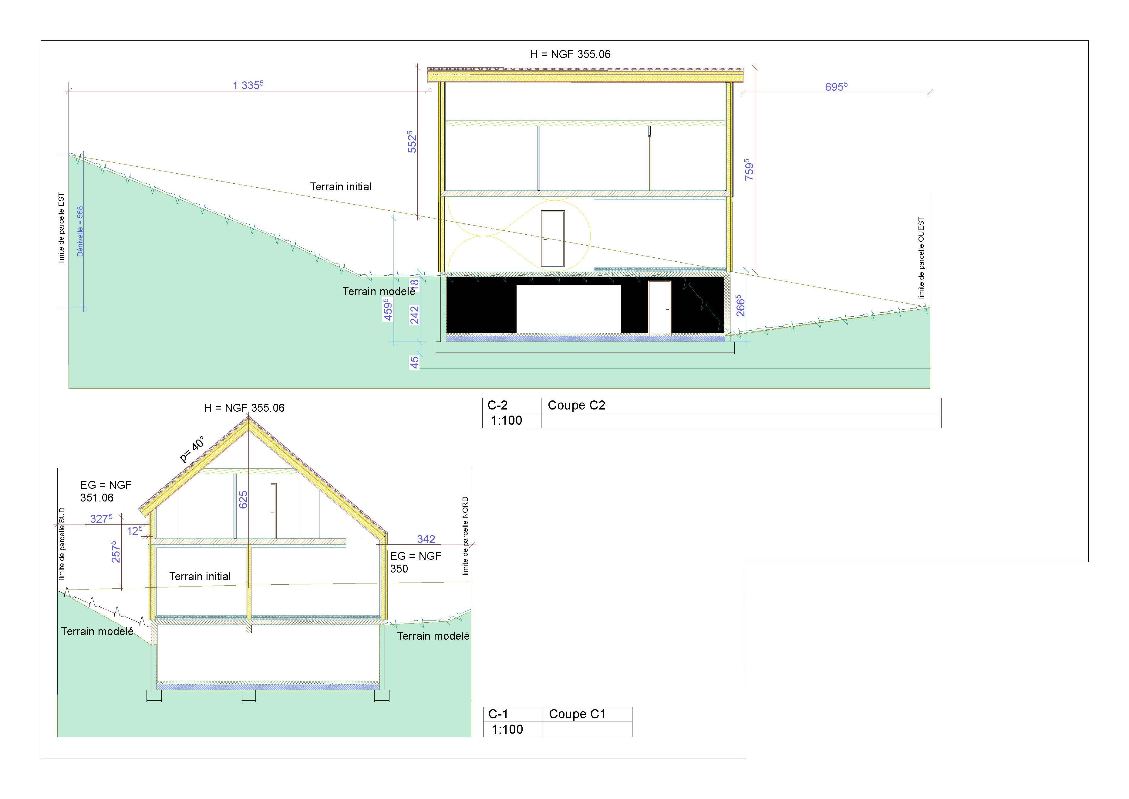
Descriptif technique : L’ossature bois utilisée pour cette maison, repose sur une cave, qui rattrape la hauteur de la pente du terrain existant. La toiture traditionnelle donne tout le relief de la maison, s’intégrant au système décoratif du poteau-poutre visible à l’extérieur. PEFC (Gestion forestière durable) FSC (Gestion forestière responsable) Marquage CE
Chauffage au Bois : nonSAS PRECIOSA Constructions Bois (68)
SAS PRECIOSA Constructions Bois (68)