Apprendre – se divertir, Travailler – accueillir, Réhabiliter un équipementApprendre – se divertir, Travailler – accueillir, Réhabiliter un équipementApprendre – se divertir, Travailler – accueillir, Réhabiliter un équipement
Apprendre – se divertir, Travailler – accueillir, Réhabiliter un équipement

Base nautique et Office de tourisme du Pouldu

29360 CLOHARS CARNOET - Finistère - Bretagne

BÂTIMENT / LOGEMENT

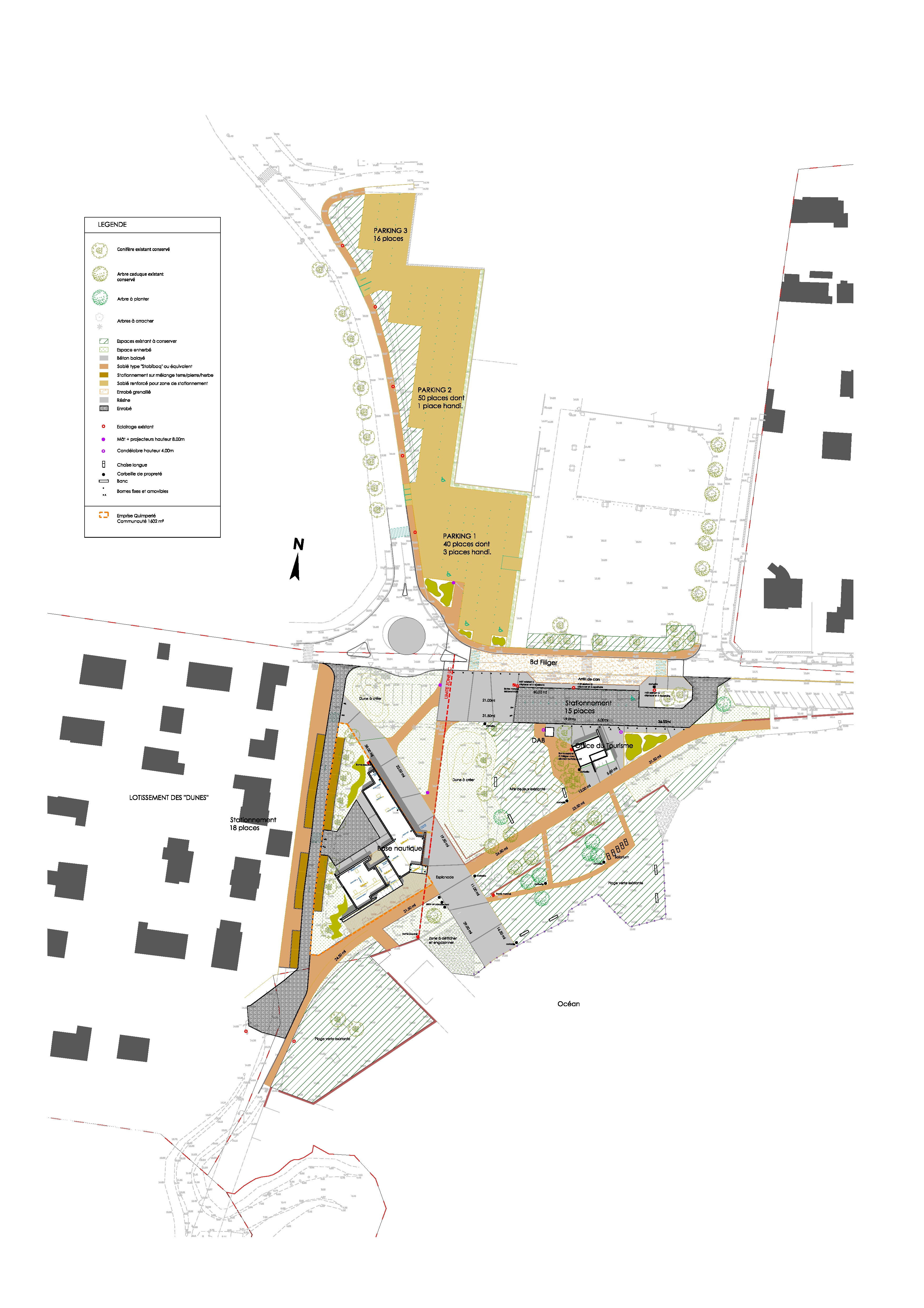
Le projet consiste en la création d’une base nautique sur la place de l’Océan à Clohars-Carnoët et la réhabilitation de l’actuel office du tourisme. Elle s’appuie sur une large esplanade, fil conducteur qui guide les regards vers l’océan. De par son implantation elle referme la place , les vestiaires sont localisés au plus proche de la cale et la partie accueil /espace pédagogique est tourné vers la place. Une «lanterne vitrée» sert de point de repère dans le paysage. L’emploi de matériaux durables et pérennes est recherché (bardage à claire voie en châtaigner, béton brut, aluminium anodisé..).

Catégorie Bâtiment / logement
Numéro de projet5790
Adresse du projet Place de l'Océan
29360 CLOHARS CARNOET
Date de candidature15/01/2021

Bâtiment / logement

Détail projet

Typologie de bâtiment : Neuf,Rénovation / Réhabilitation
Type de bâtiment : Sport,Service institutionnel et public
Année de livraison : 2021
Surface totale du bâtiment en m² : 422
Coût total en € HT (hors foncier, hors VRD, hors honoraires) : 1100000
Lot bois n°1 concerné : Charpente bois
Coût du lot bois n°1 - € HT : 199600
Lot bois n°2 concerné : Bardage bois
Bois Français : oui
Isolations biosourcées (préciser dans le descriptif technique) : non
Finitions intéreures biosourcées ou géosourcées (préciser dans le descriptif technique) : non

Structure bois du bâtiment

Structure verticale :

ProduitEssenceProvenances (lieu de croissance du bois)Traitements de préservationMarque et certification produit
Panneau ossature boisSapin pectinéEuropeTraitement Classe 2 (trempage)

Structure horizontale :

ProduitEssenceProvenances (lieu de croissance du bois)Traitements de préservationMarque et certification produit
Non précisé

Charpente :

ProduitEssenceProvenances (lieu de croissance du bois)Traitements de préservationMarque et certification produit
Charpente bois lamellé-colléTempéréTraitement Classe 2 (trempage)

Revêtement bois extérieur

Revêtement bois ou dérivés :

ProduitEssenceProvenances (lieu de croissance du bois)Marque et certification produitFinitionTraitements de préservation
Bardeau boisChâtaignierBretagneAucun traitement

Autre revêtement métallique :

Produit
Alu

Menuiserie intérieure et extérieure

Isolation des murs

Isolation intérieure des murs :

Produit
Laine de verre
Epaisseur (mm) Isolation intérieure des murs : 75

Isolation entre-montant des murs :

Produit
Laine de verre
Epaisseur (mm) Isolation entre-montant des murs : 145

Isolation de la toiture

Epaisseur (mm) Isolation intérieure de la toiture : 75
Epaisseur (mm) Isolation extérieure de la toiture : 140

Approche environnementale : Optimisation de l'orientation du bâtiment par rapport aux apports solaires Mise en place de panneaux solaires pour l'eau chaude sanitaire

Descriptif technique : Structure mixte composée de murs à ossature bois Mur préfabriqués en béton Parois de verre, type REGLIT Bardage à claire voie en châtaigner.

Chauffage au Bois : non
Données déclaratives

Acteurs du projet

Maître d'ouvrage (1)

Maître d'ouvrage - État ou collectivité (locale et territ)

CA Quimperlé Communauté (29)

Etudes et ingénieries (3)

Maître d'œuvre - Architecte mandataire

MARTIAL ARCHITECTE URBANISTE (29)

Bureau d'études thermique

AXONE BET (29) *

Economiste

ECMO Ingenierie (29)

Entreprises des lots bois (1)

Charpentier

Maisons bois ouest (29)

Fournisseurs du bois (1)

Scierie

GROUAZEL SARL (35)




* : L'entreprise n'est plus active
Retour à la liste