Réhabiliter un logement
Réhabiliter un logement

Extension bois performante

22970 PLOUMAGOAR - Côtes d'Armor - Bretagne

BÂTIMENT / LOGEMENT

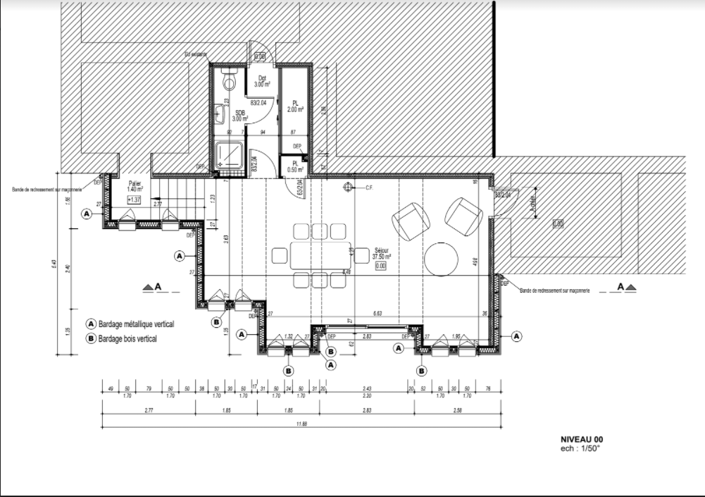
Soucieux de ne pas créer un pastiche d'architecture de la fin du XIXème, la réflexion portait sur une greffe du bâti ancien par une composition contemporaine. Résolument attaché à l'accroche entre les deux entités et contraint règlementairement, l'architecture se base sur un rythme de pans et un jeu de décroché. Tels des "Tiny House" juxtaposées, l'extension se devait d’interpeller sans jurer. L'alternance zinc/claire-voies du bardage correspond aussi aux sensibilités et aux attentes des propriétaires. Le parquet châtaignier et l'escalier chêne intérieur furent réalisés dans la continuité.

Catégorie Bâtiment / logement
Numéro de projet5751
Date de candidature07/01/2021

Bâtiment / logement

Détail projet

Typologie de bâtiment : Extension / surélévation
Type de bâtiment : Logement individuel supérieur à 120 m²
Année de livraison : 2020
Surface totale du bâtiment en m² : 136.9
Dont extension / surélévation en m² : 46.5
Coût total en € HT (hors foncier, hors VRD, hors honoraires) : 126000
Lot bois n°1 concerné : ossature bois
Coût du lot bois n°1 - € HT : 19400.49
Lot bois n°2 concerné : Autre lot bois
Coût du lot bois n°2 - € HT : 20697.22
Bois Français : oui
Isolations biosourcées (préciser dans le descriptif technique) : oui
Finitions intéreures biosourcées ou géosourcées (préciser dans le descriptif technique) : oui

Structure bois du bâtiment

Structure verticale :

ProduitEssenceProvenances (lieu de croissance du bois)Traitements de préservationMarque et certification produit
Panneau ossature boisFranceTraitement Classe 2 (trempage)

Structure horizontale :

ProduitEssenceProvenances (lieu de croissance du bois)Traitements de préservationMarque et certification produit
Solivage traditionnelÉpicéa communEuropeTraitement Classe 2 (trempage)

Charpente :

ProduitEssenceProvenances (lieu de croissance du bois)Traitements de préservationMarque et certification produit
Charpente traditionnelleDouglasEuropeJe n'ai pas l'information

Revêtement bois extérieur

Autre revêtement métallique :

Produit
Zinc

Menuiserie intérieure et extérieure

Isolation des murs

Isolation intérieure des murs :

Produit
Fibre de bois (Panneaux)
Epaisseur (mm) Isolation intérieure des murs : 50

Isolation entre-montant des murs :

Produit
Fibre de bois (Panneaux)
Epaisseur (mm) Isolation entre-montant des murs : 140

Isolation extérieure des murs :

Produit
Fibre de bois (Panneaux)

Isolation de la toiture

Epaisseur (mm) Isolation entre-montant de la toiture : 400
Epaisseur (mm) Isolation extérieure de la toiture : 50

Approche environnementale : Le cahier des charges a défini comme enjeu un bâtiment sain et résolument peu énergivore. Charpente, ossature, mur, isolation, sol (châtaignier français et compensation carbone pour le transport), peinture et traitement furent choisis sous critère de provenance, de faible émission de COV et d'empreinte environnementale. Le poêle à pellet reste une flamme d’agrément et un appoint en période froide.

Descriptif technique : Bioclimatisme : Orientation sud de tous les ouvrants (apports solaires passifs) et toit plein (éviter les surchauffes d'été). Murs en ossature bois avec traverses hautes et basses contreventés en OSB, isolés en 145 + 50 mm de laine de bois. Charpente composée de chevrons porteurs en Douglas et épicéa en fond de chéneau. Isolation en toiture de 400mm en laine de bois + 50 en Pavatex (pare-pluie) sous zinc. L'étanchéité à l'air a été traitée avec un film pare-vapeur. Bardage Douglas naturel 45*45 pose verticale avec lattage et contre lattage.

Chauffage au Bois : oui
Appareil de chauffage au bois : Poële/insert
Données déclaratives

Acteurs du projet

Maître d'ouvrage (1)

Maître d'ouvrage - Particuliers

particulier (x)

Etudes et ingénieries (1)

Maître d'œuvre - Architecte mandataire

GARÇONNET LONCLE ARCHITECTES (22)

Entreprises des lots bois (1)

Charpentier

MCCM (22)




* : L'entreprise n'est plus active
Retour à la liste