Travailler – accueillir
Travailler – accueillir

POLE AUTO BORDEAUX LAC

33300 BORDEAUX - Gironde - Nouvelle-Aquitaine

BÂTIMENT / LOGEMENT

Pour son nouveau bâtiment de contrôle technique auto situé sur le site de Bordeaux Lac, Ceetrus a fait le choix innonvant d’une construction bois, permettant ainsi de réduire drastiquement l’emprunte carbone du chantier. Le bâtiment se compose de deux volumes simples, l'un dédié à l'atelier et l'autre à l'accueil et aux bureaux. Les façades mêlent bois et aluminium. L'utilisation de l'aluminium a été limitée aux éléments techniques (menuiseries, portes, casquettes, couvertines) ; de couleur sombre gris anthracite, ils contribuent à une plus grande mise en valeur des éléments en bois.

Catégorie Bâtiment / logement
Numéro de projet5708
Adresse du projet Contrôle technique AUTOSECURITE
Centre commercial du Lac
avenue des Quarante Journaux
33300 BORDEAUX
Date de candidature09/11/2020

Bâtiment / logement

Détail projet

Typologie de bâtiment : Neuf
Type de bâtiment : Industrie et commerce
Année de livraison : 2020
Surface totale du bâtiment en m² : 309
Coût total en € HT (hors foncier, hors VRD, hors honoraires) : 680000
Lot bois n°1 concerné : Charpente bois
Coût du lot bois n°1 - € HT : 50000
Lot bois n°2 concerné : Bardage bois
Coût du lot bois n°2 - € HT : 153500
Bois Français : oui
Isolations biosourcées (préciser dans le descriptif technique) : non
Finitions intéreures biosourcées ou géosourcées (préciser dans le descriptif technique) : non

Structure bois du bâtiment

Structure verticale :

ProduitEssenceProvenances (lieu de croissance du bois)Traitements de préservationMarque et certification produit
Poteau poutreDouglasNouvelle-AquitaineTraitement Classe 2 (trempage)

Structure horizontale :

ProduitEssenceProvenances (lieu de croissance du bois)Traitements de préservationMarque et certification produit
Plancher béton

Charpente :

ProduitEssenceProvenances (lieu de croissance du bois)Traitements de préservationMarque et certification produit
Charpente bois lamellé-colléDouglasNouvelle-AquitaineTraitement Classe 2 (trempage)

Revêtement bois extérieur

Revêtement bois ou dérivés :

ProduitEssenceProvenances (lieu de croissance du bois)Marque et certification produitFinitionTraitements de préservation
Panneau bois massif contrecolléDouglasNouvelle-AquitaineSaturateurJe n'ai pas l'information

Autre revêtement métallique :

Produit
Acier

Menuiserie intérieure et extérieure

Isolation des murs

Isolation intérieure des murs :

Produit
Laine de verre
Epaisseur (mm) Isolation intérieure des murs : 145

Isolation de la toiture

Epaisseur (mm) Isolation intérieure de la toiture : 150

Approche environnementale : La démarche environnementale du projet repose sur deux principes essentiels : 1) le circuit court dans la provenance du bois et la fabrication des éléments de charpente et de façade, permettant de garantir un faible impact environnemental, tout en soutenant une filière locale déjà structurée et qui se développe ; les bois proviennent de Vendée et du Limousin, pour un chantier réalisé à Bordeaux 2) l'utilisation du bois, correspondant à un total de 40 arbres gérés durablement, a permis d'éviter le rejet de 30 tonnes de CO2 comparé à une réalisation traditionnelle en métal.

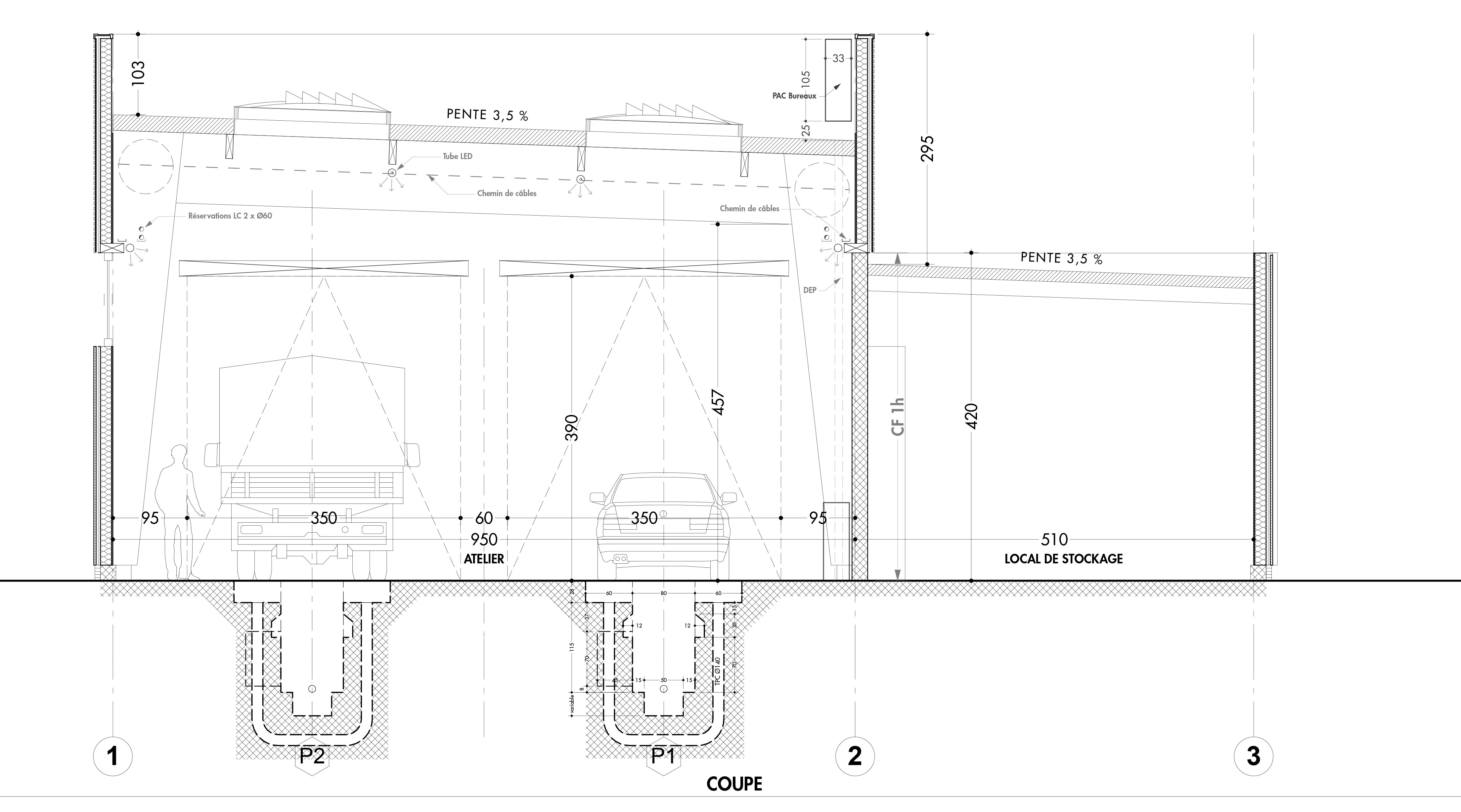
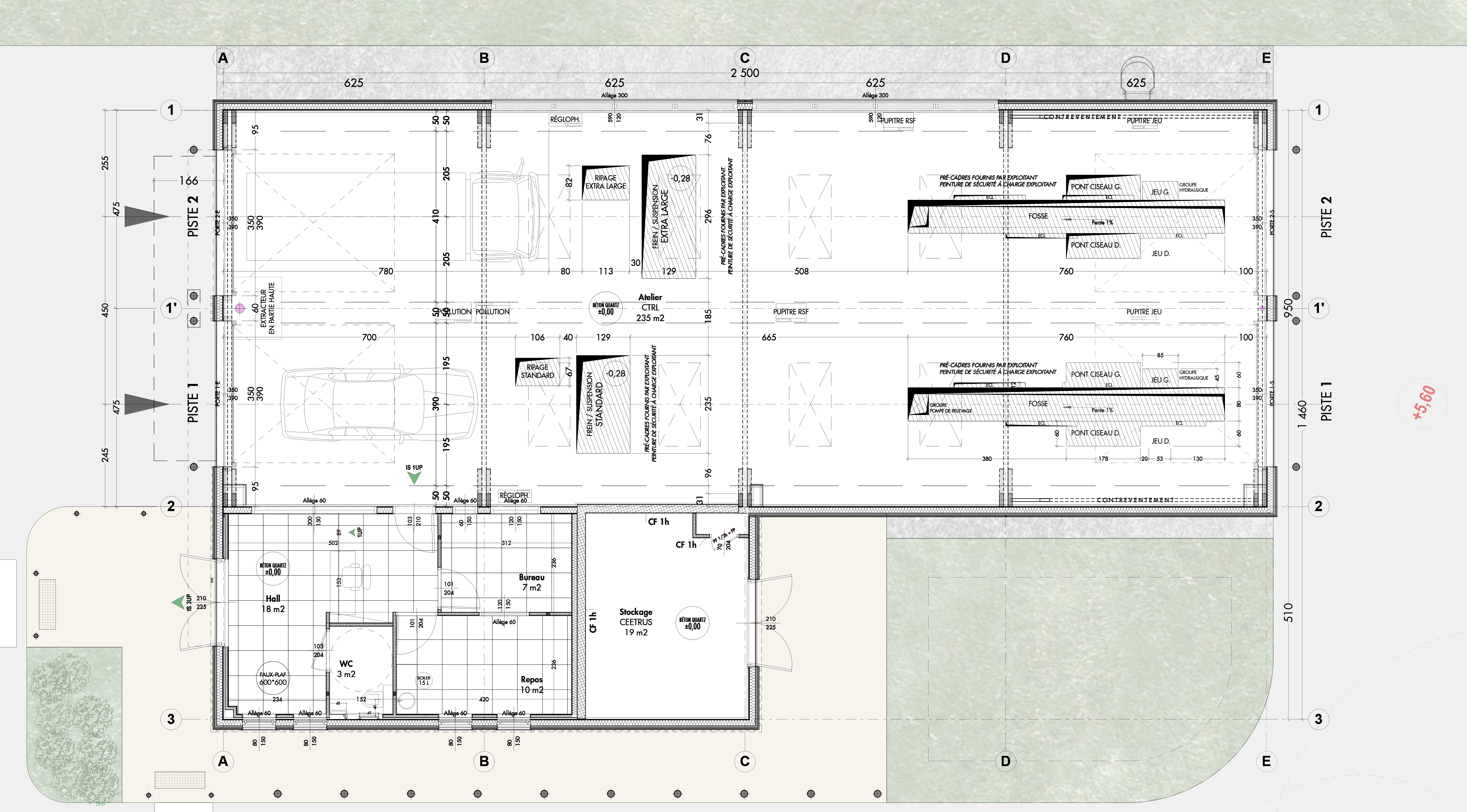
Descriptif technique : Le bâtiment se compose d’une charpente bois composée de portiques lamellé-collés en Douglas. Les façades du bâtiment, également en Douglas, ont été préfabriquées en Gironde suivant le process de «off-site building» et assemblées sur site par panneaux successifs, en cinq jours. Sur les faces intérieures de l’atelier, des panneaux de bois résistants à un niveau hygrométrique élévé ont été mis en œuvre et laissés apparents, offrant la garantie d’une bonne tenue dans le temps, compte-tenu que l’essentiel de l’activité de l’atelier se déroule «portes ouvertes».

Chauffage au Bois : non
Certifications, labels et marques bâtiment : Aucun,Bois de France
Données déclaratives

Acteurs du projet

Maître d'ouvrage (1)

Maître d'ouvrage - Promoteurs immobiliers privés

NHOOD FRANCE (33)

Etudes et ingénieries (4)

Maître d'œuvre - Architecte mandataire

SIGN' architecture selarl (33)

Bureau d'études structure bois

CETAB (33)

Autre intervenant de la construction - bureau de contrôle, AMO, BIM...

INGEWORKS SOLUTIONS (85)
Bureau Veritas Construction (33)

Entreprises des lots bois (3)

Charpentier

Meison Construction (33)

Menuisier

Meison Construction (33)

Constructeur bois

Meison Construction (33)

Fournisseurs du bois (1)

Scierie

Art Bois - UMB (33)




* : L'entreprise n'est plus active
Retour à la liste