Réhabiliter un équipement
Réhabiliter un équipement

EXTENSION DE L'ECOLE MATERNELLE EMILIE CARLES A INGRE

45140 INGRE - Loiret - Centre-Val de Loire
Lauréat régional

BÂTIMENT / LOGEMENT

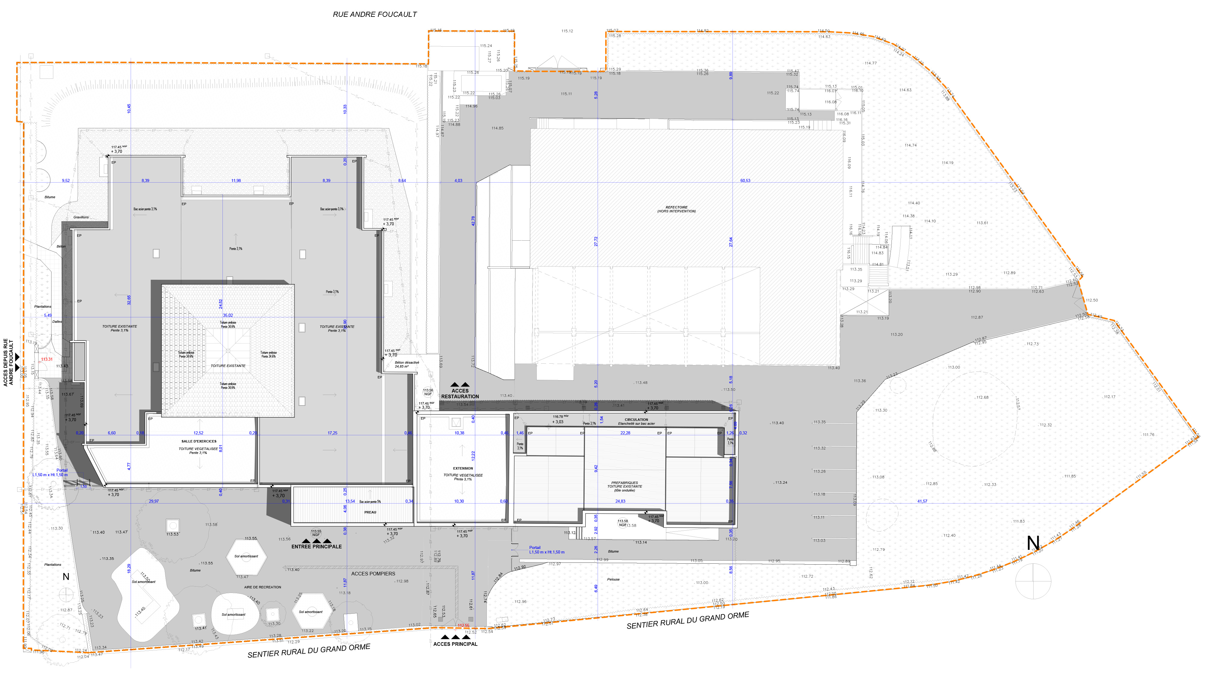
L’école maternelle E.Carles présentait de nombreux dysfonctionnements: scindée en deux bâtiments, elle possède 3 classes dans des préfabriqués indépendants et séparés par une voie véhicule. Notre projet vise à redonner une cohérence à l'école, et améliorer le quotidien des utilisateurs Dans l'existant, un travail de restructuration a permis de redéfinir un hall d'entrée principal, jusqu'alors inexistant. L’extension créée accueille un dortoir d’une capacité de 60 enfants, ainsi qu’une salle d’exercices supplémentaire. Elle relie le bâtiment principal aux salles de classe des préfabriqués.

Catégorie Bâtiment / logement
Numéro de projet53
Adresse du projet 10 rue André Foucault
45140 INGRE
Date de candidature14/02/2018
Récompense2ème prix

Bâtiment / logement

Détail projet

Typologie de bâtiment : Extension / surélévation
Type de bâtiment : Enseignement ou éducation
Année de livraison : 2016-2017
Surface totale du bâtiment en m² : 320
Coût total en € HT (hors foncier, hors VRD, hors honoraires) : 680000
Lot bois n°1 concerné : Charpente bois
Lot bois n°2 concerné : Aucun
Bois Français : non

Structure bois du bâtiment

Structure verticale :

ProduitEssenceProvenances (lieu de croissance du bois)Traitements de préservationMarque et certification produit
Panneau ossature boisSapin pectinéTraitement Classe 2 (trempage)

Structure horizontale :

ProduitEssenceProvenances (lieu de croissance du bois)Traitements de préservationMarque et certification produit
Plancher béton

Charpente :

ProduitEssenceProvenances (lieu de croissance du bois)Traitements de préservationMarque et certification produit
Charpente bois lamellé-collé

Revêtement bois extérieur

Revêtement bois ou dérivés :

ProduitEssenceProvenances (lieu de croissance du bois)Marque et certification produitFinitionTraitements de préservation
Lame bois massifMélèzeEuropeAucune finitionJe n'ai pas l'information

Menuiserie intérieure et extérieure

Isolation des murs

Isolation entre-montant des murs :

Produit
Epaisseur (mm) Isolation entre-montant des murs : 200

Isolation extérieure des murs :

Produit
Laine de verre
Epaisseur (mm) Isolation extérieure des murs : 120

Isolation de la toiture

Epaisseur (mm) Isolation entre-montant de la toiture : 100

Approche environnementale : Une attention particulière a été portée sur le bois. A ce titre, l'ouvrage favorise l'utilisation d'un mélèze issu d'une production forestière durable. L'isolation est réalisée en ouate de cellulose, toujours dans la même démarche. Enfin, la toiture a été végétalisée afin d'augmenter l'inertie du bâtiment. L'agence a souhaité favoriser des solutions de protections solaires passives avec la création de cadres dont le dessin est façonné par le bardage. La profondeur de ces cadres en bois permet une protection solaire suffisante sur les façades les plus exposées à l'ensoleillement.

Descriptif technique : L’extension est réalisée sur un système constructif préfabriqué en bois (ossature et bardage bois). Le choix de ce système a été retenu par la particularité de ce chantier. Ce dernier a été entièrement planifié durant les vacances scolaires, ce qui a demandé à l'équipe de travailler sur des solutions rapportées. Le choix du bois paraissait dès lors pertinent.

Chauffage au Bois : non
Données déclaratives

Acteurs du projet

Maître d'ouvrage (1)

Maître d'ouvrage - État ou collectivité (locale et territ)

Commune d'Ingré (45)

Etudes et ingénieries (2)

Maître d'œuvre - Architecte mandataire

Mkh Architecte (44)

Economiste

Simonneau SARL (45)

Entreprises des lots bois (1)

Charpentier

Cogecem (45)




* : L'entreprise n'est plus active
Retour à la liste