Réhabiliter un logement
Réhabiliter un logement

Locaux de l'agence Point Architecture

64140 LONS - Pyrénées Atlantiques - Nouvelle-Aquitaine

BÂTIMENT / LOGEMENT

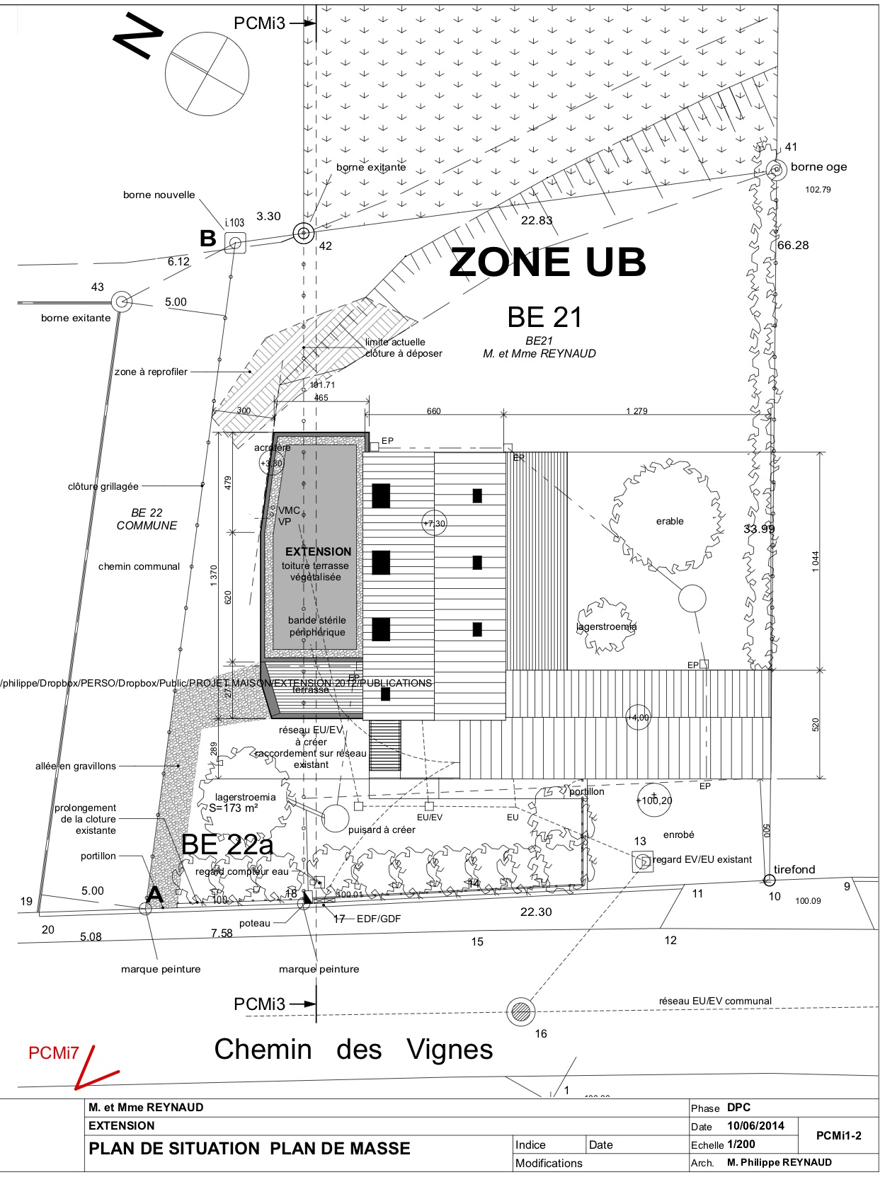
La nécessité d’agrandir son logement en optimisant le potentiel du terrain, tout en limitant le coût et les inconvéniants d’un changement de maison, sont les raisons pour lesquelles le projet a vu jour. Cet agrandissement a pour usage un espace de travail indépendant.

Catégorie Bâtiment / logement
Numéro de projet47
Date de candidature13/02/2018

Bâtiment / logement

Détail projet

Typologie de bâtiment : Extension / surélévation
Type de bâtiment : Logement individuel inférieur 120 m²
Année de livraison : 2016
Surface totale du bâtiment en m² : 50
Coût total en € HT (hors foncier, hors VRD, hors honoraires) : 50000
Lot bois n°1 concerné : Charpente bois
Coût du lot bois n°1 - € HT : 15000
Lot bois n°2 concerné : Aucun
Bois Français : non

Structure bois du bâtiment

Structure verticale :

ProduitEssenceProvenances (lieu de croissance du bois)Traitements de préservationMarque et certification produit
Panneau ossature boisEuropeTraitement Classe 2 (trempage)

Structure horizontale :

ProduitEssenceProvenances (lieu de croissance du bois)Traitements de préservationMarque et certification produit
Solivage traditionnelÉpicéa communEuropeAucun traitement

Charpente :

ProduitEssenceProvenances (lieu de croissance du bois)Traitements de préservationMarque et certification produit
Caisson de toitureÉpicéa communEuropeAucun traitement

Revêtement bois extérieur

Revêtement bois ou dérivés :

ProduitEssenceProvenances (lieu de croissance du bois)Marque et certification produitFinitionTraitements de préservation
Lame bois massifMélèzeEurope

Menuiserie intérieure et extérieure

Isolation des murs

Isolation entre-montant des murs :

Produit
Laine de bois souple
Epaisseur (mm) Isolation entre-montant des murs : 150

Isolation de la toiture

Epaisseur (mm) Isolation extérieure de la toiture : 140

Approche environnementale : Il s'agit d'une construction en bois, habillée de bardages bois et panneaux en fibre-ciment. Ce mode de construction permet de réduire le temps et les nuisances du chantier et augmente le confort acoustique et thermique.

Descriptif technique : Le projet se compose de murs en ossature bois, de contreventement en panneaux de fibre-ciment et d'une isolation en laine de bois dense pour améliorer l'isolation phonique. La laine de roche est placée sous étanchéité. Les panneaux multi-plis en épicéa de structure ont été laissés apparent.

Chauffage au Bois : non
Données déclaratives

Acteurs du projet

Etudes et ingénieries (1)

Maître d'œuvre - Architecte mandataire

POINT ARCHITECTURE (64)

Entreprises des lots bois (1)

Charpentier

PYRENEES CHARPENTES (65)




* : L'entreprise n'est plus active
Retour à la liste