Habiter une maison
Habiter une maison

Maison G2

44201 - Loire Atlantique - Pays de la Loire

BÂTIMENT / LOGEMENT

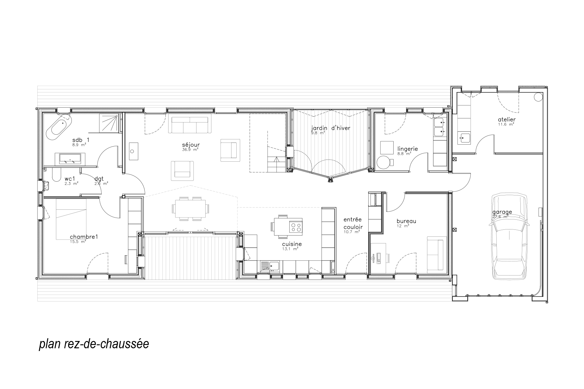
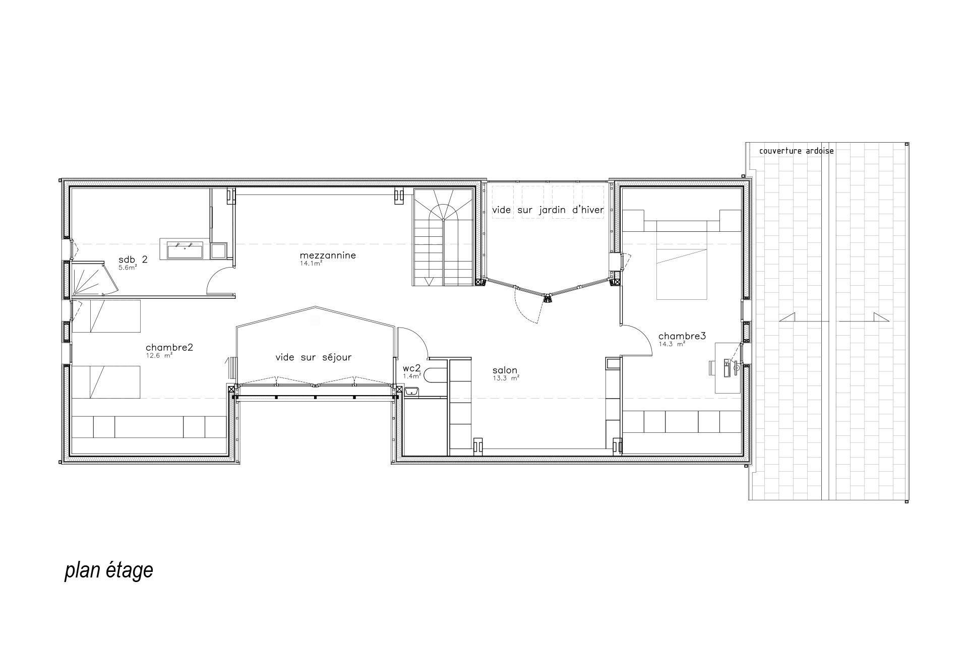
Je définits avec le maitre d'ouvrage les usages du logement. Ils se concrétisent par un espace ouvert et fluide au rez-de-chaussée pour vivre et un espace modulable à l’étage pour recevoir. La physionomie simple de la maison est guidée par les règlements d'urbanisme, j’y creuse 2 volumes, qui sont 2 liens entre les pièces du logement. 2 interfaces entre elles et l’extérieur qui prennent la forme d’une terrasse au sud et d’un jardin d’hiver au nord

Catégorie Bâtiment / logement
Numéro de projet4695
Date de candidature06/04/2020

Bâtiment / logement

Détail projet

Typologie de bâtiment : Neuf
Type de bâtiment : Logement individuel supérieur à 120 m²
Année de livraison : 2014
Surface totale du bâtiment en m² : 167
Coût total en € HT (hors foncier, hors VRD, hors honoraires) : 350000
Coût du lot bois n°1 - € HT : 81000
Coût du lot bois n°2 - € HT : 50000
Bois Français : oui
Isolations biosourcées (préciser dans le descriptif technique) : oui
Finitions intéreures biosourcées ou géosourcées (préciser dans le descriptif technique) : oui

Structure bois du bâtiment

Structure verticale :

ProduitEssenceProvenances (lieu de croissance du bois)Traitements de préservationMarque et certification produit
Panneau ossature boisDouglasTraitement Classe 3a (trempage)

Structure horizontale :

ProduitEssenceProvenances (lieu de croissance du bois)Traitements de préservationMarque et certification produit
Solivage traditionnelDouglas

Charpente :

ProduitEssenceProvenances (lieu de croissance du bois)Traitements de préservationMarque et certification produit
Caisson de toitureDouglas

Revêtement bois extérieur

Revêtement bois ou dérivés :

ProduitEssenceProvenances (lieu de croissance du bois)Marque et certification produitFinitionTraitements de préservation
Lame bois massifDouglasSaturateur

Menuiserie intérieure et extérieure

Menuiserie extérieure :

ProduitEssenceProvenances (lieu de croissance du bois)Marque et certification produitFinition
Menuiserie mixteSapin pectinéPeinture

Isolation des murs

Isolation intérieure des murs :

Produit
Laine de verre
Epaisseur (mm) Isolation intérieure des murs : 60

Isolation entre-montant des murs :

Produit
Epaisseur (mm) Isolation entre-montant des murs : 138

Isolation extérieure des murs :

Produit
Fibre de bois (Panneaux)
Epaisseur (mm) Isolation extérieure des murs : 60

Isolation de la toiture

Epaisseur (mm) Isolation intérieure de la toiture : 60
Epaisseur (mm) Isolation entre-montant de la toiture : 240
Epaisseur (mm) Isolation extérieure de la toiture : 60

Approche environnementale : Le maitre d'ouvrage exprime une volonté forte de vivre dans une maison respectueuse de l’environnement. Je développe le projet suivant une conception bioclimatique avec une performance énergétique BBC (bâtiment basse consommation) et leur propose la mise en oeuvre de matériaux bio sourcés (ouate de cellulose, fibre de bois, enduit chaux

Descriptif technique : A une isolation performante s'ajoute des moyens de production d'énergie renouvelable. Un poêle à bois pour chauffer les pièces de vie, des panneaux solaires pour l'eau chaude sanitaire, une vmc double flux pour limiter les déperditions dues à la ventilation.

Chauffage au Bois : oui
Appareil de chauffage au bois : Poële/insert
Données déclaratives

Acteurs du projet

Maître d'ouvrage (1)

Maître d'ouvrage - Particuliers

particulier (x)

Etudes et ingénieries (1)

Maître d'œuvre - Architecte mandataire

Yg Architecte (44)

Entreprises des lots bois (2)

Charpentier

Atelier Isac (44)

Menuisier

Atelier Isac (44)




* : L'entreprise n'est plus active
Retour à la liste