Aménager
Aménager

Saint Helene

33480 Saint Helene - Gironde - Nouvelle-Aquitaine

AMÉNAGEMENT BOIS

Aménagement intérieur

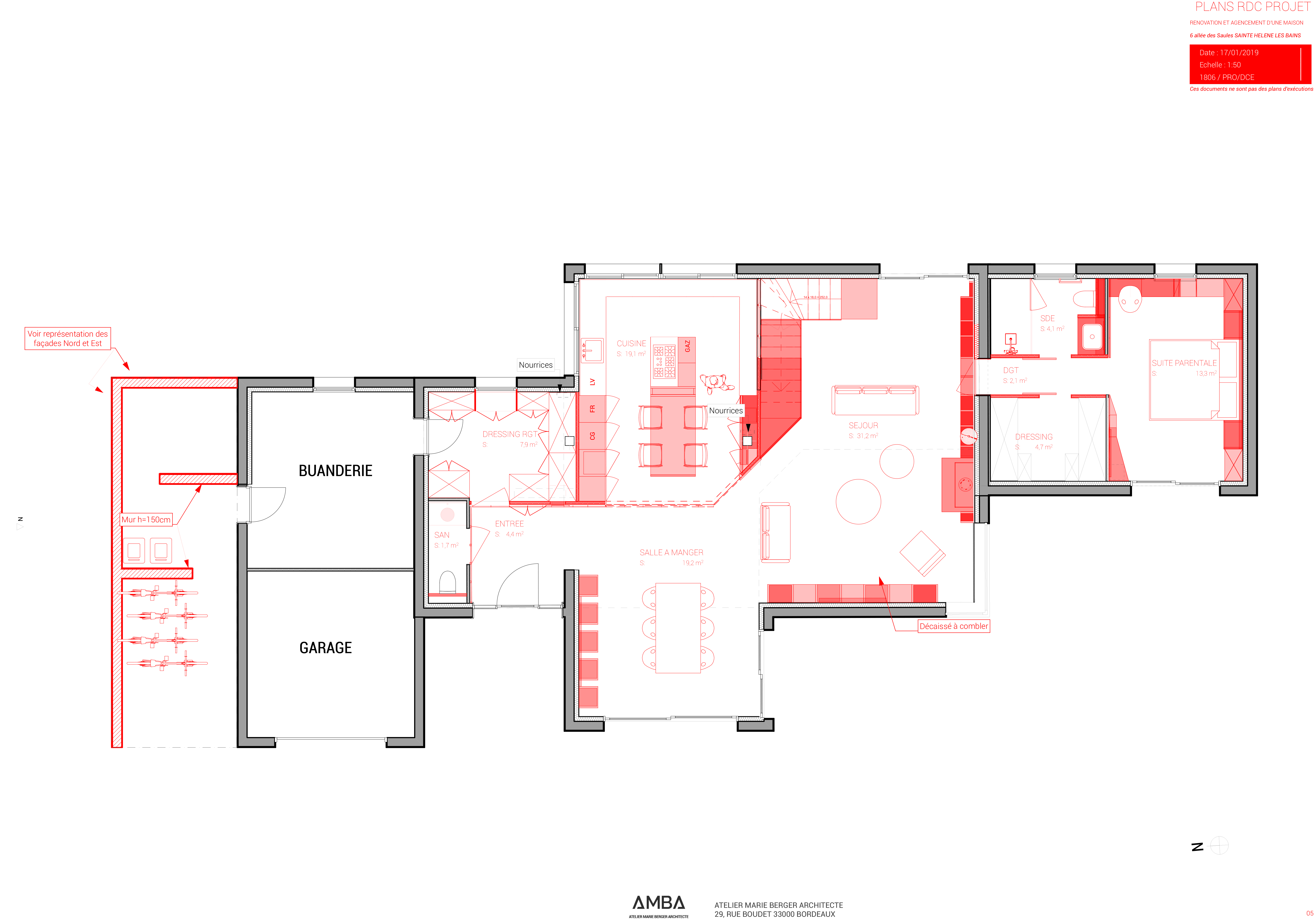
Rénovation et agencement d’une maison des années 90 : la maison existante était morcelée de pièces semi-ouvertes avec des différences de hauteurs et de niveaux. Le projet était de redonner une unité à cette maison par le travail d'un aménagement continu pour créér des pièces distinctes par leur fonctionnalité mais toutes liées les unes aux autres par l'agencement bois.

Catégorie aménagement bois, aménagement intérieur
Numéro de projet4652
Adresse du projet 6 Allée des Saules
33480 Saint Helene
Date de candidature02/03/2020

aménagement bois

typologie : Logement individuel supérieur à 120 m²
Coût total en € HT : 235500

aménagement intérieur

Année de réalisation : 2019
Coût total Aménagement Intérieur en € HT : 235500
Coût lots bois en € HT : 100000
Surface aménagée en m² : 130

Liste des produits :

ProduitEssenceProvenances (lieu de croissance du bois)Marque et certification produitFinition
MobilierChêne
Bois Français : oui

Approche environnementale : Travail sur le bois pour ramener une ambiance et une chaleur

Descriptif technique de l'aménagement : Agencement en bois : ossature panneau bois MDF plaqué Chêne

Données déclaratives

Acteurs du projet

Maître d'ouvrage (1)

Maître d'ouvrage - Particuliers

particulier (x)

Etudes et ingénieries (2)

Maître d'œuvre - Architecte mandataire

ATELIER MARIE BERGER ARCHITECTE (AMBA) (33) *

Economiste

ATELIER MARIE BERGER ARCHITECTE (AMBA) (33) *

Entreprises des lots bois (2)

Menuisier

CARDOIT MENUISERIES AGENCEMENTS - CMA (33)
CREATION REALISATION ESPACE ACCUEIL BOIS (BOIS CONCEPT) (33)




* : L'entreprise n'est plus active
Retour à la liste