Travailler – accueillir
Travailler – accueillir

Venoy - Bâtiment agricole

89290 Venoy - Yonne - Bourgogne-Franche-Comté

BÂTIMENT / LOGEMENT

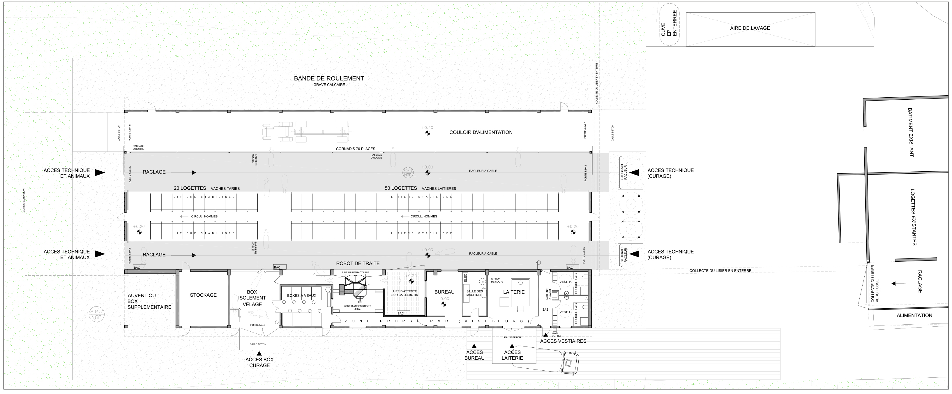
Les enjeux de conception du bâtiment agricole Les chambres d'agriculture produisent des fiches techniques de conception par type d'élevage qui propose a chaque fois une base commune de recommandations (gabarit et dimensionnement de chaque élément) sur les surfaces nécessaire par animal, la ventilation, la luminosité, etc. A partir de cette base, nous avons donc définis avec les responsables des établissements les principes pour un bâtiment efficient qui prend en compte le bien être. > Espace de vie des animaux : L’accueil des animaux répond à la vision que l'éleveur à de son métier. Chaque choix qu'il fera induit une série d'autres choix qui peuvent avoir tendance à techniciser les processus et palier les répercutions sur le bien être animal. > Ventilation/éclairage Les besoins, même pour des élevages taille moyenne induisent la construction de bâtiment de plus en plus grands. Pour produire une ambiance intérieure saine, un travail architectural précis sur la géométrie du bâti doit être réalisé sur la ventilation et la luminosité générée. > Matériaux sains Les choix de matériaux naturels vont aussi dans l'idée qu'une architecture naturelle contribue au bien être de l'animal et de l'éleveur, tout en réduisant l'impact environnemental du projet, l'utilisation de sous produit issue de l'exploitation (paille, terre, bois) et favorise l'autoconstruction. La question de la reproductibilité technique et financière des principes énoncés se pose à ce stade : qui fait quoi / autoconstruction / facilité d'approche / appropriable / question de la dimension.

Catégorie Bâtiment / logement
Numéro de projet4606
Adresse du projet Lycée Agricole La Brosse
89290 Venoy
Date de candidature27/02/2020

Bâtiment / logement

Détail projet

Typologie de bâtiment : Neuf
Type de bâtiment : Agriculture
Année de livraison : 2019
Surface totale du bâtiment en m² : 1400
Coût total en € HT (hors foncier, hors VRD, hors honoraires) : 1000000
Lot bois n°1 concerné : Charpente bois
Volume lot bois n°1 - m³ : 71,5
Coût du lot bois n°1 - € HT : 75630
Lot bois n°2 concerné : Bardage bois
Volume lot bois n°2 - m³ : 135
Coût du lot bois n°2 - € HT : 59000
Bois Français : oui
Isolations biosourcées (préciser dans le descriptif technique) : non
Finitions intéreures biosourcées ou géosourcées (préciser dans le descriptif technique) : non

Structure bois du bâtiment

Structure verticale :

ProduitEssenceProvenances (lieu de croissance du bois)Traitements de préservationMarque et certification produit
Poteau poutreChêneBourgogne-Franche-ComtéAucun traitement

Structure horizontale :

ProduitEssenceProvenances (lieu de croissance du bois)Traitements de préservationMarque et certification produit
Solivage traditionnel

Charpente :

ProduitEssenceProvenances (lieu de croissance du bois)Traitements de préservationMarque et certification produit
Charpente bois lamellé-colléTempéré

Revêtement bois extérieur

Revêtement bois ou dérivés :

ProduitEssenceProvenances (lieu de croissance du bois)Marque et certification produitFinitionTraitements de préservation
Lame bois massifDouglasBourgogne-Franche-ComtéAucune finitionAucun traitement

Menuiserie intérieure et extérieure

Menuiserie extérieure :

ProduitEssenceProvenances (lieu de croissance du bois)Marque et certification produitFinition
Menuiserie bois

Isolation des murs

Isolation de la toiture

Approche environnementale : Construction écologique pour le confort des bâtiments d'élevage > mise en œuvre de bâtiments innovants d’élevage de ruminants (bovins, ovins, caprins) en particulier dans les domaines suivants : les conditions de logement des animaux (aération-ventilation-espace de vie), les conditions de travail des éleveurs, la maîtrise des pollutions animales, l'insertion paysagère, > intégration de matériaux naturels et adaptation aux contraintes d'exploitation (lavage, robustesse, confort thermique) tel que le pisé, le bois ou la paille > phytoépuration pour les eaux blanches + vertes (bouses salle de traite) – eaux brunes vont dans une fosse pour épandage – une réflexion qui n'est pas encore trop démocratisée et que nous cherchons à développer

Descriptif technique : Prise en compte des besoins de l'animal et de l’éleveur > Organisation spatiale pour l'intégration des prescriptions de l'ergonome afin de limiter le stress, les blessures et les douleurs > La réflexion doit aussi intégrer dans la conception la pénibilité du travail de l'éleveur. Il faut lui permettre d'accomplir ses tâches dans les meilleurs conditions : limiter les troubles musculo-squelettique, liés par exemple au travail de la traite en milieu humide composé de mouvements répétitifs pouvant être traumatisant. > vérification de l'environnement électromagnétique par un géobiologue, en effet nature du sol (massif karstique ? courants d’eau souterrains et failles géologiques), antenne relais, transformateur, ligne à haute tension, compteur électrique, éolienne peuvent avoir un impact en bien comme en mal sur la santé des animaux. L'objet est de traquer les courants électriques et électromagnétiques qui envoie des « informations négatives » que peuvent ressentir les animaux dans les bâtiments. > Travail en étroite collaboration avec bureau de contrôle pour le respect des réglementations en vigueur et l'adaptation des techniques de mise en œuvre. A Venoy, les missions spécifiques Mission HYSa du bureau de contrôle relative à l'hygiène et à la santé dans les bâtiments autres que d'habitation. PEFC (Gestion forestière durable)

Chauffage au Bois : non
Données déclaratives

Acteurs du projet

Maître d'ouvrage (1)

Maître d'ouvrage - État ou collectivité (locale et territ)

Region Bourgogne Franche-Comté (25)

Etudes et ingénieries (5)

Maître d'œuvre - Architecte mandataire

LANDFABRIK (75)

Bureau d'études structure bois

CBS CBT (94)

Bureau d'études environnement

AQUASOL (35)

Designer / architecte d'intérieur

abilis (75)

Paysagiste

LANDFABRIK ARCHITECTES ASSOCIES & PAYSAGISTES (38)

Entreprises des lots bois (2)

Charpentier

A.JAMES (SAEA) (50)

Autre lot de la construction (en lien avec le bois)

LIFTEAM (73)




* : L'entreprise n'est plus active
Retour à la liste