Travailler – accueillir

SIEGE SOCIAL EXPRESS

28170 TREMBLAY LES VILLAGES - Eure et Loir - Centre-Val de Loire

BÂTIMENT / LOGEMENT

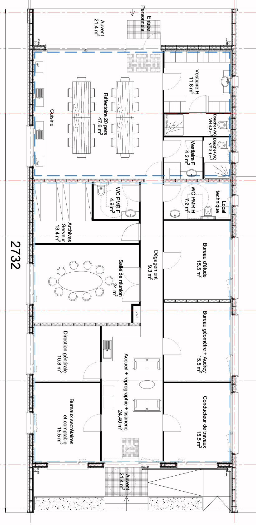
En réponse à une simple demande de dépôt de PC pour des modules préfabriqués de bureaux standards nous avons conçu un projet sur-mesure et porteur d'une identité visuelle forte pour créer le siège et les locaux sociaux d'une PME de travaux publics. L'ossature bois nous a permis de répondre aux enjeux économiques et calendaires du projet (4 mois de travaux !) La conception intérieure des locaux permet la modularité des cloisons sans démolir les plafonds acoustiques ni les sols en carrelage.

Catégorie Bâtiment / logement
Numéro de projet4592
Adresse du projet 28170 TREMBLAY LES VILLAGES
Date de candidature27/02/2020

Bâtiment / logement

Détail projet

Typologie de bâtiment : Neuf
Type de bâtiment : Lieu d'entreprise
Année de livraison : 2018
Surface totale du bâtiment en m² : 240
Bois Français : oui
Isolations biosourcées (préciser dans le descriptif technique) : oui
Finitions intéreures biosourcées ou géosourcées (préciser dans le descriptif technique) : oui

Structure bois du bâtiment

Structure verticale :

ProduitEssenceProvenances (lieu de croissance du bois)Traitements de préservationMarque et certification produit
Panneau ossature boisSapin pectinéEuropeTraitement Classe 2 (trempage)

Structure horizontale :

ProduitEssenceProvenances (lieu de croissance du bois)Traitements de préservationMarque et certification produit
Plancher béton

Charpente :

ProduitEssenceProvenances (lieu de croissance du bois)Traitements de préservationMarque et certification produit
Charpente traditionnelleSapin pectinéEuropeTraitement Classe 2 (trempage)

Revêtement bois extérieur

Revêtement bois ou dérivés :

ProduitEssenceProvenances (lieu de croissance du bois)Marque et certification produitFinitionTraitements de préservation
Lame bois massifDouglasFranceAucune finitionAucun traitement

Autre revêtement métallique :

Produit
Acier

Menuiserie intérieure et extérieure

Isolation des murs

Isolation entre-montant des murs :

Produit
Fibre de bois (Panneaux)
Epaisseur (mm) Isolation entre-montant des murs : 225

Isolation extérieure des murs :

Produit
Fibre de bois (Panneaux)
Epaisseur (mm) Isolation extérieure des murs : 35

Isolation de la toiture

Epaisseur (mm) Isolation intérieure de la toiture : 400

Approche environnementale : A l'exception des fondations et du plancher bas toute l'ossature est réalisée en bois massif tandis que l'isolation est assurée par des matériaux recyclés ou bio-sourcés. Le confort thermique et visuel est complété par des brise-soleil orientables encastrés dans le bardage au droit des baies SUD. L'ambiance acoustique est soignée grâce à un faux-plafond absorbant en panneaux de fibres de bois. De larges débords de toit à l'EST et à l'OUEST protègent les points d'accès au bâtiments, les bardages bois et offrent des espaces extérieurs abrités aux employés et visiteurs.

Chauffage au Bois : non
Données déclaratives

Acteurs du projet

Maître d'ouvrage (1)

Maître d'ouvrage - Industriels - commerçants - entreprise

SCI Modere (28)

Etudes et ingénieries (1)

Maître d'œuvre - Architecte mandataire

SCOP-ARL B-A-Bo (28)

Entreprises des lots bois (1)

Charpentier

ENTREPRISE DE CHARPENTE PELTIER (28)




* : L'entreprise n'est plus active
Retour à la liste