Travailler – accueillir
Travailler – accueillir

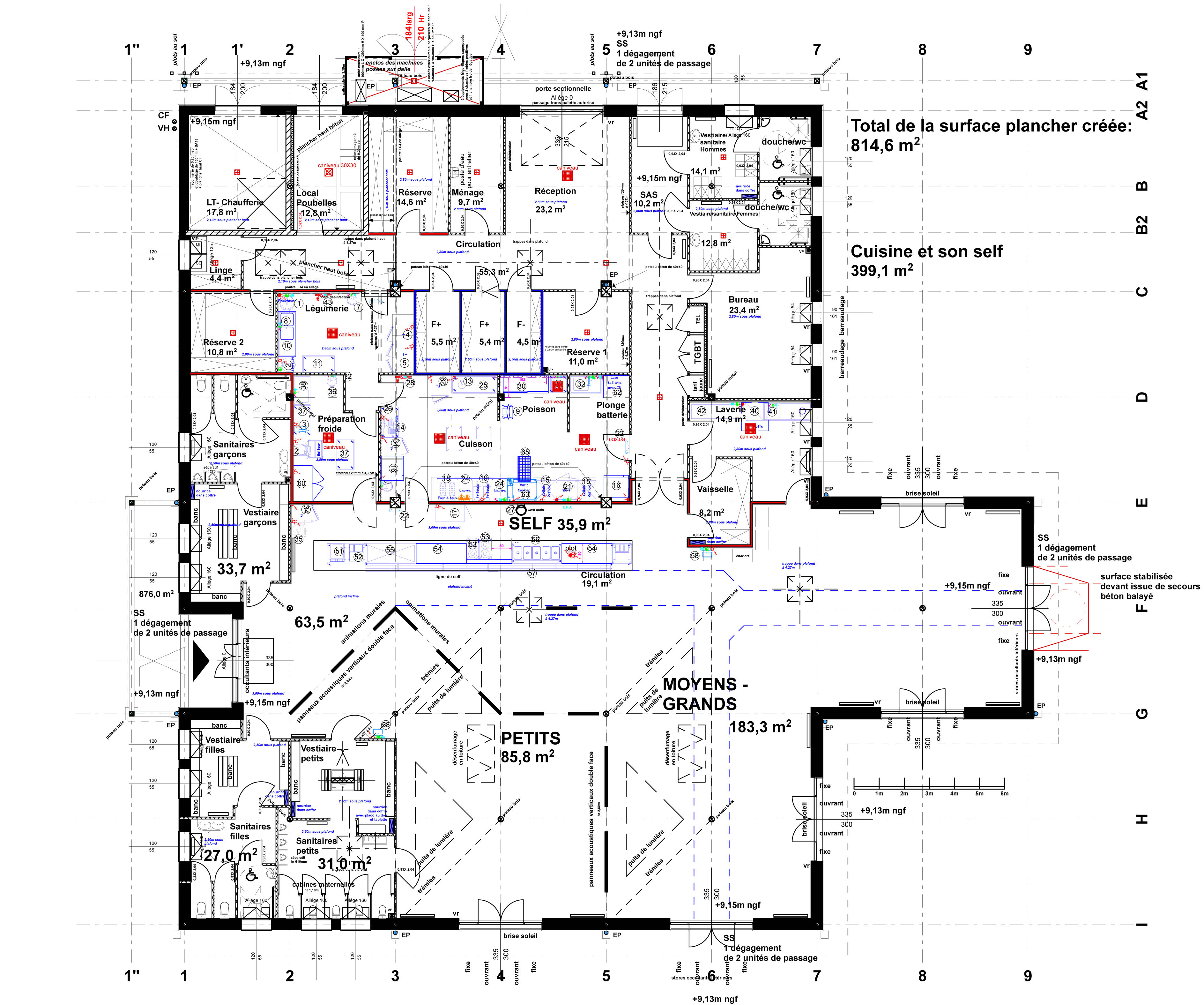
Restaurant scolaire d'Alizay

27460 ALIZAY - Eure - Normandie

BÂTIMENT / LOGEMENT

Il s'agissait de répondre par un équipement neuf au besoin de fabrication de repas pour 250 rationnaires à Alizay. La cuisine et tout son fonctionnement ont été associés à une ligne de self de distribution des plats destinée aux élèves du primaire à la maternelle et aux adultes. Le bâtiment de plain-pied à Rdch est une construction à ossature bois, couverte à l'aide de sheds à 2 pans égaux orientés à 35° en ardoise. L'équipement est à deux fonctions, les locaux accessibles au public d'un côté, les locaux de service, de fabrication des repas et de conservation des denrées de l'autre.

Catégorie Bâtiment / logement
Numéro de projet4531
Adresse du projet 2 rue du 1er mai
27460 ALIZAY
Date de candidature26/02/2020

Bâtiment / logement

Détail projet

Typologie de bâtiment : Neuf
Type de bâtiment : Restauration
Année de livraison : 2018
Surface totale du bâtiment en m² : 814
Coût total en € HT (hors foncier, hors VRD, hors honoraires) : 1430753
Lot bois n°1 concerné : ossature bois
Volume lot bois n°1 - m³ : 224
Coût du lot bois n°1 - € HT : 133070
Lot bois n°2 concerné : Charpente bois
Volume lot bois n°2 - m³ : 126
Coût du lot bois n°2 - € HT : 162641
Bois Français : oui
Isolations biosourcées (préciser dans le descriptif technique) : non
Finitions intéreures biosourcées ou géosourcées (préciser dans le descriptif technique) : non

Structure bois du bâtiment

Structure verticale :

ProduitEssenceProvenances (lieu de croissance du bois)Traitements de préservationMarque et certification produit
Panneau ossature boisTraitement Classe 2 (trempage)

Structure horizontale :

ProduitEssenceProvenances (lieu de croissance du bois)Traitements de préservationMarque et certification produit
Solivage traditionnelSapin pectinéFranceTraitement Classe 2 (trempage)

Charpente :

ProduitEssenceProvenances (lieu de croissance du bois)Traitements de préservationMarque et certification produit
Charpente bois lamellé-colléSapin pectinéFranceTraitement Classe 2 (trempage)

Revêtement bois extérieur

Revêtement bois ou dérivés :

ProduitEssenceProvenances (lieu de croissance du bois)Marque et certification produitFinitionTraitements de préservation
Lame bois massifSapin pectinéFranceLasureTraitement Classe 3a (trempage)

Menuiserie intérieure et extérieure

Menuiserie extérieure :

ProduitEssenceProvenances (lieu de croissance du bois)Marque et certification produitFinition
Menuiserie mixtePin sylvestreFranceLasure

Isolation des murs

Isolation intérieure des murs :

Produit
Laine de verre
Epaisseur (mm) Isolation intérieure des murs : 45

Isolation entre-montant des murs :

Produit
Epaisseur (mm) Isolation entre-montant des murs : 300

Isolation de la toiture

Epaisseur (mm) Isolation intérieure de la toiture : 300
Epaisseur (mm) Isolation entre-montant de la toiture : 300

Approche environnementale : Architecture bioclimatique, compacité du bâtiment, confort thermique, inertie thermique supérieure, isolation très renforcée de l'enveloppe en ouate de cellulose, protection solaire par brise-soleil orientable intégré aux ensembles menuisés. L'exposition et l'orientation du bâtiment est un critère important pour la réussite du projet en performance énergétique, puisqu'il s'agit de tirer le meilleur parti de l'ensoleillement en plaçant les façades bioclimatiques au Sud, sans masque ni ombre portée par une autre construction.

Descriptif technique : La structure principale de type poteaux/poutres en lamellé collé est contreventée par des murs fermés constitués de poutres en I et isolés par de la ouate de cellulose. Les efforts de vent sont répartis sur les façades de 5m de haut et sur les quatre poteaux béton encastrés en pied dans la zone cuisine, par une résille formée par la charpente à toitures multiples constituée de fermes d'arêtiers / noues appuyées sur les poteaux béton, les façades et sur des poteaux pendulaires.

Chauffage au Bois : non
Données déclaratives

Acteurs du projet

Maître d'ouvrage (1)

Maître d'ouvrage - État ou collectivité (locale et territ)

commune d'ALIZAY (27)

Etudes et ingénieries (5)

Maître d'œuvre - Architecte mandataire

MADAME MARIE-JOSEPHE BESCOND (27)

Maître d’œuvre - Architecte associé

Gilles AUVRAY (27) *

Bureau d'études structure bois

BUREAU D'ETUDES STRUCTURES BOIS (BESB) (27)

Bureau d'études thermique

INGECLIM (27)

Economiste

Isabelle DESMARES (27)

Entreprises des lots bois (2)

Charpentier

JC POYER CHARPENTE (27)

Constructeur bois

JC POYER CHARPENTE (27)




* : L'entreprise n'est plus active
Retour à la liste