Aménager

Mademoiselle *****

73150 Val-d'Isère - Savoie - Auvergne-Rhône-Alpes

AMÉNAGEMENT BOIS

Aménagement intérieur

"Mademoiselle est téméraire. Parfois exubérante mais toujours raffinée. Elle tire son charme de sa personnalité médiévale. Un caractère qui s’exprime par d’immenses volumes et une architecture inspirée du patrimoine savoyard. Cette maison est authentique dans les moindres détails."

Catégorie aménagement bois, aménagement intérieur
Numéro de projet4493
Adresse du projet Rue des Téléphériques
73150 Val-d'Isère
Date de candidature25/02/2020

aménagement bois

typologie : Logements de vacances ou de loisirs,Restauration,Hébergement
Coût total en € HT : 30000000

aménagement intérieur

Année de réalisation : 2019
Coût lots bois en € HT : 4500000
Volume bois m³ : 475
Surface aménagée en m² : 9500

Liste des produits :

ProduitEssenceProvenances (lieu de croissance du bois)Marque et certification produitFinition
EscalierChêneBourgogne-Franche-ComtéPeinture
LambrisChêneBourgogne-Franche-ComtéPeinture
MobilierChêneBourgogne-Franche-ComtéPeinture
Panneau massif d'agencementChêneBourgogne-Franche-ComtéPeinture
ParquetChêneBourgogne-Franche-ComtéHuile
InstallationSapin pectinéAuvergne-Rhône-AlpesPeinture
MobilierNoyerAuvergne-Rhône-AlpesPeinture
Bois Français : oui

Approche environnementale : La plupart du bois (chêne massif) ayant servi à la menuiserie et à l'agencement est issue d'une scierie située Bourgogne-Franche-Comté. L'approvisionnement est fait uniquement dans cette région. Le bois a été transformé au sein de l'atelier de CBA Montagne à Saint-Jean-d'Avelanne (38).

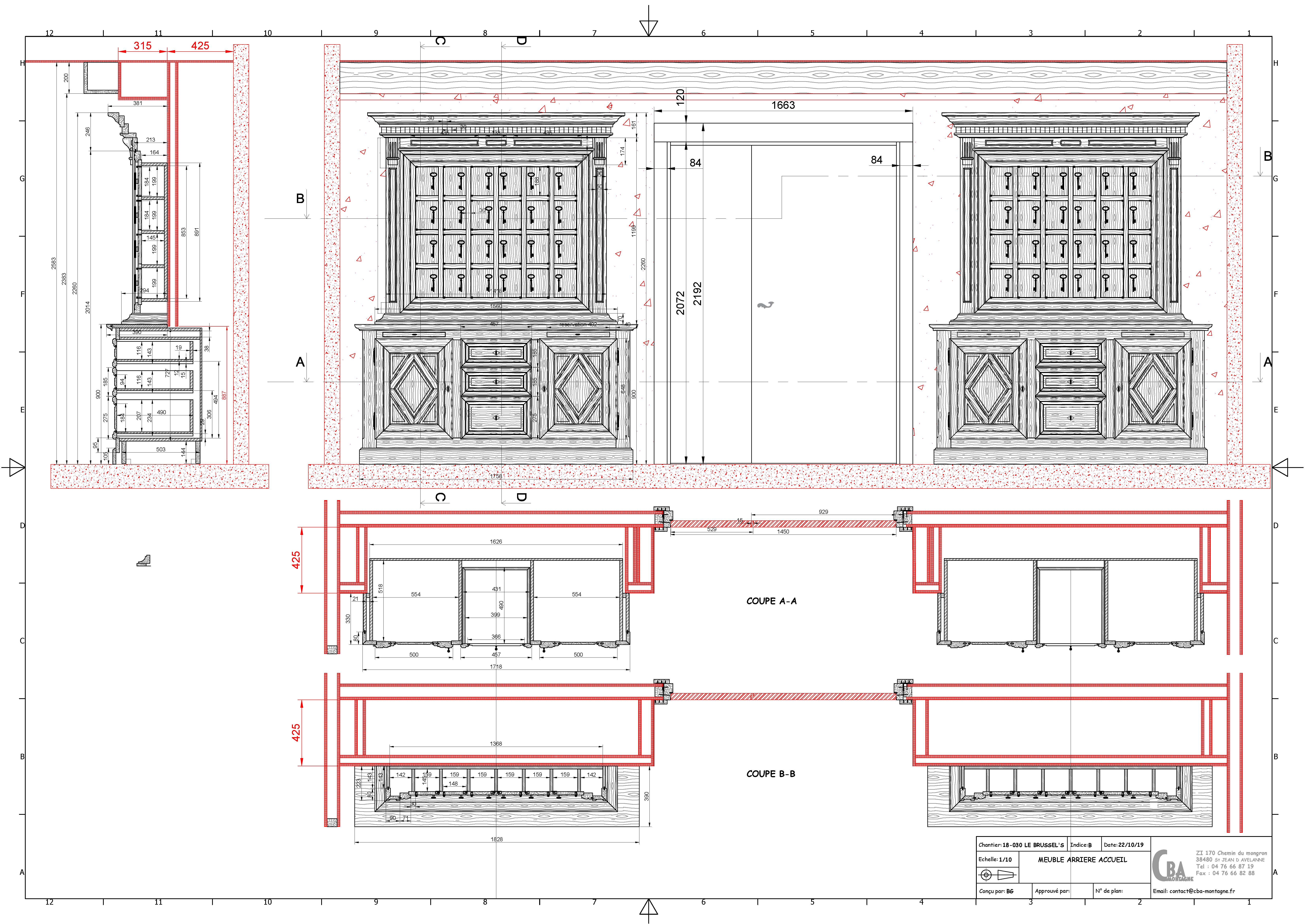
Descriptif technique de l'aménagement : Menuiserie intérieure : - Portes (palières et de communication) - Châssis vitrés - Escalier monumental - Habillages muraux et plafonds - Poutres décoratives (certaines atteignent 8 mètres de long ) - Parquet Agencement : - Chambres et Suites (dressings, meubles sous vasque, habillages baignoires, mobilier de rangement, cuisines) - Banques accueil - Bar et arrière-bar - Restaurant - Bibliothèque - Sauna en vieux bois - Skiroom (banquette, penderie , bureau accueil, vitrine )

Données déclaratives

Acteurs du projet

Maître d'ouvrage (1)

Maître d'ouvrage - Industriels - commerçants - entreprise

AIRELLES (73)

Etudes et ingénieries (3)

Maître d'œuvre - Architecte mandataire

STUDIO.ARCH (73)

Economiste

JML INTERNATIONAL (73)

Designer / architecte d'intérieur

Christophe Tollemer (83)

Entreprises des lots bois (1)

Menuisier

CBA MONTAGNE (38)

Fournisseurs du bois (1)

Scierie

SRC Parquet (71)




* : L'entreprise n'est plus active
Retour à la liste