Habiter une maison

Nanterre-Maison enfant parent

92000 Nanterre - Hauts de Seine - Ile de France
Lauréat régional

BÂTIMENT / LOGEMENT

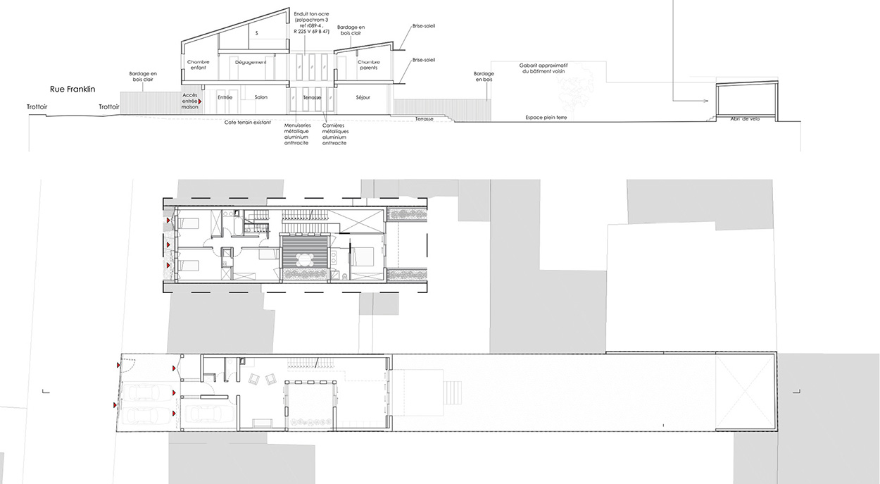
Primé au PRCB Île-de-France 2020. Maison neuve . projet de maison à patio séparant la maison des parents de la maison des enfants. parcelle étroite environ 5m de large sur 50m de long.

Catégorie Bâtiment / logement
Numéro de projet4471
Date de candidature24/02/2020

Bâtiment / logement

Détail projet

Typologie de bâtiment : Neuf
Type de bâtiment : Logement individuel supérieur à 120 m²
Année de livraison : 2016
Surface totale du bâtiment en m² : 120
Coût total en € HT (hors foncier, hors VRD, hors honoraires) : 250000
Lot bois n°1 concerné : ossature bois
Volume lot bois n°1 - m³ : 90
Coût du lot bois n°1 - € HT : 90000
Lot bois n°2 concerné : Bardage bois
Volume lot bois n°2 - m³ : 30
Coût du lot bois n°2 - € HT : 40000
Bois Français : oui
Isolations biosourcées (préciser dans le descriptif technique) : non
Finitions intéreures biosourcées ou géosourcées (préciser dans le descriptif technique) : non

Structure bois du bâtiment

Structure verticale :

ProduitEssenceProvenances (lieu de croissance du bois)Traitements de préservationMarque et certification produit
Panneau ossature boisDouglasHauts-de-FranceTraitement Classe 2 (trempage)

Structure horizontale :

ProduitEssenceProvenances (lieu de croissance du bois)Traitements de préservationMarque et certification produit
Dalle boisDouglasHauts-de-FranceTraitement Classe 2 (trempage)

Charpente :

ProduitEssenceProvenances (lieu de croissance du bois)Traitements de préservationMarque et certification produit
Charpente bois lamellé-colléDouglasHauts-de-FranceTraitement Classe 2 (trempage)

Revêtement bois extérieur

Revêtement bois ou dérivés :

ProduitEssenceProvenances (lieu de croissance du bois)Marque et certification produitFinitionTraitements de préservation
Bardeau boisDouglasHauts-de-FranceLasureTraitement Classe 2 (trempage)

Autre revêtement métallique :

Produit
Zinc

Menuiserie intérieure et extérieure

Menuiserie extérieure :

ProduitEssenceProvenances (lieu de croissance du bois)Marque et certification produitFinition
Menuiserie mixteChêneHauts-de-France

Isolation des murs

Isolation intérieure des murs :

Produit
Laine de bois souple
Epaisseur (mm) Isolation intérieure des murs : 10

Isolation entre-montant des murs :

Produit
Laine de bois souple
Epaisseur (mm) Isolation entre-montant des murs : 15

Isolation extérieure des murs :

Produit
Polyuréthane
Epaisseur (mm) Isolation extérieure des murs : 1

Isolation de la toiture

Epaisseur (mm) Isolation intérieure de la toiture : 25

Approche environnementale : Maison tout bois avec chauffage bois

Descriptif technique : Construction à ossature bois , bardage bois, menuiserie aluminium. Utilisation de l'héliodon pour déterminer les volumes urbains des deux partie de maison

Chauffage au Bois : oui
Appareil de chauffage au bois : Poële/insert
Données déclaratives

Acteurs du projet

Maître d'ouvrage (1)

Maître d'ouvrage - Particuliers

particulier (x)

Etudes et ingénieries (1)

Maître d'œuvre - Architecte mandataire

RESET STUDIO (75)




* : L'entreprise n'est plus active
Retour à la liste