Habiter une maison
Habiter une maison

La maison dans la pente

74200 Le Lyaud - Haute Savoie - Auvergne-Rhône-Alpes

BÂTIMENT / LOGEMENT

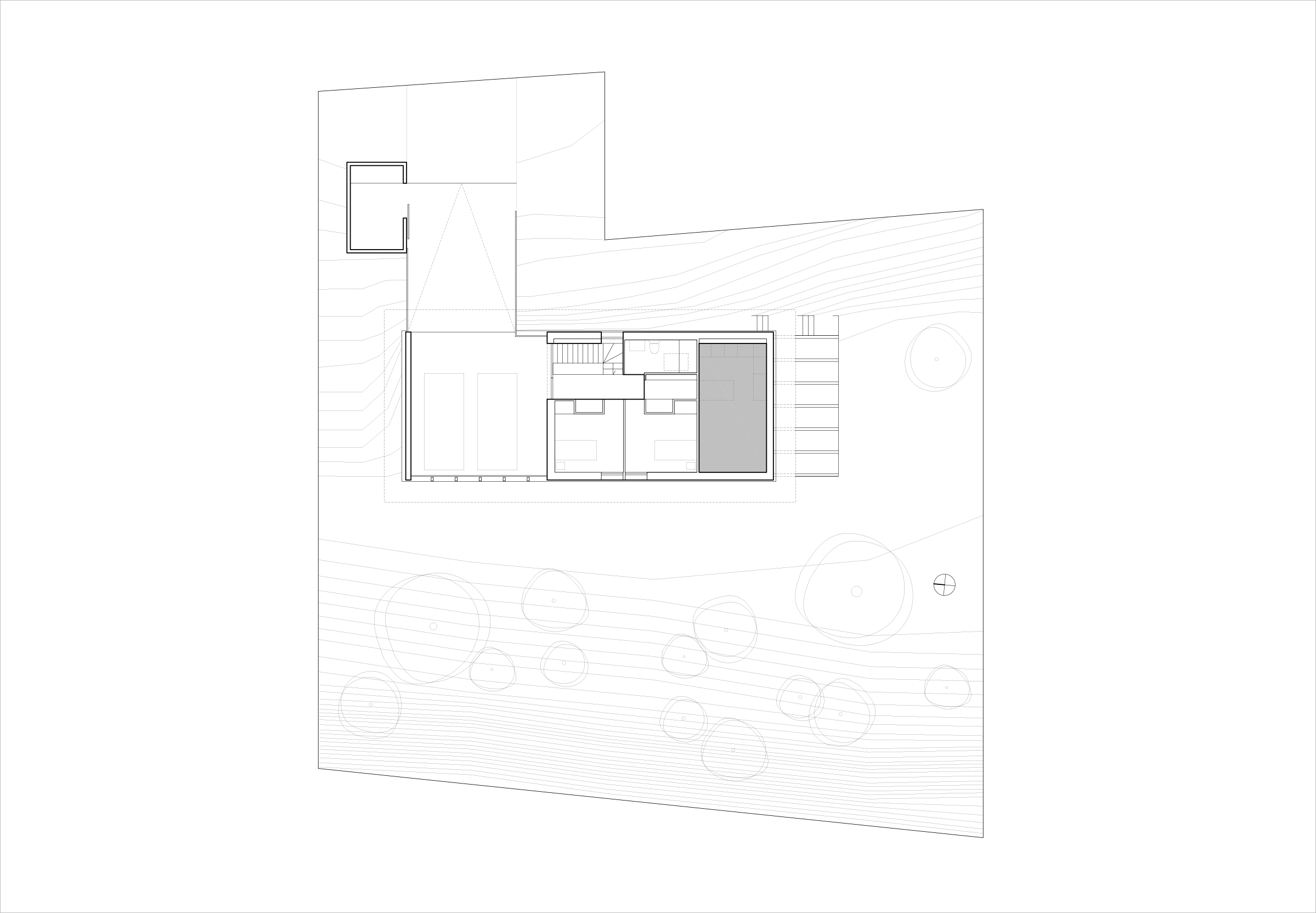
Ce projet prend place sur un site marqué par une forte topographie descendant vers l’ouest. L’accès se fait par le haut en se garant sous la toiture face au panorama. Au rez de jardin, le plan offre une grande fluidité spatiale entre les espaces majeurs de la maison. Le volume du bureau sort légèrement de la façade pour cadrer le paysage. Le positionnement ​du projet dans la pente offre de larges perspectives vers le grand paysage à l’ouest et des vues proches et domestiques à l’est marquant l’adossement de la maison au site. Tous les espaces majeurs profitent de cette double situation.

Catégorie Bâtiment / logement
Numéro de projet4469
Date de candidature24/02/2020

Bâtiment / logement

Détail projet

Typologie de bâtiment : Neuf
Type de bâtiment : Logement individuel supérieur à 120 m²
Année de livraison : 2019
Surface totale du bâtiment en m² : 130
Coût total en € HT (hors foncier, hors VRD, hors honoraires) : 340000
Lot bois n°1 concerné : Charpente bois
Volume lot bois n°1 - m³ : 20
Coût du lot bois n°1 - € HT : 55000
Lot bois n°2 concerné : Menuiserie extérieure bois
Volume lot bois n°2 - m³ : 1
Coût du lot bois n°2 - € HT : 12200
Bois Français : oui
Isolations biosourcées (préciser dans le descriptif technique) : non
Finitions intéreures biosourcées ou géosourcées (préciser dans le descriptif technique) : non

Structure bois du bâtiment

Structure verticale :

ProduitEssenceProvenances (lieu de croissance du bois)Traitements de préservationMarque et certification produit
Panneau ossature boisSapin pectinéFranceJe n'ai pas l'information

Structure horizontale :

ProduitEssenceProvenances (lieu de croissance du bois)Traitements de préservationMarque et certification produit
Plancher béton

Charpente :

ProduitEssenceProvenances (lieu de croissance du bois)Traitements de préservationMarque et certification produit
Charpente bois lamellé-colléMélèzeAuvergne-Rhône-AlpesAucun traitement

Revêtement bois extérieur

Revêtement bois ou dérivés :

ProduitEssenceProvenances (lieu de croissance du bois)Marque et certification produitFinitionTraitements de préservation
Lame bois massifMélèzeAuvergne-Rhône-AlpesSaturateurAucun traitement

Menuiserie intérieure et extérieure

Menuiserie extérieure :

ProduitEssenceProvenances (lieu de croissance du bois)Marque et certification produitFinition
Menuiserie boisMélèzeAuvergne-Rhône-AlpesAucune finition

Isolation des murs

Epaisseur (mm) Isolation intérieure des murs : 16
Epaisseur (mm) Isolation entre-montant des murs : 140
Epaisseur (mm) Isolation extérieure des murs : 60

Isolation de la toiture

Epaisseur (mm) Isolation intérieure de la toiture : 14
Epaisseur (mm) Isolation entre-montant de la toiture : 18

Approche environnementale : L'imperméabilisation des sols est limitée grâce au volume unitaire intégrant le stationnement sur la maison sous la même toiture. Une cuve de récupération d'eau de pluie avec un robinet de puisage sont installés. Les grands vitrages au RDC favorise les apports solaires en hiver et sont des triples vitrages contre l'effet de paroi froide. En été, les protections solaires sont les grands arbres existants à l’ouest et une tonnelle au sud. De plus, des occultations extérieures sont prévues partout. Une PAC réalise 70% du chauffage et un poêle à bois 30%. Enfin, les ponts thermiques sont tous traités.

Descriptif technique : En référence aux chalets d’alpage, un soubassement maçonné en béton constitue le rez-de-jardin et s’insère dans le bas du premier talus. Il est surmonté d’une ossature et d’une charpente bois formant l’étage et l’auvent d’entrée. La jonction entre les structures se fait par différents détails pour offrir une continuité d'aspect malgrès une multitudes de situations. La charpente est constituée coté auvent d'arbalétriers en lamellés collés, coté intérieur de pannes directement posées sur l'ossature bois. La baie du bureau est constituée d'un grand vitrage fixe et d'un petit ouvrant en bois plein.

Chauffage au Bois : non
Appareil de chauffage au bois : Poële/insert
Données déclaratives

Acteurs du projet

Maître d'ouvrage (1)

Maître d'ouvrage - Particuliers

particulier (x)

Etudes et ingénieries (5)

Maître d'œuvre - Architecte mandataire

HOTELIER ARCHITECTES (74)

Maître d’œuvre - Architecte associé

alice lombard architecte (34)

Bureau d'études structure bois

ETUDES DE STRUCTURES ET BETON ARME (ESBA) (74)

Bureau d'études thermique

THERMALPES (74)

Economiste

NCD (74)

Entreprises des lots bois (2)

Charpentier

ALPES BOIS CONCEPT (74)

Menuisier

SA BRUNO VERGORI ET FILS (74)




* : L'entreprise n'est plus active
Retour à la liste