Réhabiliter un équipement
Réhabiliter un équipement

Une extension pour la retraite

68380 Sondernach - Haut Rhin - Grand Est

BÂTIMENT / LOGEMENT

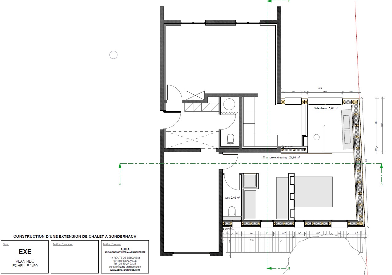
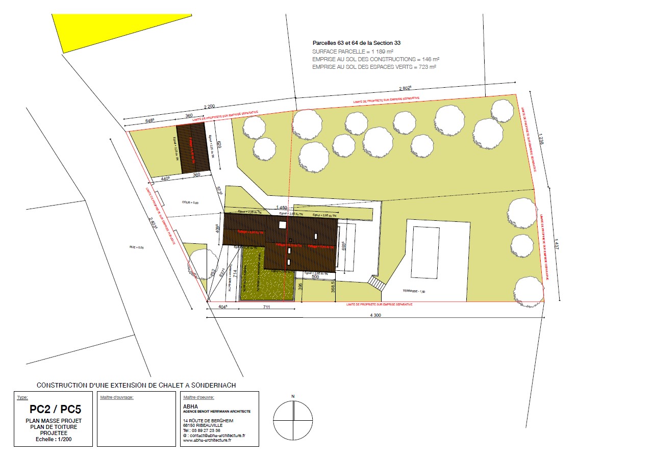
Un couple de jeunes retraités ont récemment acquis ce chalet de montagne. De petite taille, il a pour inconvénient d'être peu confortable à l'étage où l'accès aux chambres se fait par un escalier raide et ses dernières sont engoncées sous de bas rampants de toiture. La maîtrise d'ouvrage souhaitait bénéficier de davantage de confort pour pouvoir passer une partie de leur retraite dans ce chalet. Nous avons proposé d'agrandir le rez-de-chaussée et d'y proposer une chambre, une salle de bains, un dressing et un sanitaire, afin de vivre sereinement de plain pied.

Catégorie Bâtiment / logement
Numéro de projet4463
Adresse du projet 68380 Sondernach
Date de candidature24/02/2020

Bâtiment / logement

Détail projet

Typologie de bâtiment : Extension / surélévation
Type de bâtiment : Logements de vacances ou de loisirs
Année de livraison : 2017
Surface totale du bâtiment en m² : 120
Coût total en € HT (hors foncier, hors VRD, hors honoraires) : 78000
Lot bois n°1 concerné : ossature bois
Volume lot bois n°1 - m³ : 3.6
Coût du lot bois n°1 - € HT : 12000
Lot bois n°2 concerné : Bardage bois
Volume lot bois n°2 - m³ : 1.9
Coût du lot bois n°2 - € HT : 12000
Bois Français : oui
Isolations biosourcées (préciser dans le descriptif technique) : oui
Finitions intéreures biosourcées ou géosourcées (préciser dans le descriptif technique) : non

Structure bois du bâtiment

Structure verticale :

ProduitEssenceProvenances (lieu de croissance du bois)Traitements de préservationMarque et certification produit
Panneau ossature boisGrand-EstTraitement Classe 2 (trempage)

Structure horizontale :

ProduitEssenceProvenances (lieu de croissance du bois)Traitements de préservationMarque et certification produit
Solivage traditionnelÉpicéa communGrand-EstTraitement Classe 2 (trempage)

Charpente :

ProduitEssenceProvenances (lieu de croissance du bois)Traitements de préservationMarque et certification produit
Charpente traditionnelleÉpicéa communGrand-EstTraitement Classe 2 (trempage)

Revêtement bois extérieur

Revêtement bois ou dérivés :

ProduitEssenceProvenances (lieu de croissance du bois)Marque et certification produitFinitionTraitements de préservation
Lame bois massifMélèzeEuropeAucune finitionAucun traitement

Menuiserie intérieure et extérieure

Menuiserie extérieure :

ProduitEssenceProvenances (lieu de croissance du bois)Marque et certification produitFinition
Menuiserie boisMélèzeEuropeHuile

Isolation des murs

Isolation intérieure des murs :

Produit
Laine de bois souple
Epaisseur (mm) Isolation intérieure des murs : 60

Isolation entre-montant des murs :

Produit
Laine de bois souple
Epaisseur (mm) Isolation entre-montant des murs : 140

Isolation extérieure des murs :

Produit
Fibre de bois (Panneaux)
Epaisseur (mm) Isolation extérieure des murs : 100

Isolation de la toiture

Epaisseur (mm) Isolation extérieure de la toiture : 200

Approche environnementale : Cette extension respecte les normes actuelles d'une construction passive. Pour nous, il était important de proposer dans cette entité un confort thermique tant en hiver qu'en été. La toiture est végétalisée, en plus de son confort thermique, elle réalise une rétention naturelle des eaux pluviales, ralentit la saturation des sols lors d'importantes précipitations.

Descriptif technique : Cette extension est en murs ossatures bois de 140mm isolés en laine de bois entre montants, d'un panneau fibre de bois rigide de 100mm à l'extérieur et recouvert d'un bardage bois ajouré en mélèze. A l'intérieur, un doublage en laine de bois de 100mm termine la paroi. La toiture terrasse est composée d'un isolant en polyuréthane de 200mm recouvert d'une étanchéité EPDM et d'une végétalisation de toiture extensive permettant d'augmenter le confort et l'inertie de la nouvelle construction. Hormis le sèche-serviette, pour le reste, elle fonctionne tel une construction passive.

Chauffage au Bois : oui
Appareil de chauffage au bois : Poële/insert
Certifications, labels et marques bâtiment : Aucun
Données déclaratives

Acteurs du projet

Maître d'ouvrage (1)

Maître d'ouvrage - Particuliers

particulier (x)

Etudes et ingénieries (1)

Maître d'œuvre - Architecte mandataire

Agence Benoît Herrmann Architecte (68)

Entreprises des lots bois (3)

Charpentier

CRÉACHARPENTE (68)

Menuisier

Bruppacher (68)
LCM Design (68)




* : L'entreprise n'est plus active
Retour à la liste