Aménager

Un préau pour l'école publique de Mégrit (22)

22270 Mégrit - Côtes d'Armor - Bretagne
Lauréat régional

AMÉNAGEMENT BOIS

Aménagement exterieur

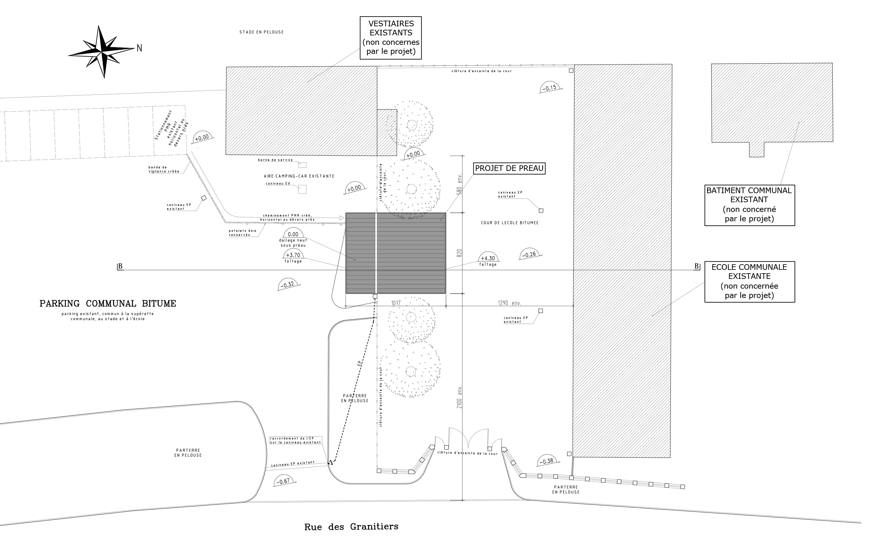
Le programme de la mairie était initialement double : un abribus pour abriter les élèves attendant le bus du RPI, et un préau de cour d’école, équipement qui n’existe pas aujourd’hui. Le projet assume ainsi un rôle de portail ou d’entrée, marquant l’interface entre le domaine public et l’enceinte de l’école, domaine protégé. Dans cette idée, afin de créer une silhouette ouverte, on a choisi d’inverser le schéma classique des couvertures: les rives de couverture montent depuis un chéneau central, donnant à l’architecture un caractère d’accueil et d’ouverture, et non d’intériorité et de fermeture.

Catégorie aménagement bois, aménagement exterieur
Numéro de projet4408
Adresse du projet 21 rue des granitiers
22270 Mégrit
Date de candidature21/02/2020

aménagement bois

typologie : Enseignement ou éducation
Coût total en € HT : 30894.95

aménagement exterieur

Année de réalisation : 2019
Coût lots bois : 13728.55
Volume bois : 4.85
Surface aménagée en m² : 32

Liste des produits :

ProduitEssenceProvenances (lieu de croissance du bois)Traitements de préservationFinitionMarque et certification produit
PalissadeDouglasAucun traitementAucune finition
Abri de jardin / CarportDouglasFranceAucun traitementAucune finition
Bois Français : oui
Notice architecturale : Le programme de la mairie était initialement double : un abribus pour abriter les élèves attendant le bus du RPI, et un préau de cour d'école, équipement qui n'existe pas aujourd'hui. Le projet assume ainsi un rôle de portail ou d'entrée, marquant l'interface entre le domaine public et l'enceinte de l'école, domaine protégé. Dans cette idée, afin de créer une silhouette ouverte, on a choisi d'inverser le schéma classique des couvertures: les rives de couverture montent depuis un chéneau central, donnant à l'architecture un caractère d'accueil et d'ouverture, et non d'intériorité et de fermeture.
Approche environnementale : La structure, comme la palissade, sont réalisés en bois de charpente massif et en lamellé-collé. Les bois sont en douglas naturellement imputrescibles, non traités. Avec le temps, ils griseront. Il a également été posé d'emblée que les tilleuls centenaires de la cour ne seraient pas impactés.
Descriptif technique de l'aménagement : La structure avec porte-à-faux s'est imposée d'elle-même ne bornant pas l'espace couvert par des poteaux «aux quatre angles». Elle permet de fluidifier les circulations des surfaces couvertes, ainsi: - une travée de poteau s'inscrira dans l'alignement de la clôture: on n'amène pas de nouveaux obstacles, et la circulation des parents et des élèves à proximité du portillon, côté extérieur, ne sera pas impactée, - côté cour, la seconde travée de poteau sera alignée sur les troncs des tilleuls: cela permet là aussi de ne pas perturber les circuits de jeux des enfants, tournant autour des troncs. Charpente lamellé-collé / structure poteau-poutre
Données déclaratives

Acteurs du projet

Maître d'ouvrage (1)

Maître d'ouvrage - État ou collectivité (locale et territ)

COMMUNE DE MÉGRIT (22)

Etudes et ingénieries (1)

Maître d'œuvre - Architecte mandataire

AGENCE D'ARCHITECTURE ROUILLE/DORY (22)

Entreprises des lots bois (1)

Charpentier

LEMETAYER SARL (22) *




* : L'entreprise n'est plus active
Retour à la liste